缘起
成立于1958年的济南历城二中,在中国经济社会全面发展的滚滚浪潮中,作为中国教育文化的缩影,从一座典型的农村中学发展成为享誉国内的齐鲁名校,2020年初彩石校区启动规划设计工作,校区因选址于彩石虎山脚下,良好的自然生态环境与人文环境促发了我们思考如何营造一所能够融入自然的绿色低碳校园。
绿色低碳实施路径因办学规模要求,校园业主确定了12万平米(60班)的建设体量,面对如此大的建设需求,针对绿色低碳设计的目标,我们梳理了实施路径的三个层次:首先要解决的是在空间格局和土地利用层面实现恰当的体量安排,最大程度的减少因布局不合理带来的建设和运维浪费;其次是针对寒冷地区建筑集约和弹性使用的可变原则,构建空间骨架;最后是针对具体空间节能的要求,适宜绿色技术的组合应用。低碳策略是建筑师主导的空间节能的主要手段,是优先于设备设施节能前的总体谋划,具有源头节能的特征和优势,学校建筑的使用主要周期避开寒暑假(极寒极热时间段),大部分季节为春秋过渡季,空调电器等设备集中开启时间有限,所以低碳策略在校园的规划设计中显得尤为重要。
格局与隐匿当建筑师第一次踏勘场地,来到山的面前,在初始的认知中建筑应与自然建立一种和谐趋善感,用“隐 、退 、藏 、让” 手法塑造建筑形式的自然感,呈现应有谦虚姿态。经过多轮比对方案,确定建筑规划格局充分结合场地,顺延等高线分台地组织建筑布局,将部分体量做成覆土,将建筑嵌入大地,减小外运土方。建成后建筑水平延展卧在山脚,退让城市路角空间,留出城市观山廊道,极大地削弱自我存在感。建筑隐匿的格局处理是一种与环境充分融合的低碳策略,植根于大地,顺应场地的风热环境,院落尺度北侧厚重体量形成抵御寒风,南向面山打开形成通风廊道,半室外空间将山体引入校园,架空廊道平台也为师生创造了积极的户外活动空间。
适变与骨架随着教育体制的深化改革,学校未来的功能组合愈发的复合灵活,在与校长的多次交流中,深深感受他作为一名优秀的教育工作者到对校园空间功能多义性的期待,这对校园空间设计提出了更高的适变性的要求,既满足当下使用,也满足未来拓展新功能,这也是建筑可持续的具体应用模式。布局中把图书馆、音乐剧场、风雨操场、食堂等基础性、共享性的建筑布局在中心轴区,使之成为公共活动的核心空间,最大限度地发挥这些建筑的功能作用,使师生能够最便捷地享用这些公共资源。教室和多功能室满足未来相互转化,图书馆和风雨操场等大空间具备举办多种活动的可能。各组团沿用地周边组织,围绕公共区,在校园各组团边缘塑造一条立体的空间骨架——学生街,从不同标高串联起师生的日常起居、就餐、学习、交往等功能空间。这条空间骨架不但起到交通联系的作用,也作为一条空间暖廊集约串联起各单体的主要公共空间,在寒冷的冬季提供更多室内活动空间,在空间过渡转折的位置布置下沉庭院,采光天窗提供足够的采光和通风条件。
形态与建造形态的呈现与空间节能的理念密不可分,建筑布局集约紧凑,从用能分级的角度,把高性能的教学空间布置在南侧,一般性能的辅助空间放在北侧,部分活动空间也做成了半室外的不用能空间,立面的形态也反应出应对气候的响应。多层级覆土空间也形成了丰富的户外活动平台。立面采用白色和红色陶土板开放式干挂体系,立面采用错缝斜搭处理,形成了水平连续的肌理感受,陶土温润的质感与金属穿孔遮阳板交相呼应,取材来自大地,本身即是一种绿色材料。在学生公寓的屋顶也铺设了太阳能热水和光伏,充分利用了可再生能源。
彩石校区的低技绿色设计更多的立足于规划布局和建筑设计的被动式技术的应用,从理念上和策略上做了一些可持续的设计尝试。两年多的努力基本实现了原有的规划设想,但由于种种原因,建筑师缺席了整体设计的某些环节,在部分空间的营造完成度尚有遗憾,绿色涵义的空间形态优化没有持续进行,也是值得反思和总结。校园中建筑与环境空间的品质对学生具有潜移默化的影响,因此通过校园环境传递可持续发展的思想尤显重要,实现可持续校园对整个社会具有示范意义,不仅是学校实施素质教育的重要载体,而且逐渐成为新形势下环境教育的一种有效方式。
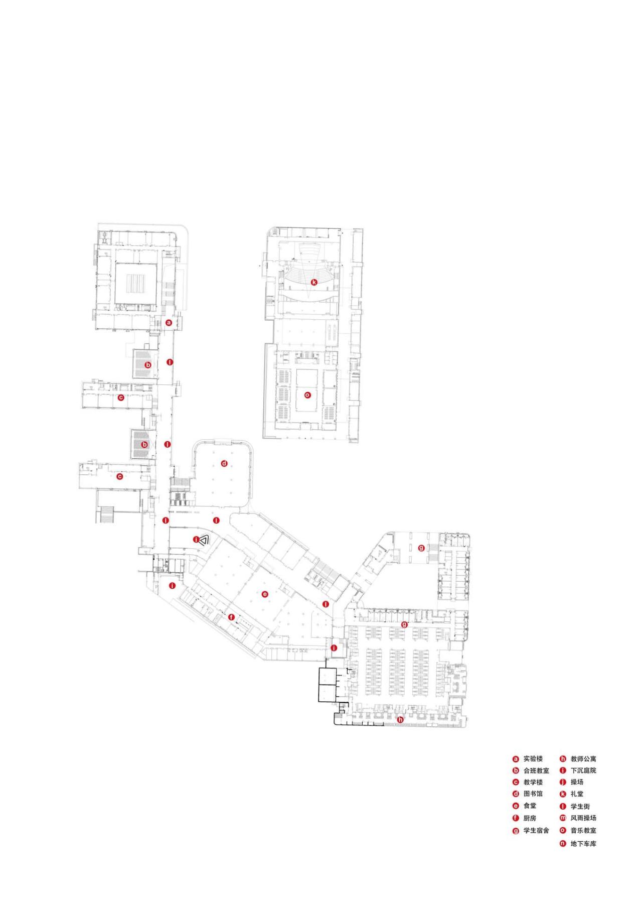
项目图纸
△项目生成示意图
△总平面图
△功能分区图
△平面图
△立面图
△立面图
△立面图
△分析图
△分析图
项目信息
建筑师:同圆设计
面积 :121740m²
项目年份 :2022
摄影师 :时差影像
厂家 : 天津福迪新材料科技有限公司,山东海德邦铝业科技有限公司
设计指导 :刘元琦
主创设计 :郭立强
项目负责人 :王峰
设计团队 :邵旭、姬传龙、张国萌、李书哲、李伟杰、刘轩宇、边文淦
结构设计 :訾晓忠、李宪章、王金祥、邹景波、杨霄、杨潇、杨保先、李冠群、张兆基
建筑团队 :Hailiang Wang,Chuanlong Ji,Guomeng Zhang,Xue Lin,Zheng Wang,Yangui Chai,Xin Xie,Yaqi Wang,Guangning Cheng,Ankang Shi
结构团队 :Xiaozhong Zi,Xianzhang Li,Jinxiang Wang,Jingbo Zou,Xiao Yang,Xiao Yang,Baoxian Yang,Guanqun Li,Zhaoji Zhang
HVAC 设计团队 :Ye Gong,Yugang Zhang,Shuai Dai,Yingbo Ji,Shuai Gao
供暖排水设计团队 :Dongyue Shao,Lei Zhu,Shuang Song
机电设计团队 :Pengfei Liu,Shanzhi Zhao,Jinpeng Zhang,Wenjun Feng,Qingkuan Meng,Qiang Zhang
智能化团队 :Zhiyan Liu,Xiaolei Zhao,Ning Wang,Zhangxiang Song,Jinpeng Zhang,Zhaopeng Tian,Shusheng Zhao,Zilei Han
地点 :济南

BIM建筑网

































