项目概念是设计一座有如大都市的艺术博物馆,各种各样的人和活动于这里交织。这是一座堪称“城市空间”的博物馆,任何人都可以在这里随意参观、学习、放松、享受、接受启发并分享知识。
大阪中之岛是位于堂岛川和土佐堀川两条河流之间的沙洲,自中世纪以来一直是贸易和商业活动的繁荣地区。此外,项目基址还是连接中之岛东西两侧的重要纽带,因此项目中的人流引导及通往各方向的标示变得非常重要。出于这一考量,建筑师设计了一系列的入口以欢迎来自四面八方的访客,而非用建筑物的“正面”来设定既有路线。
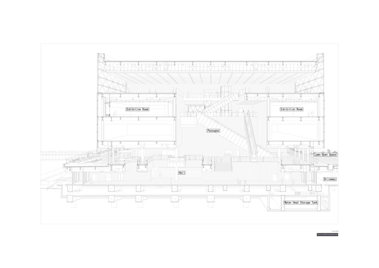
为应对该地区河水泛滥的潜在风险,与艺术品相关的储藏空间被设置在三楼及以上;而一楼和二楼则是供展览参观者及其他市民使用的公共空间。这座五层的钢结构建筑由采用基础隔震结构的博物馆主体、以及采用伸缩缝设计手法的抗震停车场结构组成。
建筑师将一楼和二楼的外部空间与周围景观相连,有意识地提高项目的城市可达性。为实现内外的无缝连接,项目需要消除其与周围场地的高差。因此,建筑师在一楼和二楼的“版面”之上设计了一个清晰的几何“建筑”和巨大的方形立面,以将博物馆塑造成城市中的漂浮形态。
博物馆二楼通过走廊板块与周边的公共设施相连。一条现已相连的人行道还被规划成未来可进一步延伸至建筑物西侧的对象,继而给附近地区的未来活力和出行便利做出贡献。建筑师意在通过将这些复杂元素嵌入到非常简单的形式中,探索了当今设计架构的关键因素。
项目图纸
△总平面图
△一层平面图
△二层平面图
△四层平面图
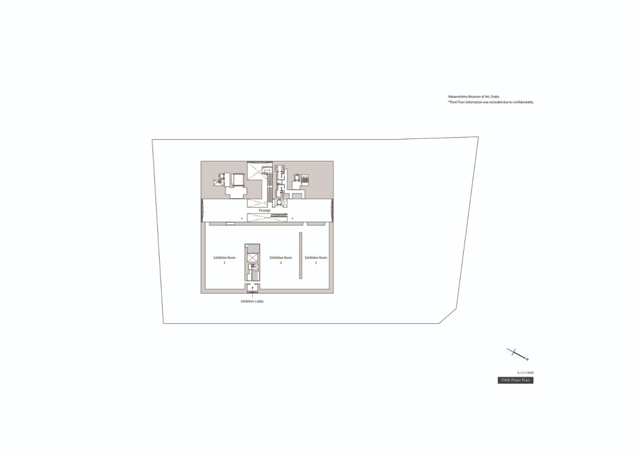
△五层平面图
△立面图
△立面图
△剖面图
△剖面图
△剖透视
项目信息
建筑师:Katsuhiko Endo Architect and Associates
面积 :约1861平方米
项目年份 :2021
摄影师 :Hiroshi Ueda,Nao Takahashi厂家 : AGC Glass Kenzai Co. Ltd.,Oshirox Co. Ltd.,Sanwa Tajima Corporation,TAKAHASHI CURTAIN WALL CORPORATION
主创建筑师 :远藤克彦
建筑师 :远藤克彦建筑研究所
结构工程师 :Jun Sato Structural Engineers Co. Ltd.
环境工程师 :Tohata Architects & Engineers
景观建筑师 :Studio Terra Inc.
地点:日本,大阪

BIM建筑网






































