梅里达银行与商业学校位于墨西哥梅里达市的北部,是这一机构在梅里达的第二个园区。新建筑位于一个正在发展的地区,意在为更多的学生提供服务。在设计过程中,项目以三个能够决定建筑布局及其材料和运营的元素为核心设计原则:功能、场地地形、区域内生物气候特征。
梅里达有着较为极端的生物气候特征:这个城市十分炎热、潮湿,其阳光直射温度也非常高。此外,反复的北风带来了风雨交加的天气,因此建筑师在设计时也需要从细节上解决这一问题。因此,校园的外观坚实而厚重,并且其中每一栋建筑的朝向和功能布局都与其外观相呼应。校园南、东、西侧较为封闭,并向北侧完全开放,由此减少了来自该地区变化光线和高温的影响,并为所有学习和工作空间构筑均匀的光照环境。同时,建筑采用了统一的材料——“丘库姆(chukum)”。这是当地常用的一种典型材料,并具备耐用性和低维护度等优势。
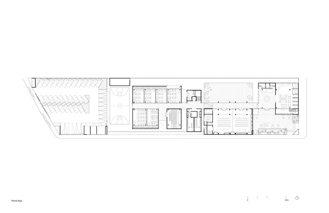
具备这些特点的校园需要有着非常具体、准确的功能区划,其中将包含 12 个 18 人教室、9 个 30 人教室、7 个 40 人教室、及用于线上课程的教室、容纳 40 人的讲堂、可包含多达 200 人的多功能室兼礼堂、咖啡厅、学习中心、图书馆、工作室、为全体学生举办活动的庭院、健身房、管理区、以及不同的服务区域。
场地地块为狭窄的 30×140 米矩形,其三面临路,并仅有一侧与未来住宅相邻。该项目呈线性排布,并由六栋建筑组成,且各个功能区分散于这些体块之中。每一栋的建筑都有着具体的用途,以此让功能区有序排布,从而激活建筑间的公共及聚会空间,并由此调节校园整体的氛围。
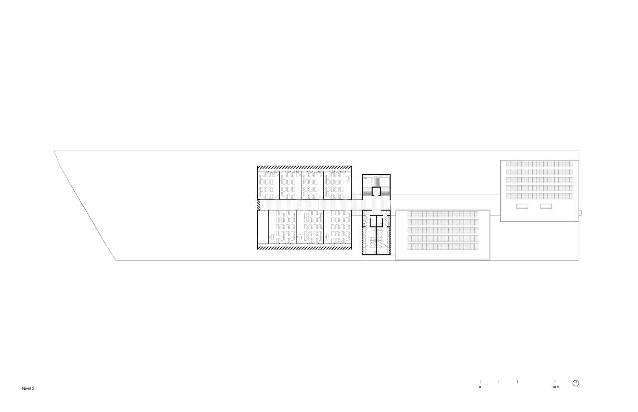
第一栋建筑的为入口及管理楼。第二栋则包含了公共及其他灵活功能区,其中有多功能室、室内外咖啡厅、以及学习中心。这一多用途的大楼位于校园中心,其一层空间向中央广场开放,并作为三层空间的集合点使用。第三栋建筑为最高、占地面积最小的楼宇,其中包含了服务及垂直交通区。第四栋建筑为教育楼,其中四层楼囊括了 28 间教室。第五栋建筑仍未建成,其中将包含9间教室,并将成为已有大楼的延伸及校园的未来扩建空间。而最近,这栋大楼的基座则被用为多功能体育场。第六栋建筑为唯一的单层大楼,其中涵盖了设备区、机械室、及其他为校园维护所用的空间。
校园的六个体量布局生成了广场般、彼此补充的空间。其内部布局考量了整体及各自朝向及太阳入射角:项目整体仿佛一堵为公共空间遮阳的大墙,其中央广场为开放的聚集空间,并有着几乎全天候的阴凉。此外,碎片化的体块让风可以穿越建筑,并产生交叉通风。因此,建筑并没有成为空气流通的阻力,而是让风自由穿梭于其中。
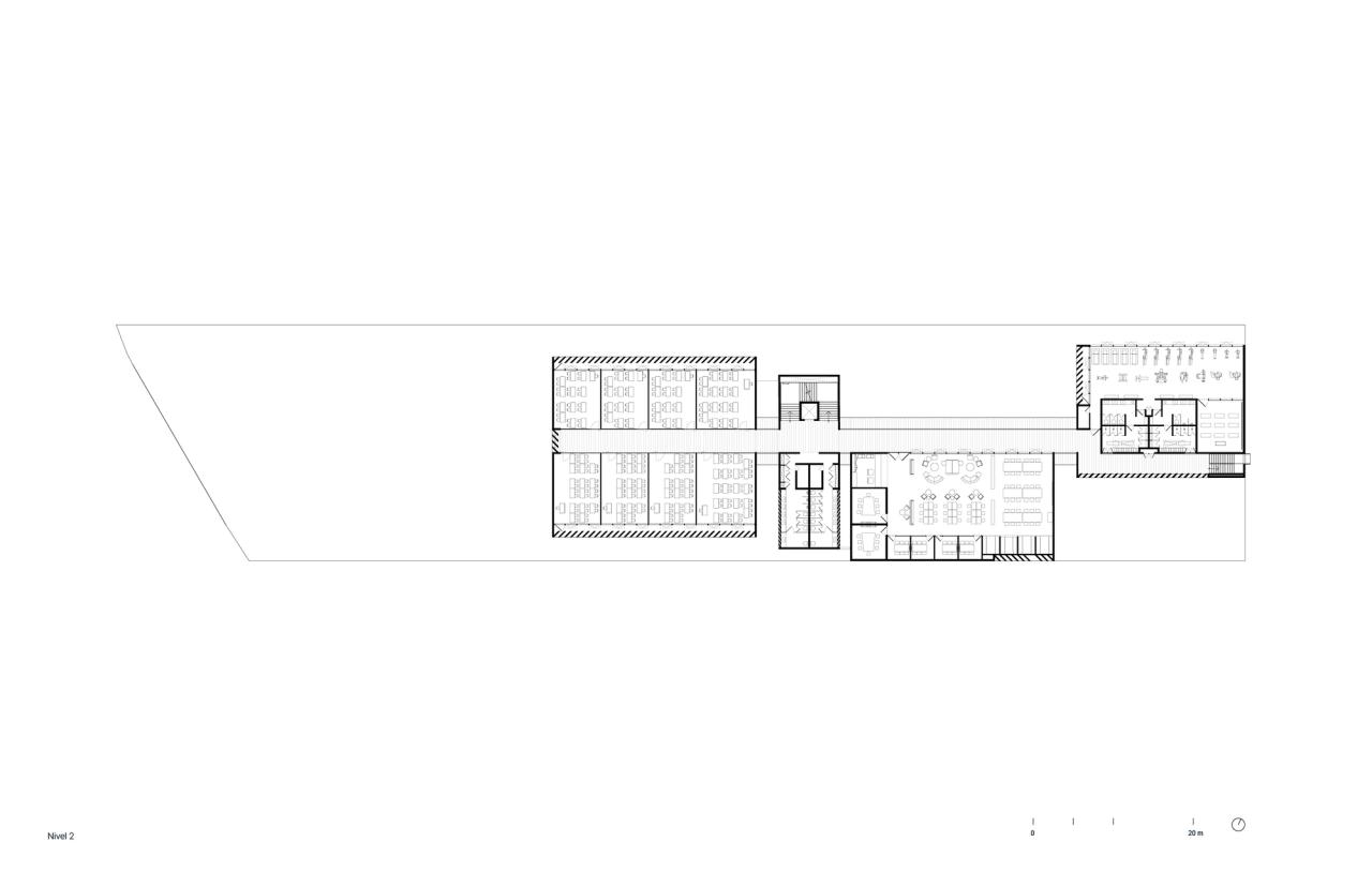
六栋建筑沿中央轴线排布,并在二层入口、主入口及停车场入口处相互连接。在其它层,3 米宽的长廊与桥梁将各栋建筑无间断地连接。这些廊道位于建筑平面的中心或两侧,在一些节点扩大至 4.5 米宽,同时这一交通空间也为“风雨廊”,以此为学生们遮挡雨季的降水及强烈的北风。在教育楼中,建筑师可以发散设计思路,由此不仅专注于已建成教室空间,也仔细考量了空间缝隙、交通、及连接所有教室的特定功能区。这些在每一层以不同形式存在的长廊也成为了教室外的社交空间。
项目图纸
△地下一层平面图
△一层平面图
△二层平面图
△三层平面图
△屋顶平面图
△剖面图
△剖面图
△剖面图
△立面图
△立面图
项目信息
建筑师: Co Lateral, IUA Ignacio Urquiza Arquitectos, Rodrigo Valenzuela Jerez
面积 : 6698 m²
项目年份 : 2021
设计团队 : Ignacio Urquiza Seoane, Camilo Moreno, Daniel Moreno, Héctor René Campagna, Michela Lostia di Santa Sofía, Paula Bodelón, León Daniel Chávez, Fabiola Antonini, Andrés Suárez, Andrés Pérez
结构 : Estudios y Supervisión del Sureste, Eric Raygoza
工程 : AKF Group
近年关设计 : Genfor Landscaping (Tanya Eguiluz)
室内设计 : Taller Leticia Serrano (Leticia Serrano, Andrea Guereca)
开发与协调 : EBC (Jerónimo Prieto, Andrea Cornú), Terral (Pablo Prieto, Raúl Silva)
地点 : 墨西哥,梅里达

BIM建筑网


























