△项目视频(建院书吧更新改造经过与成果) ©广东工业大学校园更新小队
今天的大学校园与城市一样面临更新机遇和挑战。我们秉持“微更新”理念,探寻校园中具有潜力的“边角空间”,尝试打造出朴素舒适、灵活多元兼具人文特色的校园公共空间。
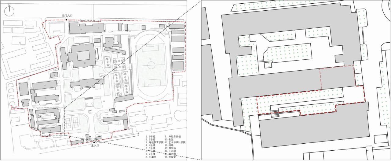
△东风路校区校园边角空间潜力分析 ©广东工业大学校园更新小队
01 场地印象与调研
项目位于广东工业大学东风路校区校园西南角,是一个师生共建、共同运营的校园改造空间。场地由建筑部分架空层和两楼之间的狭长绿地共同构成,略显杂乱陈旧,活力值低下,但也承载了学院师生回忆。
△场地环境原貌和使用情况 ©广东工业大学校园更新小队
△为更新改造而进行前期调研分析 ©广东工业大学校园更新小队
02 整体更新目标的设定
校方希望我们能对场地进行改造,使其变成一个真正利于学生成长的地方,而我们也渴望将学识在实践中检验,感谢学校的培育之恩,留下美好的事物。因此,我们提出:在归纳整合各破碎地块基础上打造“公共学习空间与融合创新基地”的总体更新意向。
△用微更新点亮校园边角空间(建院书吧改造后实景) ©广东工业大学校园更新小队
△“公共学习空间与融合创新基地”整体方案构成 ©广东工业大学校园更新小队
03 建院书吧:黑白相映、朴素雅致的“书吧盒子”
△“书吧”建成立面(实景合成)以及建构爆炸图 ©广东工业大学校园更新小队
建院书吧是“公共学习空间与融合创新基地”的核心单元,黑白相衬、相映成趣的盒子空间构成了“书吧”的崭新形象。我们将原来面对入口的墙体打掉,通过对几步台阶和侧边白墙的简单形成“序厅”,既延展了流线与体验,也进一步加强了场所仪式感。
△由“黑盒子”看向“序厅” 和内院 ©广东工业大学校园更新小队
△黑白相映的“书吧”空间 ©广东工业大学校园更新小队
△干净通透的黑白盒子空间激发创新与交流 ©广东工业大学校园更新小队
△“黑盒子”共享吧台概览 ©广东工业大学校园更新小队
△融学科氛围于空间营造中 ©广东工业大学校园更新小队
竖向格栅而编织起完整、简约的立面形象;白色书桌和点缀于其间的景观绿植共同渲染出静谧、生动的书香氛围。
△望向光影生动的“白盒子” ©广东工业大学校园更新小队
△“白盒子”空间概览 ©广东工业大学校园更新小队
△“白盒子”北侧入口 ©广东工业大学校园更新小队
△“微更新”策略下保留的灰色文化墙融入新的环境秩序 ©广东工业大学校园更新小队
“白盒子”学术沙龙空间不同款式且轻质灵活的桌椅、简约透漏的屏风等为多样化的行为模式提供了可能性。
△灵活多样的空间使用模式(“讲座+会议+学习+沙龙”模式)©广东工业大学校园更新小队
△“白盒子”北侧入口望向立体复合化书架墙 ©广东工业大学校园更新小队
△“白盒子”公共空间兼顾不同的交往使用需求 ©广东工业大学校园更新小队
▲时光流转中的“书吧”一角 ©广东工业大学校园更新小队
自主设计的立体复合化书架墙不仅较好地应对了空间的储物需求,还利用透与半透的材料, 营造出曼妙的光影变化,巧妙加强了内、外空间渗透以及人文活动联系。
△树影婆娑,光影摇曳 ©广东工业大学校园更新小队
△绿意与书香装点的静思空间 ©广东工业大学校园更新小队
△强调专属的学科气息 ©广东工业大学校园更新小队
师生们开始减缓脚步,聚集在此交流、观影、品茶、冲咖啡……我们放置了咖啡共享器具、咖啡交换盒子、留言小黑板、建院猫窝、工大相册等与我们校园生活息息相关的互动小装置,人们开始自觉维护空间并分享好物,彼此的连结也无形地增加了。
△各种充满建院记忆的小物件 ©广东工业大学校园更新小队
我们还以建院生活为蓝本创作漫画、海报、灯箱、地毯等周边产品。
△围绕“建院书吧”诞生的周边产品设计 ©广东工业大学校园更新小队
△校园的猫也被温暖的空间所吸引 ©广东工业大学校园更新小队
04 绿色人文狭院
更新方案将“书吧”外部的楼前空地和楼间绿地一体规划整理,形成连续线性“展陈空间+狭院园林”。在此基础上,设计方案融入了绿色可持续发展的理念。
△“绿色人文狭院”效果图 ©广东工业大学校园更新小队
△融入“绿色人文”巧思的狭院设计 ©广东工业大学校园更新小队
技术图纸
△区位图 ©广东工业大学校园更新小队
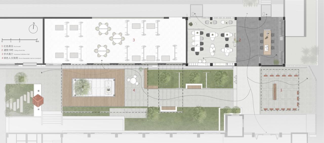
△“公共学习空间与融合创新基地”平面图 ©广东工业大学校园更新小队
△“建院书吧”平面图 ©广东工业大学校园更新小队
项目信息
本项目受到广东工业大学网络信息与现代教育技术中心的支持
项目名称:广东工业大学公共学习空间建设
设计团队:广东工业大学校园更新小队
领队:建筑与城市规划学院党委副书记李晓伟、辅导员老师贾朝强
指导老师:海佳
队员:王童渝、曾慧珊、黄立、罗佳倩、王梓瑜、许冰冰
联系邮箱:crtofgdut@163.com
项目地点:广东 广州
项目面积:“建院书吧”共享交流区改造面积约 25 ㎡,学术沙龙区改造面积约 52 ㎡;“绿色
人文狭院”占地面积约 275 ㎡
设计与完成时间:2021-2022 年

BIM建筑网
































