湿地是地球的宝贵资源,它对于减缓气候变化、保护水资源、维护生物多样性、减轻灾害风险,以及增加碳吸收具有积极的意义。世界湿地签约国公约生效51年来,已有172个缔约方,由该组织认定的湿地城市有43个,中国最多,达13个,位居世界第一。
2022年11月5日以武汉作为主会场(日内瓦作为分会场),中国承办了《湿地公约》第十四届缔约方大会,中国国家主席习近平给大会致辞,彰显了中国加强生态文明建设的决心和责任,大会通过了武汉宣言。于此同时,在东湖落雁岛建成了中国履行《湿地公约》30周年成就展馆。2021年2月,中国开始筹办《湿地公约》第十四届缔约方大会,会址定在湖泊众多的武汉,大会的重要配套建筑“中国履行《湿地公约》30周年成就展馆”选址武汉的东湖。
根据东湖风景区总规中核心景区的保护要求,以及一级保护区的建设方针,本区内严禁建设与风景无关的设施,且严格控制新建建筑的高度、色彩、体量和风格。东湖是中国湿地的典型代表,本项目所在的落雁景区景色独特,鸟类众多,是湿地资源的集中展示区域,在此地建展馆,最能体现展示内容和所在场所的一致性。经过多轮研讨,最终各方达成一致意见:以低强度介入的方式,改造东湖落雁岛上的一组废弃建筑。
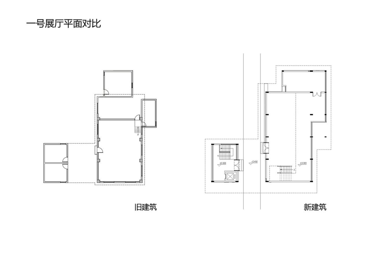
这里原是一个工业水厂,厂区内有水泵房、员工食堂、厨房及员工宿舍。20多年前水厂废弃,但建筑及内部的机械设备尚存。我们希望通过设计使得旧厂房得到活化和再生,在保留场所记忆的同时,植入新的文化场景和展示功能。我们在这组废弃建筑的基础上重新设计了外墙及屋面,重新组织了观展动线。由于原有建筑面积太小,不足以承担展览的全部内容,我们在背水一侧挖了7米深的地下室,将其作为多媒体展厅。厂房空间高大,作为一般尺度的展览,并不需要如此高的空间,我们在面对大湖一侧做了夹层,形成了文字、实物及多媒体多种展示方式组合,地面、空中及地下多元空间相结合的当代展示馆。旧水厂因工业而生,因环保而废,如今又因湿地而重生,可循环的人居环境生生不息,一脉相承。
原有厂房的旧屋顶显得沉闷,原有员工食堂和厨房的单坡屋顶潦草简陋,原有宿舍的平屋顶与优美的东湖环境格格不入。我们参照水鸟翅膀的形态,结合中国传统木构建筑的举折曲线,设计了出檐深远的单坡屋顶,在面对大湖面的高侧空间中设置夹层,形成观景、观鸟平台;我们按照中国传统建筑的“彻上露明造”逻辑,特意暴露全部结构,以展现屋檐之下具有表现力的木构体系。建筑竣工之后,有人看出了飞鸟展翅的动势:野木迢迢遮去雁,渔舟点点映飞鸟,有人看出了湖北出土之编钟的影子,有人看出了钢琴键盘的隐喻,也有人看到了楚文化的特征;还有人看出了九头鸟的气势:天上九头鸟,地上湖北佬。建筑形态的多义性解读赋予了这组建筑更多的内涵。
双曲面屋顶意味着必须使用弧形主次梁,这对传统的制造工艺是一个巨大的挑战,但在数字化时代,这并非难事,全过程的数字技术和机械臂轻松地完成了从CAD(计算机辅助设计)到CAM(计算机辅助制造)再到CAE(计算机辅助施工)的“无缝”连接,完整地实现了原初的设计预想。旧厂房中设置有水泵、水管、阀门等机械装置,这些都是当年水厂的核心设备,我们期望能在新展厅中完整地保留这些遗存物,并对其予以展示,这一想法得到了主管领导的高度认同,最终得以实现。如何在风景名胜区建造?这是一个涉及价值观和方法论的老问题,有人认为设计仿古建筑是与环境协调的可靠方法,也有人认为“协调”是个伪命题,“是否协调”完全是因人而异的主观判断,建筑的当代性才是值得当代建筑师追求的目标。本项目意在探索一条以谦和的方式,创造属于此时此地之建筑的道路。
项目图纸
△区位示意
△手绘图
△手绘图
△手绘图
△路线分析图
项目信息
建筑师: 华中科技大学李保峰建筑工作室
面积 : 1431 m²
项目年份 : 2022
摄影师 :赵奕龙
主创建筑师 : 李保峰
设计团队 : 李保峰、谭文骏、张瑞芳
结构设计 : 武汉市园林建筑规划设计研究院有限公司, (武汉市园林建筑规划设计研究院有限公司)祝培红、梅芳
木结构计算 : (满目科技有限公司)黄晶
景观设计 : 湖北中创环亚, (湖北中创环亚)于志光,(武汉市园林建筑规划设计研究院有限公司)梅章斌、肖雪缘
施工图设计 : 武汉市园林建筑规划设计研究院有限公司:张磊、魏伟平(建筑)何亚萍(给排水)王平(电气)刘良全(暖通)
木结构施工 : 武汉林榔木建筑工程科技有限公司
合作方 : 武汉市园林建筑规划设计研究院有限公司
委托方 : 武汉市东湖风景区落雁管理处
木结构设计 : 满目科技有限公司
施工方 : 武汉林榔木建筑工程科技有限公司
地点 : 武汉

BIM建筑网














































