香港故宫文化博物馆为香港西九文化区的旗舰项目,设计由严迅奇建筑师事务所操刀主理,现已正式开幕。作为香港全新的中国艺术文物中心,香港故宫文化博物馆收藏北京故宫博物院900多件珍贵文物,当中近160件属一级国宝级文物。香港故宫文化博物馆既是香港的新地标,亦为市民提供好去处,定期举办互动体验展览,以崭新视角探索中国文物,致力推动新一代认识中国文化与历史。
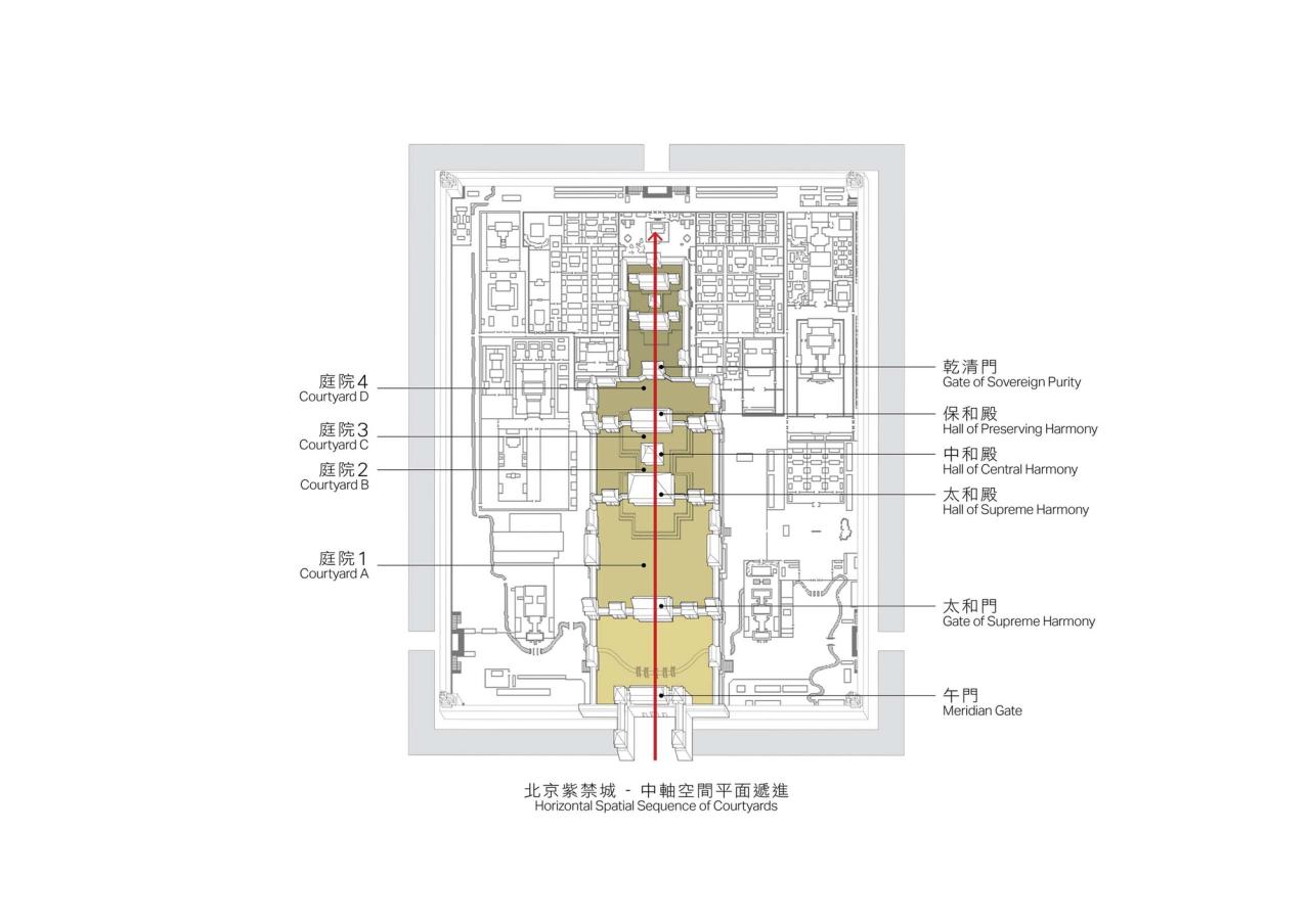
博物馆总建筑面积达30,000平方米,坐落西九文化区的西端海旁,毗连艺术公园,维多利亚港海景一览无遗。设计以博物馆积极向现代观众推广中国传统文化的理念出发,以当代建筑语言重新演绎中国传统空间概念,参照了北京故宫里院殿沿中轴水平递进的空间布局,利用三个中庭空间层层迭加塑造出连贯的楼体,引导访客穿梭各个楼层。另方面,垂直递进的中庭空间设计呼应香港高度密集的城市肌理,巧妙地令地面层得以最大程度保留开放空间和绿化园境。
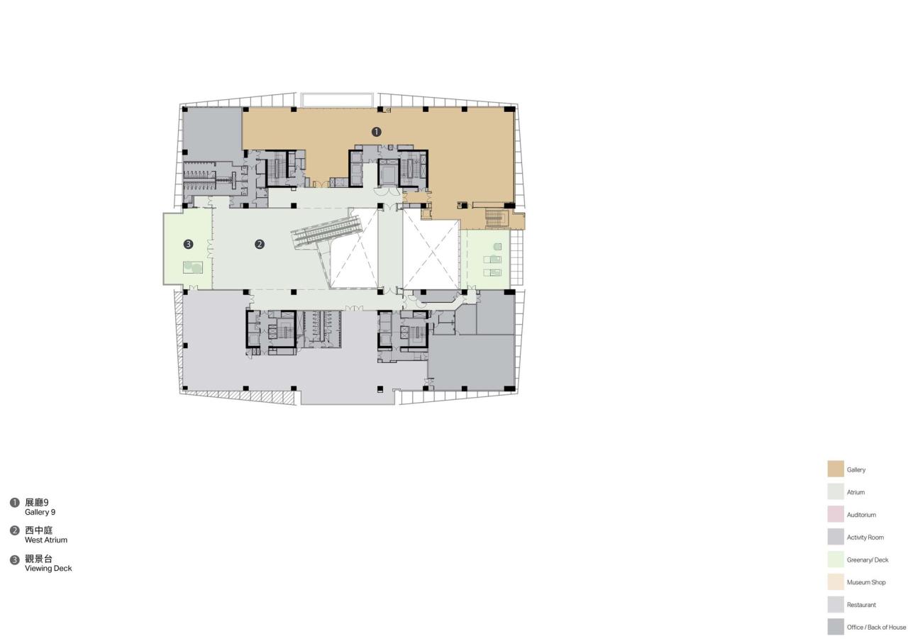
博物馆的三个中庭各自朝向不同方位,令博物馆坐拥环回城市景观。入口中庭朝东,眺望西九文化区东端的戏曲中心;南中庭面向南方,室外观景台坐拥辽阔无边的海景,香港极具标志性的天际线尽收眼底,成为博物馆的「打咭」热点之一;身处最上层的西中庭又是另一番景象,朝西远眺大屿山及南中国海,视野开阔。三个中庭作为博物馆的核心交流空间,为访客提供了一个讨论艺术的场所,一边欣赏周边美景,一边细味刚看到的文物。除此以外,访客也能够以崭新的视角体验香港这个大都会和展望未来发展,远眺正进行发展规划的大屿山。
博物馆入口前方设有开阔的平台广场,可供展出大型装置或进行传统节目及舞蹈表演。广场呼应故宫的城墙设计,外侧由回廊包围,一直延伸至博物馆入口。经过广场进入博物馆,访客便置身偌大的大堂空间中,可以稍作停顿,闲聊片刻,并了解展出中的展览。
博物馆内部以波浪形的黄铜天花连贯整个空间,设计让人联想到北京故宫的金黄屋顶。特色天花沿动线中轴一直延伸,由下以上包裹整个楼体,除了加强了垂直连贯的空间感,亦让自然光从顶层充分照进室内空间。天花设计极具雕塑感和方向性,与主要以石材配搭混凝土的楼体结构相映成趣,为博物馆的细腻格调增添了亮点。
博物馆设有9个展厅,提供合共7,800平方米的展览空间,展出的文物珍品历史悠久,可追溯远至晋朝(公元226-420),包括书画、古籍,以及金银器、铜器、玉器等装饰艺术。虽然大部分展厅预定长期展出,但位于四层的主题展厅将会定期换展。主题展厅达到双倍楼高,可配合创新的策展概念,例如参与性强或融入高科技体验的展览。展厅也会展出来自世界各地不同国家的藏品,例如开幕展中便包括巴黎罗浮宫借出的珍品,通过中外藏品体现出交流与对话。
博物馆设有适合举办公共活动和试影会的演讲厅(400座位)及活动室;地面层亦设有餐厅及礼品店,接通毗邻的艺术公园和海滨长廊,活力满溢。博物馆于2022年7月开幕。
项目图纸
△一层平面图
△负一层平面图
△二层平面图
△三层平面图
△四层平面图
△五层平面图
△六层平面图
△剖面图
△分析图
△分析图
项目信息
建筑师:严迅奇建筑师事务所
面积 :30000m²
项目年份 :2022
摄影师 :Edmon Leong,Hong Kong Palace Museum
主创建筑师 :严迅奇
设计团队 :严迅奇、CM Chan、Freddie Hai、施海伟、梁瑞安、李威廉、王光翘、李庆月、余多丽丝、Samuel Wong、Bong Yeung、Thomas Cheng、Elaine Tsui、Felix Chow、Pak-Chuen Chan , 朱伟
结构工程 :奥雅纳工程顾问
屋宇设备工程 :奥雅纳工程顾问
工程造价 :利比有限公司
景观设计 :奥雅纳工程顾问
交通设计 :奥雅纳工程顾问
安全顾问 :奥雅纳工程顾问
声学设计 :奥雅纳工程顾问
施工单位 :中国建筑工程(香港)有限公司
施工方 :中国建筑工程(香港)有限公司
地点:中国香港

BIM建筑网










































