关于Meet 11
Meet11花漾餐厅位于江苏省常州市青果巷二期,Meet 是遇见,表达时间,11是十一种风味菜品的可能性尝试。
场力
一、对话力:场地西侧仅隔三米是一座两层独栋建筑,室内是用来经营传统常州融合私房菜,主理人是Meet 11餐厅主理人的长辈。一巷两店,一中一西、年青一代与年长一代 、室内空间风格及理念不同,形成一种无形的对话力。
二,秩序力:场地虽然柱子多,但整体空间方正规整,有潜力被整合、梳理成具有秩序感的结构空间。整体空间概念是由Arabesque演化而来,不管是阿拉伯图案的无限之美、芭蕾舞舞姿的柔美、还是音乐里Arabesque美妙旋律,它们的美都来自”秩序”,是秩序感在不同时间和空间中经过精心编而排形成的特定韵律平衡之美。Meet 11主要针对常州本地年轻、独立的现代女性,柔美的力量、温和、曲线这些语汇与Arabesque美的内核是一致的,我们在此空间设计上努力追寻Arabesque这种秩序与平衡,让人在这样的氛围空间中体验“韵律”之美。
挑战
如何化解场地柱子过多的问题,如何解决现场自然光线不足的问题;技术上如何实现实现“蛋壳”小屋 (包间)“轻”的现代性;如何营造出可以凸显Meet11的辨识度的氛围空间。
力场
Meet 11主体空间围绕Arabesque展开,其中最大的特点是“Arabesque拱形”,我们将Arabesque拱形进行模块化设计,整个空间的结构由这些拱形搭建而成,从而形成表达张力。
这种模块化的结构方式能大大减少施工出错率,也能提高施工效率;主入口一进门左侧设置整场的酒水吧台,吧台所处位置使得工作人员可以最大化角度服务到全场,吧台最大的特点是其上方的导光板层架,层架是由1.5cm厚度的导光板贴扩散膜构成,打开灯光整个层架有强烈的漂浮感;吧台对面区域设置了是四个3/4圆形卡座,卡座与卡座之间设置热带绿植营造休闲度假氛围;在整个空间里我们嵌入了两处“蛋壳”半开放空间,我们在造型上开了几处洞口,这样蛋壳室内外在视线上可以互通、流动的,有私密性又与整场有很强的互动。蛋壳工艺上我们此次做了极大挑战,厚度只有1cm,构造很薄但强度和韧性极高,挑战了从来没有过的薄度,两个造型与空间结构并置但不显得突兀反而各自形成不同的氛围和“场感“。
墙体立面我们没有做过多的修饰,仅在局部两面墙做了Arabesque小比例造型,距离墙面8cm,背后我们设置了弱弱发光的光纤,表达存在,让墙面具有“呼吸”感;地面我们用了强度高、耐油污的装饰混凝土材料,实现与空间协调的配色。为整体空间增添氛围,顶部造型结构”中空“的区域我们做了13组双曲亚克力吊灯,当人在空间走动的时候,可以看到吊灯造型一直处于动态变化中。
结合常州本地气候,整体空间绿植采用类热带绿植搭配,营造出自然、阳光、休闲的惬意氛围。
结语
时光流动,岁月更迭,由Arabesque元素构造的Meet11 “韵律”空间,形成了秩序、流动、力、时间、自然、柔美的”场“,在这里人们可以与Meet 11相遇,与十一种人生美味相遇。
项目图纸
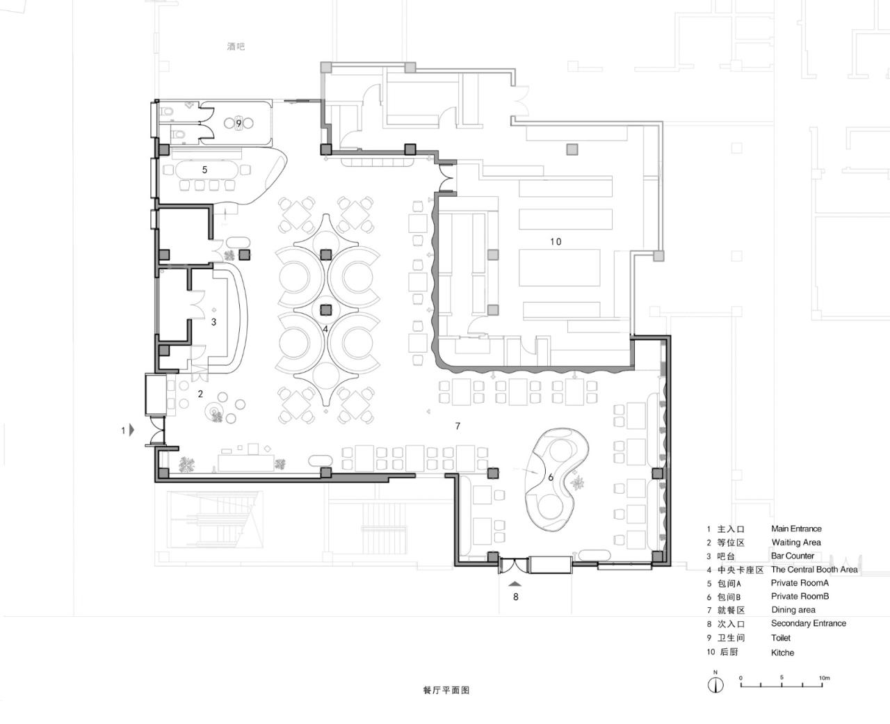
△平面图
△结构示意图
项目信息
项目名称:Meet 11 花漾餐厅
项目地址:江苏,常州
项目业主:常州大城小爱餐饮公司
建造时间:2022年5月-2022年10月
室内面积:450平方米
设计单位:力场(北京)建筑设计 Linkchance Architects
设计团队:安兆学、闫新秀、魏泽同、常梦雅、李嘉琦、杜芳芳
照明咨询:Owen
建造材料:磐多磨、装饰混凝土、微水泥、穿孔铝板、导光板、柚木、镜面不锈钢板等
项目摄影:金伟琦、Linkchance Architects
视频制作:视源品牌
工程施工:杭州唐耀装饰工程有限公司/成昌弘致建材(北京)有限责任公司/ PanDOMO Studio (北京) / 江苏常州恒丰伟业玻璃钢有限公司
设计撰文:Linkchance Architects


BIM建筑网


























