该项目位于山西省宁武市,包括建造一座燕麦工厂: 将生燕麦进行深加工,转化为燕麦米及燕麦粉、燕麦冲调粉等产品。自动化加工过程需要建设两条不同的生产线,配备大批量机械设备。同时,也需要建造对公众开放的空间,包括商店、咖啡厅及办公空间。
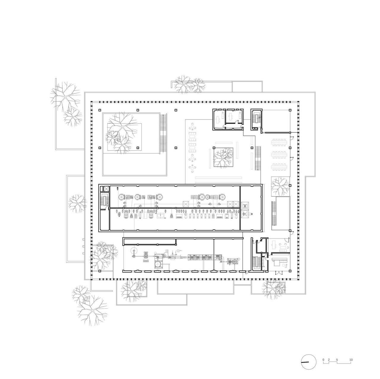
该项目的周边环境并不理想,有一些新建的工业厂房,当地干燥气候条件下的景观及煤矿等,由此我们考虑将工厂发展成一座内向型建筑,重新创造其内部的自然环境。除了满足所有的功能需求,我们希望这个建筑能够激发人们更多的感受,给参观者的体验带来惊喜感。我们的概念是使用砖墙的形式将工厂的各个技术空间围合和隐藏起来,在这个不透明的底层上方搭建一个简洁的有体量感的混凝土建筑,承载该项目全部的公共空间。天井和花园将穿透整个建筑,提供自然采光的同时在工厂内创造了令人印象深刻的空间延伸感。建筑中央的生产车间通过屋顶混凝土结构的特殊形状得到北向明亮的自然采光。
砖墙的设计形式从工厂正门开始,那里的景观区域特意开放给当地社区使用,设有长椅和水池供孩子们玩耍。砖墙由长椅的形状开始,逐渐成长为工厂适宜的围护,再之后发展为整个建筑的外墙。砖墙的形状将形成和定义工厂的不同入口,每个入口均有其特定的功能:原材料的运送、产品的装载、工作人员及参观者的入口。员工和访客被划分为不同路径,在工厂内不会有任何交集。工作人员将享有一个有序组织的工作环境,而参观者则将经历一段有规划的空间体验。并在参观过程中的某个时刻,站在俯瞰车间的高架走廊上看到整个生产线的展示。
员工宿舍被设置在工厂的后面,设想为一个隐形的建筑。以加厚的砖砌围墙为建筑的主体,并在建筑内部设计了天井庭院,为房间带来采光的同时保证了私密性。工厂和宿舍之间的空地改造为了一个花园,其中设置了一个混凝土浇筑的长桌和方形座椅。
建筑材料的选择也具有很强的现实意义:使用青砖及当地的施工方法是一种与场地建立深厚关系的方式。另一方面,清水混凝土强调了建筑的现代性,并且可以使结构本身和建筑紧紧结合在一起。景观设计也完全融入到了设计过程中,屋顶收集的雨水通过现浇混凝土排水口被重新引向不同楼层的水池,使雨水的自然循环成为空间体验的一部分。水流一直顺势流到工厂的入口处,在那里汇成一道景观瀑布落下,结合12米悬空的混凝土LOGO墙,邀请参观者进入建筑。
在整个设计过程中,设计师需要更好的处理监管规范带来的限制和要求。消防规范要求建筑顶部必须设有一个消防水箱,我们将其设计成一个挑出的不锈钢盒子,这是一个完全独立的元素,使其最后以一个现代雕塑的形态轻盈的悬空在屋顶上。
项目图纸
△模型图
△模型图
△模型图
△模型图
△总平面图
△一层平面图
△二层平面图
△三层平面图
△立面图
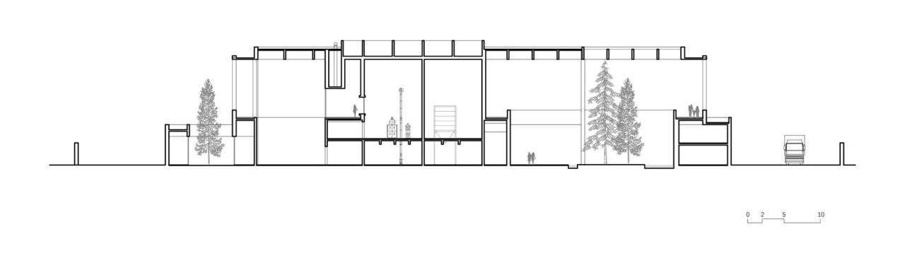
△剖面图
△剖面图
△剖面图
△剖面图
△局部剖面图
项目信息
建筑师:卓汉苏文建筑事务所
面积 :9400m²
项目年份 :2021
摄影师 :Schran Images
主创建筑师 :Johan Sarvan, Florent Buis
结构设计 :蒋杰设计
MEP :蒋杰设计
地点:宁武县

BIM建筑网














































