米窝酒店位于丽水市遂昌县的一处山顶,这里茶山与水库资源丰富,并以温泉得名,是游客纷纷来此度假的胜地。名为”米窝“便希望酒店能够有家的温度,会远道而来的客人,共同观赏这片美丽的风景。纵观酒店被山林所包围得天独厚的地理环境,设计师在建筑上用白色涂料包裹,像是一个米白色树窝,在林间描绘出明暗的边界,打造出一片屹立于山间的别样风景。从远处望去,酒店隐隐地透过树林被看见,与城市的熙攘隔绝,像是一片隐藏的白色树窝。
在通往建筑前,室外的庭院以一片环形状态呈现,仿佛拥抱整个自然与到来的客人,为空间增加了第一重的仪式感。水流从内部水系贯穿至入口处,让水流动的状态延续至整个空间,暗藏着生命与时光的流动。绕过入口,眼前豁然开朗,十分开阔的庭院随即出现,竖起的片墙创造出了丰富的动线,增加了空间的第二重仪式。层层的阶梯,展现出树木不断向上生长的状态,在光影间给人带来充满秩序的美感。
建筑的结构勾勒出极简有力的线条,呈现出自然中最干净、明朗的状态。与天空的蓝色相互映衬,感官充满极致的享受。建筑每一面都呈现出不同状态的美,多维度的生活方式在这里展开。
白色不止是一种颜色,更是一种深入人心的感受,无边泳池与天空的蓝形成了相互对话,构成了水天一色的景象,如同空间中的一片精神湖泊。泳池作为连接内与外的媒介,通过打通的体块让光线照射进地下空间,空间的共生关系进一步被强调。阳光透过流动的水波照射进地下空间,为空间增加一层灵动的色彩。
进入空间内部,设计师设置了第三重的仪式感,大理石墙面很好地区分了接待区与休息区,使得不同空间拥有独立性。环绕式的休息区周围分布着与顶部连接的立柱,弧形结构包裹出造型顶面,犹如进入了一片森林。透过落地玻璃可以望向室外郁郁葱葱的风景,模糊了室内与市外的边界。设计师建造了一个旋转滑梯通往地下活动空间,空间充满互动与趣味性。
米窝共有七间客房,其中在三层的三间客房为独立房间的形式,为一家人的入住带来如家一般的体验感。客房中加入溶洞般的泡池,可以望向远处的茶园风景,深入体验山林间的乐趣。90°的落地开窗设计让周围群山尽收眼底,沉浸于摇篮形状的浴缸内,依山而眠。客房在开窗朝向的选择中增加了对环境考量,为观察日出日落提供了绝佳的位置。
目之所及,皆是风景,内部与外部得以互相联系,让整个身心融入山间。极简的空间构造营造出自然疗愈的生活状态,美好无处不在发生。纯净的白色世界,让人得以放松心灵,只有满眼的天空与绿地,在自然中感受生活的诗意。
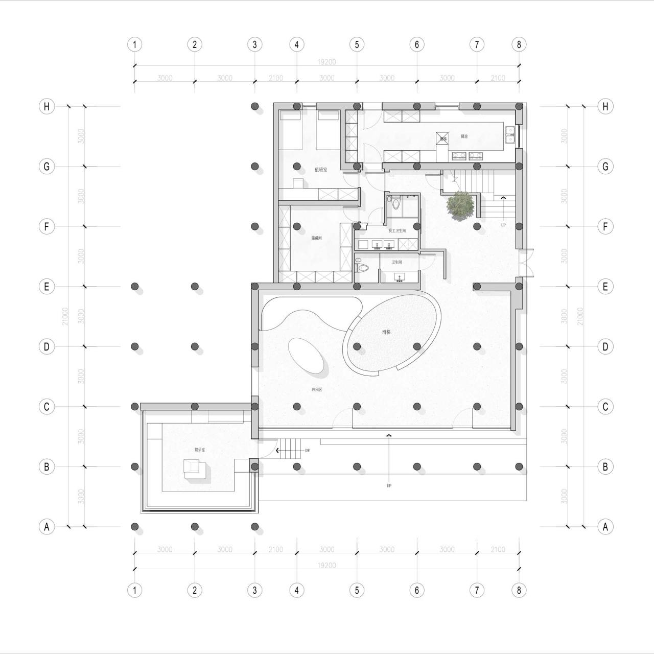
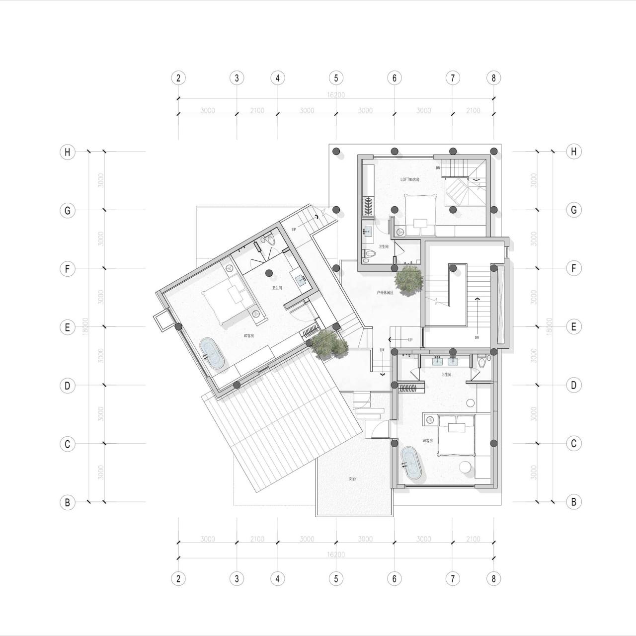
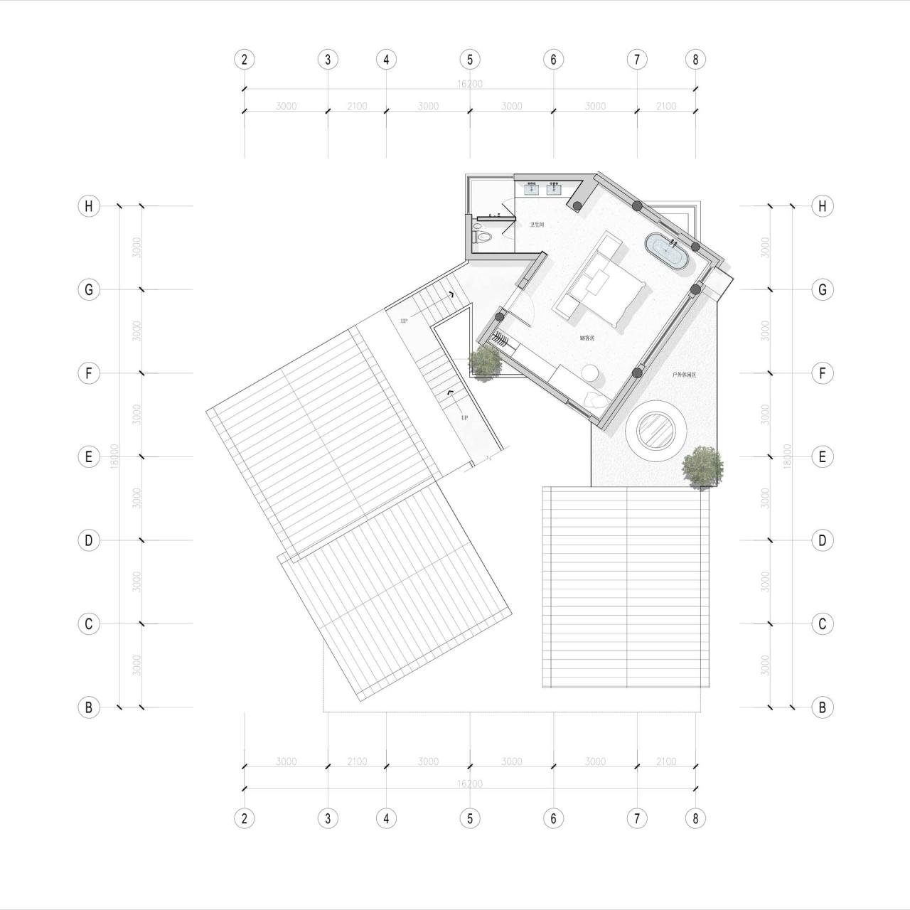
项目图纸
△一层平面图
△二层平面图
△三层平面图
△四层平面图
△五层平面图
项目信息
建筑师:杭州时上建筑空间设计事务所
面积 :1120m²
项目年份 :2022
摄影师 :曾瑜松,Song Ye
设计团队 :沈墨、张建勇、金志文
照明设计 :杭州乐翰照明设计工程有限公司
品牌设计 :SPIRITLAKE
地点:丽水

BIM建筑网





























