项目位于佛得角共和国的明德卢市,是全新的国家手工艺、艺术和设计中心,提供了一个超越明德卢市当下设计、手工艺和文化的新兴视野。该艺术博物馆项目诞生于一个富有远见的梦想。在与明德卢国家工艺品设计中心主任的非正式谈话中,他曾询问建筑师对这个背靠老建筑、带有露台的旧殖民时期房屋有何想法;建筑师最终建造了一座全新的标志性艺术博物馆建筑来回应他的问题。打从那时起,这就成为了主任的动力来源和建筑师的落成愿景,同时也是双方承诺的象征,并得到了政府的支持和全面资助。
基址包括一座在明德卢历史上发挥重要作用且已修复的老房子。除了这栋楼外,后院还有一个露天天井和另一栋建筑。建筑师被要求修复这些老房子和庭院,并在后方建造与老房子有所关联的新建筑。 而最终的空间展览、咖啡馆、商店和品牌均来自国家工艺品设计中心的策展和设计团队。
佛得角是大西洋中部由 10 个岛屿组成的群岛国。几乎每一种产品都是装在集装箱和大桶里从外国运来本土的……从石油到衣服,再到食品和移民。因此,大桶随处可见,被当地人民作为多用途的容器和材料使用。
建筑师在方案中将墙壁推倒,把庭院面向城市打开,并以桶盖营造了一个覆盖整座博物馆的独立表皮,向这个深入明德卢人民日常生活的简单物体致敬。
与其他项目一样,该项目意在使用尽可能少的资源,并通过与国家工艺品设计中心的工匠在自建回收材料车间的共同协作来实现。有趣的是,尽管项目的最终预算增加了,但建筑师依旧保留了这个概念,以将项目真正带入城市中心,并向使用的材料致敬。不仅如此,它也有着特殊的功能。
不仅如此,外立面上的桶盖还有一个特定的功能,即新建筑的双向通风立面能确保在没有空调的情况下对内部温度进行被动控制。这些盖子能像遮阳卷帘一样旋转,从而调节内部的光线和气流。同时,项目能源将由光伏板提供。
桶盖的颜色还藏了一曲乐谱,每种颜色都是一个音符。建筑师邀请了来自佛得角的作曲家和多乐器演奏家 Vasco Martins 参与并创作了色彩背后的音乐,以利用联觉的感知现象向项目岛屿的音乐传统致敬,并向广场传递视觉音乐的乐趣。
新建筑的所有家具均由 Ramos Castellano Arquitectos 设计,并由当地工匠手工制作。
工艺过程
项目图纸
△基地示意图
△负一层平面图
△一层平面图
△二层平面图
△三层平面图
△四层平面图
△五层平面图
△六层平面图
△剖面图
△剖面图
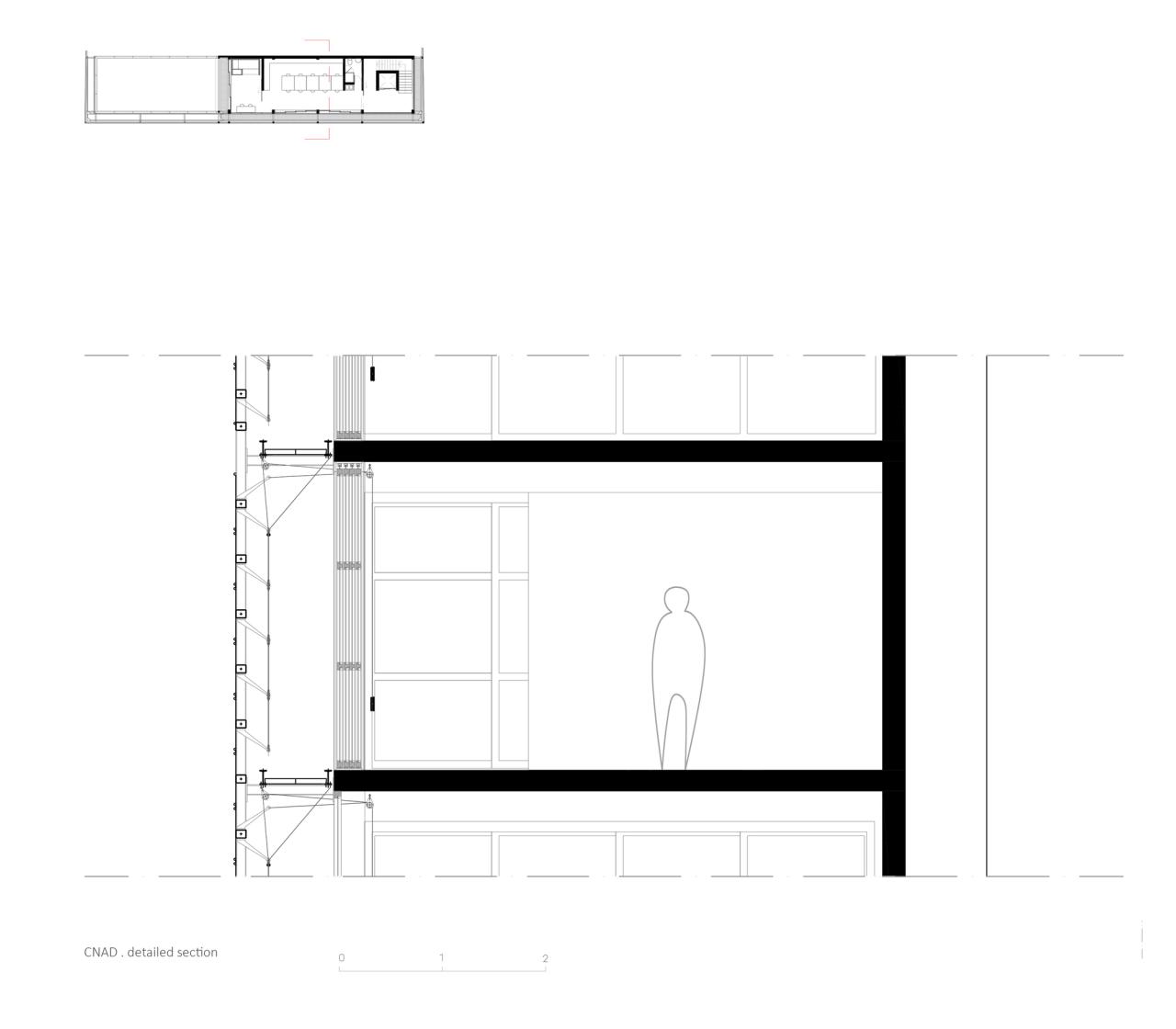
△细部剖面图
△立面图
△立面图
△细部大样图
△细部大样图
△细部大样图
△细部大样图
△细部大样图
△细部大样图
△手绘分析图
△分析图
△分析图
△分析图
△分析图
△分析图
项目信息
建筑师: Ramos Castellano Arquitectos
面积 : 1265 m²
项目年份 : 2022
摄影师 :Sergio Pirrone
主创建筑师 : Eloisa Ramos, Moreno Castellano
设计团队 : Zico Lopes, Bruno Kenny, Edoardo Meneghin, Marvin Delgado, Danil Silva, Marco dos Anjos
结构设计 : Ilidio Alexandre, Daniele Salvadorini, Francesco Bini, Denise Martins e Ricardo Martins, Luis Delgado
项目顾问 : Shrikar Bhave, Linda Lam, Ti Nene', Giulia La Ganga, Concetta Cavallaro
室内设计团队 : Design team: Bruno Kenny, Edoardo Meneghin
绘画和纺织品 : Alex Da Silva, Bela Duarte, Manuel Figueira, Joao Fortes
回收桶盖数量 : 2532
建筑师 : Ramos Castellano Arquitectos
地点 : 佛得角,明德卢


BIM建筑网

























































