IsalaMeppel打破了人们对医院的刻板印象。Vakwerk 建筑事务所并未遵循常规医院的设计方法,而是统筹全局,目标是创造能积极促进患者健康的建成环境。建筑充分利用自然光和周边景观,最终效果优雅而不失亲和力,比起医院,反倒更像是一个疗养中心。精心选择的材质和表面肌理则创造了一种温馨的氛围,让使用者感觉宾至如归。
这所医院位于荷兰东北部小城Meppel以东,靠近 Reestdal,那里遍布草地、农田、荒野、森林、庄园和巨大的农场。设计任务包括一个 23500 平方米的独立医院,内有一个 5000 平方米的综合康复中心,它们都将与周边景观融为一体。
我们的设计目标是在解决医院大量功能需求的基础上,创造一个体验友好的建筑。它将成为一个能够激发活力、促进健康、鼓励运动的治愈型环境:不仅可以为员工提供舒适的工作空间,也能改善患者的使用体验并提高康复率。与医学背景的专家共同组成工作小组并一起讨论帮助我们更好地优化工作流,最终根据讨论结果,我们将大部分功能空间放在底层以便建筑高效运转。
由于建筑主要沿水平向展开,立面使用了自然的色彩和材料,再加上屋顶绿化的设计,这都使医院与自然环境完美契合。立面波形铝板随时间的推移呈现出不同的光影效果,让建筑外观朝暮有别,四时之景各异。出挑的雨棚在强调建筑的水平性的同时阻挡了太阳辐射。
Vakwerk 建筑事务所与 Komovo 的策划师展开深入合作,以保证外部环境能够自然延伸到室内。这种空间特征还体现在一些内部细节中,比如在铺地中加入了一些黄铜质感的本土树叶元素,就好像它们是被风吹进来的一样;入口大厅墙面上的投影,里面的动物能随行人一起移动;还有墙面、门窗和窗帘上印刷的各种动植物装饰。
该医院(Isala Diaconessenhuis)不仅在空间组织和建筑表现上极具创新,而且还是荷兰首家全电动医疗机构。两个较高体量的屋顶都覆盖了太阳能板,建筑内部设有蓄热系统。此外,医院最大限度地尊重周边环境:地景主要采用当地原生植物塑造,原有的鹳鸟继续在这里繁衍生息,屋顶绿化保证了生物多样性。它们共同成就了这座人与自然和谐相处的可持续健康建筑。
项目图纸
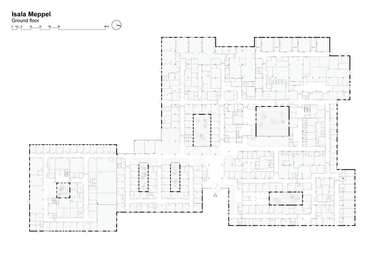
△一层平面图
△二层平面图
△剖面图
项目信息
建筑师:Vakwerk Architecten
面积 :23500m²
项目年份 :2021
摄影师 :Egbert de Boer,Melanie Samat
厂家 : Aluform,Artimo,Boll Dakmanagement,Fagerhult,Houkesloot,Kawneer,MSP Dak & Wand BV,Optigrun,TZB Tegelspecialist,Tarkett,Van Vuuren Doors
项目建筑师 :Ellen van der Wal
建筑师 :Jarno Koenen, Marck Vrieling
技术建筑师 :Tim van Beurden
室内建筑师 :Marloes Pieper
地点 :尼德兰,Meppel

BIM建筑网























