Flop是一个老厂房改造项目。它位于杭州市滨江区聚工路的一处老工业厂区内,周边有部分工业厂区遗存,并有不断更新出现的高科技产业园、创业园。改造后的厂房Flop将主要作为商业摄影基地使用,并融合艺术及品牌展览、买手店、咖啡店等休闲空间功能。
Flop的原有建筑是一栋彩钢厂房,外立面有腐朽和破损。但现场仍然保留完整的结构框架。我们谨慎地把这栋工业厂房的改造看作为一个城市更新项目的一部分,我们希望老建筑可以被循环利用起来,而并不是完全的拆除。因此我们对原有结构进行了加固处理,去除原本已经严重腐朽的老彩钢金属墙面及屋顶。改造后的建筑体量和高度会和原有建筑一致。又因为摄影多空间功能的需求,我们将原本的通高厂房增加了二层的结构层,现有结构和原有结构分别独立承重。
空间层面上,一层保留大空间,只增加了必要的室内室外的交通空间以及出入口空间。根据摄影空间功能需求增加二楼隔层。二楼空间置入小的装置进行空间的划分。顶部利用阳光板改善室内采光,墙面利用铝镁锰板回应原有建筑。
我们利用增加的二层结构层和通高空间结合起来。座椅围绕一楼的柱结构和二层的梁结构结构成为一个内向的休息空间,并与上方的二层空间形成视线交流。
建筑外立面材料的选择在回应原本的老建筑风貌的同时,采用了耐久性更好的铝镁锰板作为墙面及屋顶的主要材料。玻璃则采用了无边框的简洁做法,用简洁的方式突出强调铝镁锰板的材料。
通过建筑材料的变化去回应商业摄影所需要的不同质感层次的空间。在施工过程中,受潮墙面自然掉落形成了一种特殊的剥落感,这种剥落感展示了原有建筑的材料,而这样偶然获得的墙面效果我们把它保留了下来。
改造前:
项目图纸
△基地示意图
△区位分析图
△总平面图
△一层平面图
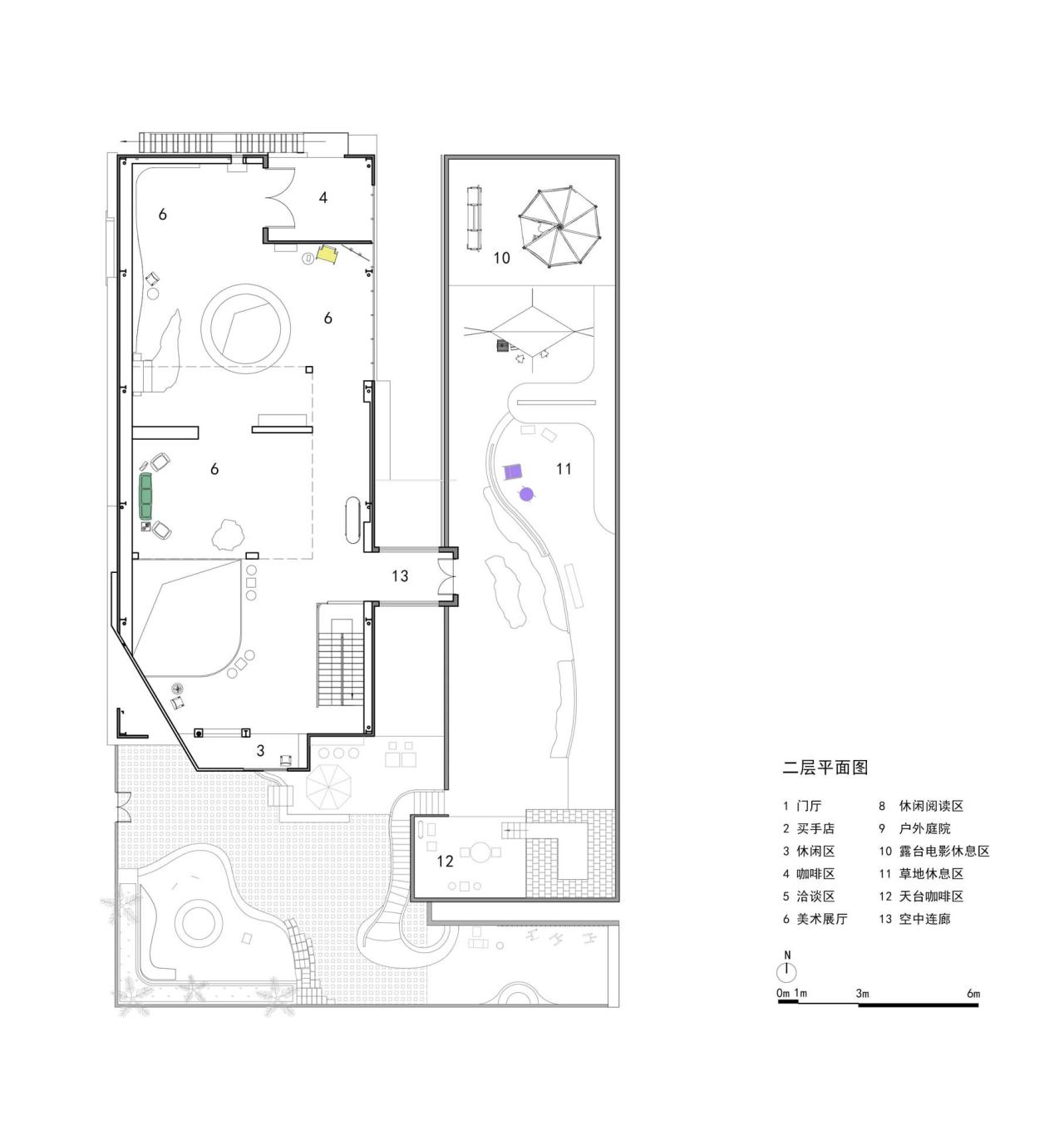
△二层平面图
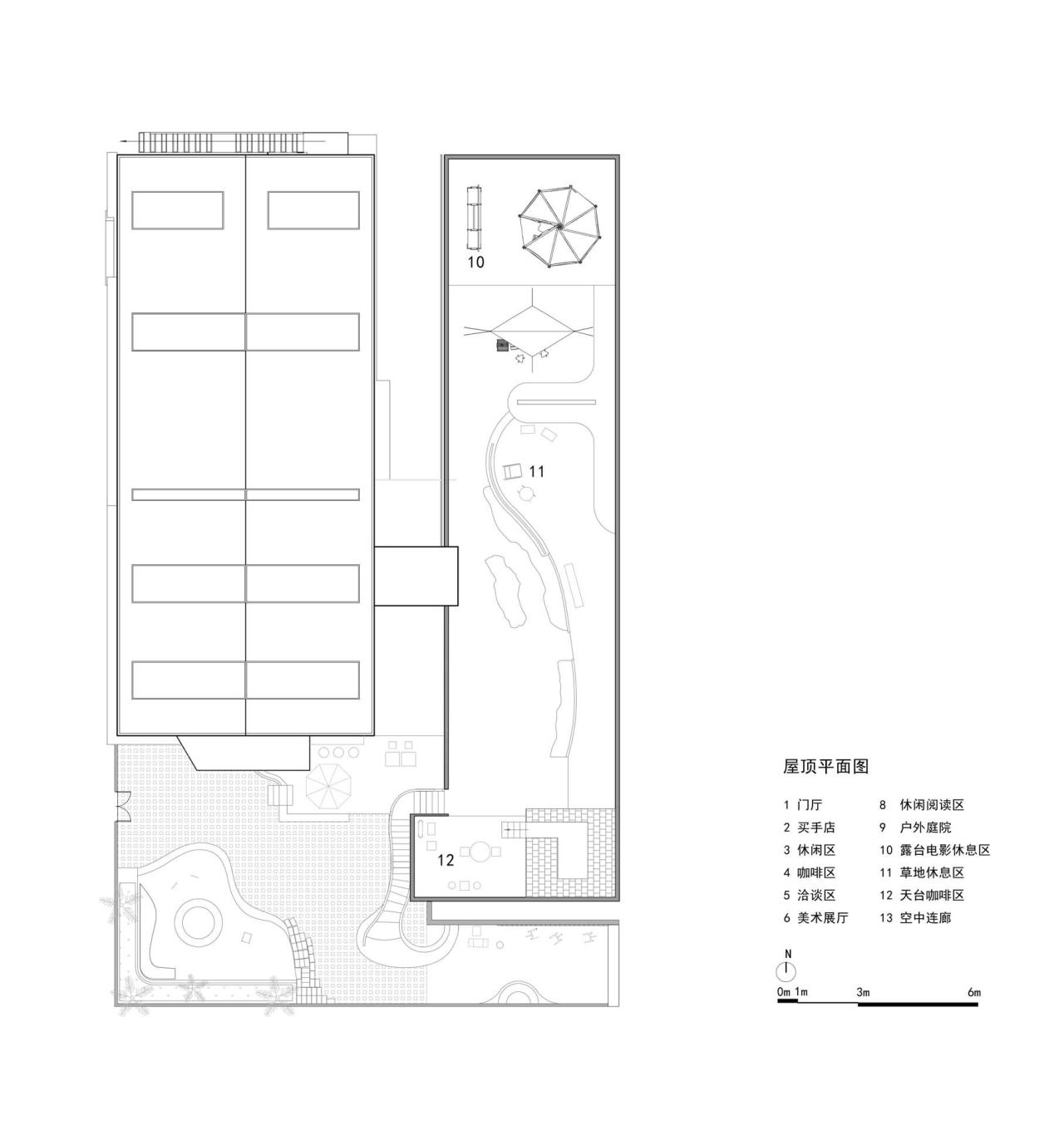
△屋顶平面图
△立面图
△立面图
△立面图
△立面图
△剖面图
△剖面图
△结构分析图
△建筑生成图
项目信息
建筑师: 房子和诗建筑事务所
面积 : 807 m²
项目年份 : 2021
摄影师 :柯剑波
厂家 : 杭州中潮建筑材料有限公司, 杭州优办装饰工程有限公司
主创建筑师 : 朱浪进
设计团队 : 肖秀莹, 沈哲琪, 虞莉, 王文静, 谢文莹, 牛新佳, 齐玥
结构设计 : 房子和诗建筑事务所
景观设计 : 房子和诗建筑事务所
施工方 : 杭州优办装饰工程有限公司
道具制作 : 浙江诺隐家具有限公司
委托方 : Flop 艺术空间
地点 : 杭州

BIM建筑网









































