西溪深蓝作为新型孵化类办公建筑,位于杭州城西科创大走廊紫金港科技城内。设计师将用户需求作为原动力,结合场地环境,用极简的空间设计语言,向人们发出邀请:这不仅是一个纯粹的办公场所,也是开放、包容、多元的文化场所,承载着社交、娱乐、生活、学习等多重可能。
孵化“X”场所项目场地相对方正,西侧为清幽河道,三面毗邻不同类型、高度的办公建筑。作为二次委托设计,整体用地较为紧张,建筑密度也不得突破原方案。在充分考虑到平衡孵化类办公建筑的空间需求与心理需求的设计愿景,采用了独立办公空间和共享开放区域相结合的方式。独立工作空间向外,保证一定私密性;开放区域向内,形成一个更有利于交流共享的空间。为了尽可能利用自然采光、通风及景观绿化,在分析城市空间和基地流线后,依据斜穿方形(东北-西南)的对角线,将建筑形体斜向切割3次:东北角主入口斜切面、西南面上层退台斜切面以及下层贯通内部中庭和河道景观的灰空间斜切面。纯粹的几何体切割,使建筑较好的融合了整个城市界面,同时X形的聚合立面又保持了新型办公建筑的独立性格。
可持续策略设计师在前期调研中细致地观察了场地不同时段的日照,兼顾考虑到杭州夏、冬两季的季风主导风向。在环境可持续表达上,西南角上下两组开口显著增强了大楼的内院的自然通风效果,提升舒适性的同时节能环保。河道景观顺着小广场景观被引入中庭、层层退台及室内,视觉上将建筑内的空间与周围的自然联系起来,从而形成“滨河绿谷——地面绿带——中心庭院——景观露台”的立体化景观。另一方面,东北侧斜切退让出的入口前场,为园区界面增加友好交流的空间的同时,邀请并引导着人们进入室内共享空间,一眼可瞥见的中庭水系和不远处的河道景观,迷人的光影、攒动的身影,打破了建筑、自然与城市的界限。空间分享是社会可持续策略的初衷。
模块化体系办公单元设计为三种办公模块,具有统一的4.2m面宽、4.75m层高和不同进深,每个办公模块4.75m层高给客户提供了更多内部可变空间的可能。这些办公模块依靠单边走道或者内走道组合在一起,顺应X的造型结合空调机位,设计分别采用斜向幕墙单元和正交幕墙单元两种幕墙单元,创造出独特、干净的立面。
悬挑的艺术为了实现X形的建筑形体效果,结构迎来29.4m的巨大悬挑挑战:多项抗震超限情况属于特别不规则结构。设计团队经多方讨论,采用钢框架+中心支撑-钢板组合剪力墙/钢骨混凝土剪力墙的混合结构体系,悬挑部分采用钢桁架加斜支撑,最终实现了设想的建筑形态。出于对环境的保护及成本的考虑,二次委托中的结构设计在安全的前提下,一方面尽可能对原桩基合理利用,一方面对原地下室楼板结构“一拆一利用”。
材料的温度材料的选择是整个建筑效果完美呈现的关键所在。铝板采用了阳极氧化工艺,配合三层中空Low-E超白玻璃,为建筑提供了高效的保温节能功能。在立面效果上呈现简洁、统一的形态,也为室内外的空间提供了透明且有效的连接。
结语西溪深蓝是一个有趣的建筑,其中包含着设计师对场地的思考、空间的敏锐度、设计的巧思、营建的控制等等。为杭城置入一座建筑,以实践探讨新型孵化类办公建筑的可能性。
项目图纸
△基地示意图
△一层平面图
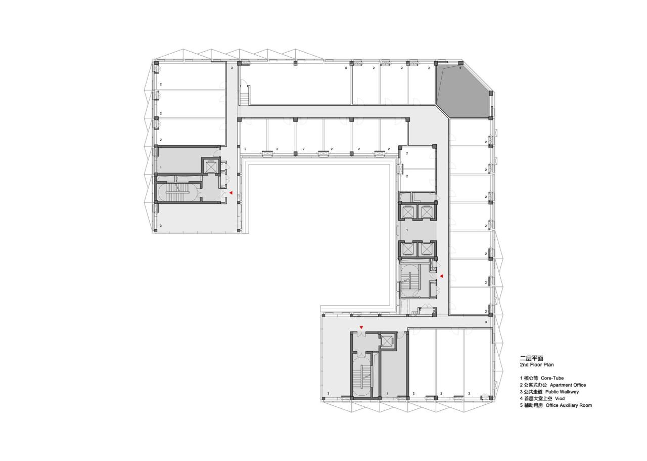
△二层平面图
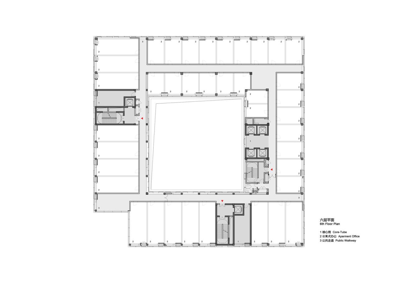
△六层平面图
△八层平面图
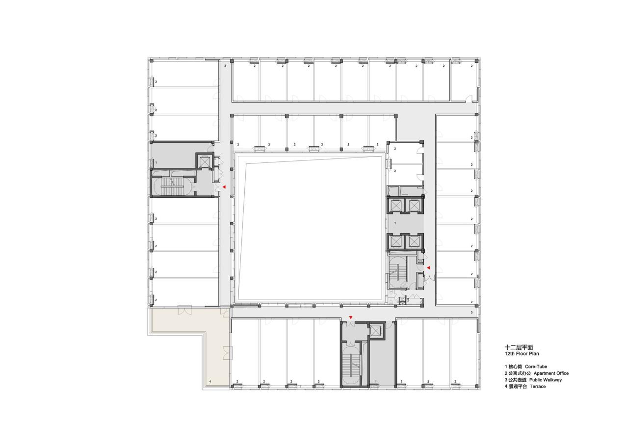
△十二层平面图
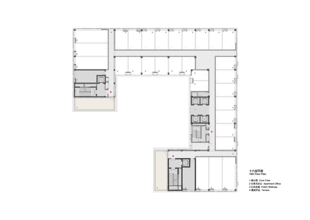
△十六层平面图
△屋顶平面图
△建筑生成图
△模块分析图
项目信息
建筑师:GLA建筑设计
面积 :36416m²
项目年份 :2022
摄影师 :姚力
地点 :杭州

BIM建筑网






























