天上的风,不系缰绳
地上的我们难以永存
只为旷野无垠 星空依旧灿烂
或许 你还能隐约望见
自此刻我正策马渐行渐远
那犹自不舍的回顾
还在芳草离离空寂辽阔之处
——席慕容
▲乡村的未来
▲项目鸟瞰
乡村之困境
英国诗人库伯说“上帝创造了乡村,人类创造了城市”。这是说从人类社会诞生开始,乡村就出现了。城市则完全是人在某种文化的引导下创造出来的新东西。在过去几千年中,乡村一直是中华文明的基础,如今却在如火如荼的城市化进程中遭到冲击。海德格尔也说:但“在大地上”就意味着“在天空下”。两者一道意指“在神面前持留”,并且包含着一种“向人之并存的归属”。从一种原始的统一性而来,天、地、神、人“四方”(die Vier)归于一体。但是乡村会在中国消失吗?在新的时代里,乡村振兴成为了中国国家发展战略的一部分,旨在促进农村地区的发展和提高农民的生活水平。可持续发展是指在保护环境和资源的前提下,通过解决经济、社会、环境三者之间的矛盾,实现经济增长、社会进步、生态平衡的发展目标。
▲乡村困境
基础设施的功能微更新
农业发展是乡村振兴战略的重要组成部分,农业发展对于促进农村经济发展、提高农民收入、促进乡村社会繁荣有着重要意义。在农村中存在大量的基础设施,包括水闸,大棚,道路,岗哨,变电站,水渠,机耕道,污水站等。这些基础设施大多没有很多设计元素,甚至很多基础设施存在空置和空间利用率不高的问题。这些基础设施具有基本的结构安全性,因此利用现有基础设施进行一系列乡村微更新有很多优点,通过轻质介入的方式快速对基础设施进行艺术化处理并叠加新的功能,可以充分提现乡村微更新的优势。
▲设施分类
▲设施与功能结合
▲金农文旅协调发展
▲稻田:生产与景观的结合
以点带面的艺术微更新
艺术引领是指通过艺术的力量引导和指引社会的发展方向。在乡村振兴战略实施过程中,艺术引领也可以发挥重要作用。具体可以通过以下方式来实现:促进农村文化传承:通过艺术引领,可以促进农村文化传承,帮助农民更好地认识和传承自己的文化。其中比较有名的越后妻有大地艺术季,有与各地的乡村一样,越后妻有地区受到高龄化与人口流失影响,产生约500间空屋、20所废校的闲置空间。在国际知名策展大师北川富朗的专业艺术团队策划下,这些闲置空间被积极活用,透过现代艺术、在地文化与土地紧密结合,2000年举行了第一次的大型展览活动「越后妻有大地艺术祭」,大受好评,后来便成为每三年一届的常态性活动,也是世界最大级的国际户外艺术祭。
▲乡村的包容性
▲乡村艺术多样性
▲乡村艺术分析图
▲田园牧歌艺术观景台:如果云知道
重启乡情的赋能微更新
重启乡情的核心是让人的情感回归乡村。这意味着让人们感受到乡村的魅力,让人们重新认识到乡村的价值,并让人们愿意回到乡村生活。通过乡村微更新的方式提高乡村生活质量、促进乡村旅游业发展、改善乡村环境等方式实现。通过农业+的赋能将乡村产业带入,让乡村有产业,有小钱,活下去,长久的运营下去。让亲情,爱情和友情在乡村中持久的发酵,最终成为让人爱上乡村。
▲农业+赋能闭环图
▲乡村振兴分析图
▲实景照片
乡村微更新的在地实践
金茂田园牧歌项目,其位于南太湖塘甸村一隅田间,“守望灯塔”的前身是大兴港水闸,位于塘甸村一隅田间的河道上,是周围几公里内地标的最高点。建筑现状结构和水闸功能都保存良好,但由于经年使用,历史沉积,立面破败陈旧,有待唤醒新的面貌来赋予周边景观新生的活力。“故乡的云”位于田间的机耕道上,提供了一个远眺田野的观景平台。
▲区位分析
▲周边环境分析
叙事1:再造基础设施
▲水闸插画鸟瞰
▲新旧对比图
▲现场照片
再造工业遗迹
新的水闸延续了原有相生对望的结构,顶部的塔尖分别改造成了一方一圆形全新的几何空间,暗合天时四方,万事万物从无到有的过程。在透明的尖顶空间里,可以俯瞰整个金茂原野,新生的水闸犹如田间的守望者,面向东方,清早,可以看田野日出,入夜之后,灯光亮起,则成为黑夜里的灯塔,为夜行人点灯。以双塔为基底既有建筑改造。世界上最远的距离是人与人之间心的距离。在每天拥挤的生活背后却是人与人之间最疏远的距离。爱情也经历着金钱,家庭,未来,现实和诱惑的考验。两颗心从吸引到疏远,到最终合二为一,诞生新生命的全过程。
▲改造前后对比
▲改造策略
▲外立面改造策略
▲改造策略
▲水闸照片
在乡村的宏大叙事背景下显得尤为充满人情味和挫折。平凡人的小爱情在大时代下显得微不足道,却是今天这个城市仅存的温度。原有建筑为作为基础设施的水闸,其古老的闸门依然有重要的功能作用。美学的生活和劳作的生活其实从来没有脱离,可能恰恰共同构成了理想的生活,在中国早期各类建筑的营造和使用过程中,一直就包含着农业生产的属性,水闸不仅仅包含了空间美学系统也包含了基本的农业生产系统。
▲水闸照片
空间游走
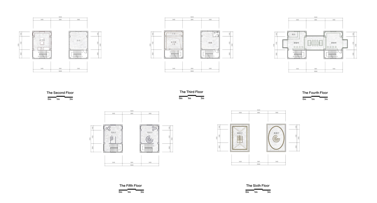
文艺的基点重新落于自然。 坐在水闸建筑漂咖啡的下方,有塔之书屋丰富人文气息和文创周边展示,在底层也设置了接待空间和相关工作人员的办公区。 室内通体为清水混凝土和木色为主材,辅以镜面不锈钢和玻璃作为点缀,其中,两侧通往塔顶的楼梯也被设计成一圆一方不同形态,并选用粉色和蓝色的涂料,来比拟一个男孩与一个女孩相互守望的意向。
▲水闸西入口
▲剖面动图
▲流线动图
红砖墙面的水闸中部有廊道相连,透明的玻璃幕墙使视野完全开敞,面向河道及田野,中间仍放置水闸机械,保留其原始的功能及元素,两侧改造为漂咖啡。
▲室内实景照片
– 马房咖啡(一层)
以清水混凝土材质为主的设计风格较为简洁、现代,可以给人带来轻松、自然的感觉。在设计咖啡厅时,考虑以下几点:考虑使用清水混凝土材质作为咖啡厅的主要建筑材料,为空间营造出简洁、现代的氛围。使用木质、布艺等自然材料来与混凝土材质相辅相成,使空间更加温馨自然。在布置家具时,可以选择简洁的设计风格,使空间更加开阔。在照明设计上,保持室内相对暗的属性,局部点缀氛围灯光,为空间营造出安静氛围。吊顶上下垂的倒三角隐约透出上层图书馆的空间影像,将楼层板所限定的空间打破.
▲场景插画
▲改造策略动图
▲一层原始照片
▲方案效果图
▲一层咖啡厅实景照片
– 无限图书馆(二层)
图书馆—以木材质为主的图书空间,采用两层通高的设计,天花采用镜面不锈钢的设计产生了无限衍生的高耸空间感受。透过楼板的玻璃与一层咖啡厅链接。
▲二层场景插画
▲二层原始照片
▲方案效果图
▲改造策略动图
▲二层图书空间照片
– 视野通廊(四层)
四层为双塔的连接部分,通过大面积落地的镜面玻璃,提供了出色的景观视野。可以俯瞰整个农业区的美丽景象。
▲四层场景插画
▲四层原始照片
▲方案效果图
▲改造策略动图
▲四层休憩空间照片
– 冥思之层(五层)
展示空间—以清水混凝土材质为主的链接空间,通过左右2个不同颜色的楼梯上到塔顶。
▲五层场景插画
▲五层原始照片
▲方案效果图
▲改造策略动图
– 顿悟(屋顶层)
顶层—以玻璃幕墙建为主的极佳360度观景空间。拆除原有屋顶后形成了360度的全景视野。
▲改造策略动图
▲屋顶场景插画
▲方案效果图
▲屋顶观景空间照片
建筑细部
建筑主题保持原有结构不动,原有屋顶拆除后用玻璃屋顶代替,屋顶采用柱体支撑,先围合所需要呈现的形状,然后采用玻璃拼接,形成玻璃墙面,最后封顶。镂空砖墙通过在已有墙面镂空部分内插入钢结构,层层叠放,红砖错层堆砌,从而形成镂空砖墙面的效果。拆除原铝板幕墙,更新为传统的红色PK砖幕墙系统。使得古建筑更加庄重典雅,彰显了田园风貌。拆除原洞口窗,更新为红色花式陶砖+长虹玻璃窗幕墙系统。
▲屋顶建造技术
花式陶砖幕墙洞口的机理与大面红色PK砖幕墙一致,浑然天成为统一整体,花式网格空洞兼功能与艺术为一体,白天窗口与大面墙体浑然一体,夜晚空洞透射多采灯光,更具散发出迷人的艺术气氛。折除阳台部位原铝板幕墙及窗,更新为横明竖隐玻璃幕墙系统。面板采用大板块高反射玻璃,彰显了建筑的高档大气,室内光线柔和,人在室内又能清晰的观赏室外美景同时又保留了室内的私密效果。拆除了红瓦尖顶的装饰构件及墙体,更新为高透玻璃幕墙系统及不透钢屋顶。玻璃幕墙采用的大板块超白夹胶玻璃,幕墙钢立柱直接支撑屋面结构,屋面板采用大板块的不锈蜂窝板,构造简约精致,东侧为方形玻璃幕墙,西侧为椭圆形玻璃幕墙,低调简约的玻璃幕墙加盖高雅华顶的不锈钢顶,
▲镂空砖建造技术
岁月与文明
“在这个小小的暗淡蓝点上,你所爱的每一个人,你认识的每一个人,你听说过的每一个人,曾经存在过的每一个人,都在上面度过他们的一生。我们的欢乐与痛苦,数以千计自以为是的宗教、意识形态和经济学说,所有的猎人与强盗、英雄与懦夫、文明的缔造者与毁灭者、国王与农夫、年轻的情侣、母亲与父亲、满怀希望的孩子、发明家和探险家、德高望重的教师、腐败的政客、超级明星、最高领袖、人类历史上的每一个圣人与罪犯,都在这里——一粒悬浮在阳光中的微尘……”这里的文明充满焦虑,算计,斗争与欺骗,而平凡的感情几乎是最后避风港。在超人尺度的空间时间背景下,守望岁月就如同是宇宙中的毫无存在感的一瞬间!但是对于你我,这就是文明的全部…… 灯塔是黑暗中的已知点,我们要做的事情是点亮灯。在日暮时分,夜色降临时,灯塔上的光会被点亮,在孤独的花海与田野里,你我相遇,也是一个故事和灯塔的相遇。相遇,获得,失去,成长,释怀,收获。我与旧事归于尽,来年依旧迎花开。
▲水闸照片
叙事2:艺术引领,大地之云
▲效果图
▲如果云知道装置
场的耳朵
01
思念是长长的线,
连着恋人的手臂、
游子的行囊、
亲人的牵挂。
设计以“如果云知道”作为设计理念,整个装置悬浮于稻田与水渠之上,与广袤的农田,远处的青山交相辉映。像一双大手承托着天空,又像外太空降临的航天器,还像丰收后载满粮食的飞船。稻田、水渠、远山、白云相互辉映,勤劳的汗水、丰收的喜悦、恋人的爱情共同演绎了一曲田园牧歌。
▲云装置四季概念图
▲云知道装置总平图
▲云知道装置照片
梦的视野
02
思念是变幻的梦,
恋人的相拥、
游子的归程、
亲人的饭菜。
造型以简洁的形态立于环境之中,云朵的造型为参数化折线造型,充满了力量感,白色的材质纯净整洁,悬挑12米的楼梯直插云霄,人登顶的那一刻能够感受到站在云端之感觉。造型中大量应用三角形的母体,强调形态的力量感、冲击力。景观塔的结构采用悬臂形式充分展现了力学构件的超现实的漂浮感。悬臂的顶端平台位于整个稻田的中央,顶部云朵状的全开放视野观景台正对着天际线当中的地标建筑——水闸书屋,在平台上游客可以通过360度多方向的视野体会到不同层次的自然景观风景。
▲搭建策略
▲装置插画概念图
▲方案效果图
▲云知道装置夜景照片
▲云知道装置日景照片
▲云知道装置总平图
▲云知道装置结构图纸
▲装置细部
▲如果云知道装置阶梯
▲如果云知道装置
▲材料切片图
光的色调(材料设计)
思念是高高的云,
是恋人的情谊,
是游子的遥寄、
亲人的寄托。
楼梯材料选择全反射的金属铝板,可以反射周围的环境,使得整个悬挑的结构消隐在环境之中。云的材质采用穿孔金属板,半透明的朦胧材质与农业生态自然进行了很好的融合,同时这也是工业化、智能制造的体现。
▲云知道装置照片
▲装置施工拼接现场
▲装置结构图
人的情感
04
如果云知道,
它会把这思念告诉给远方的人。
站在这云里就站在了你的身旁。
夜晚,华灯初上,内透的灯光打亮了云朵的造型。在整个宽广的稻田之上,一个漂浮的白色云朵“孤独的”悬浮之上,成为整个区域的地标。水稻渠成,平步青云。无论是久别故乡的游子,还是如胶似漆的情侣,亦或是辛勤劳作的农民都能在“如果云知道”这个装置中找到自己的精神归所。
▲如果云知道装置照片
走,到乡村去!
自然环境得天独厚的乡村,如同一方世外桃源,吸引了越来越多年轻人,包括艺术家们的驻留。曾经的乡村更像是一个理想生活的场所,在这里,“诗意地栖居”得以成为现实。在乡村振兴的系统化引导下,我们希望我们的这几个小建筑可以做出一点微小的作用。
项目图纸
▲水闸立面图
▲水闸剖面图
▲水闸剖面图
▲水闸首层平面图
▲水闸各层平面图
▲钢架结构剖面图
项目信息
【水闸改造】
业主:中国金茂华东区域
项目地点:南太湖,湖州
设计单位:上海交通大学奥默默工作室
主创设计师:张海翱,徐航
金茂设计团队:杨振宇,汤丹,徐文斌,殷源源,环沪公司设计团队
建筑设计团队:王竟闯,潘文琪,李金海,马利宝,钱琨,张明蕙
精装修施工图:金茂装饰
幕墙深化设计:海德幕墙
结构设计顾问:上海同大规划建筑设计有限公司
景观设计:MAO
灯光顾问:海德幕墙
建筑摄影:苏圣亮
【如果云知道】
业主:中国金茂华东区域
项目地点:南太湖,湖州
设计单位:上海交通大学奥默默工作室
主创设计师:张海翱,李迪
建筑设计团队:杨格,李依杭,唐玲,刘静茹
金茂设计团队:杨振宇,汤丹,徐文斌,殷源源,环沪公司设计团队
结构/幕墙深化设计:北京永一格国际展览有限公司
落地施工项目总监:刘清哲 (永一格)
建筑摄影:苏圣亮

BIM建筑网
















































































































