这个生态度假村位于巴厘岛塔巴南的 Kaba-Kaba,这一令人叹为观止的二期工程包括了许多将该综合体集合于一体的关键设施。乌拉曼一期工程曾受到媒体和公众的高度评价,并获得了多项国际设计奖项和报道,其中最著名的当属备受赞誉的联合国教科文组织凡尔赛可持续建筑奖。
除了延续一期工程中所使用的夯土、竹子、天然石材和再生木材等材料,项目还新增了在许多屋顶结构和水疗中心建筑中常见的复合 SIP 面板等关键元素。这座有机建筑由一系列圆顶和起伏的绿色屋顶组成,将建筑与周围生态融为一体。这些面板具有极低的碳足迹,使用已回收和可回收的 EPS 以及土基纤维增强聚合物抹灰,使其变得坚固、轻便且具有高绝缘性。
全新的莲花餐厅区包含一系列几何豆荚,就像迷你版的大教堂。它们坐落在众多瀑布的理想交汇处,其中一个瀑布还是由重新引入场地中心的湖泊所全新打造的。这个曾经因农业原因而被切断的湖泊现已重获生机,基本上恢复了微生态系统,并为场地引入了光线和氛围。这个湖泊还作为水库为水力涡轮机提供动力。
这些都由位于停车场的太阳能电池板提供能源补给。项目还增建了数个房间:一些房间坐落在湖面上,一些位于 9 米高处的房间则伸入树冠。这些豪华单元高度隔热隔音,内部空间宽敞且视野开阔;其他基础设施则包含健身房、瑜伽馆、自然生态池和小型会议室。
总之,乌拉曼豪华生态度假村二期在可持续技术和材料的凝聚力和独特组合方面都具有开创性,其周边的生态系统保护和复兴也堪称典范。该项目可谓是当客户和建筑设计团队为共同目标一起工作的一个声明和典范,以突破创建可持续智能设计解决方案的潜在边界。
项目图纸
△基地示意图
△总平面图
△顶视图
△透视图
△透视图
△透视图
△平面图
△立面图
△剖面图
△平面图
△剖面图
△剖面图
△剖面图
△剖面图
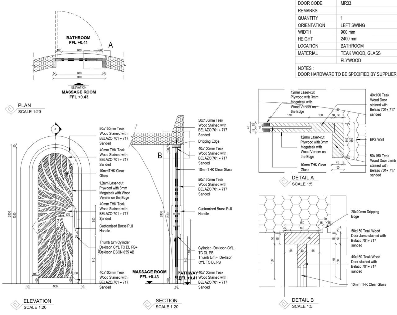
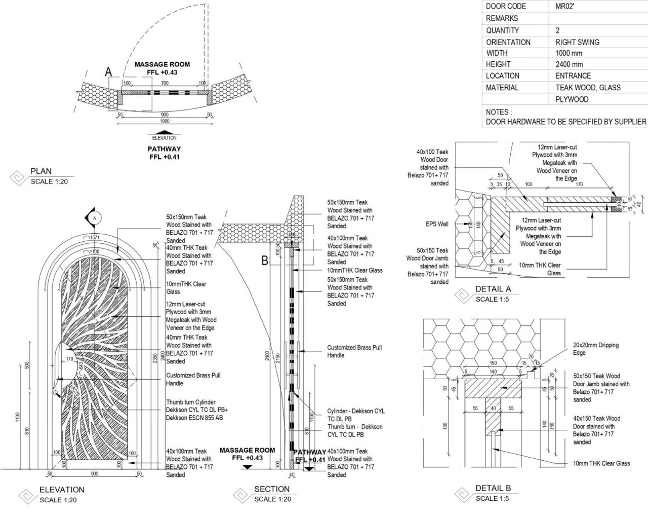
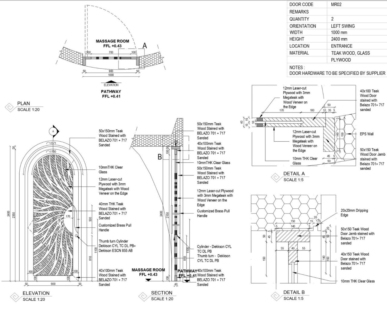
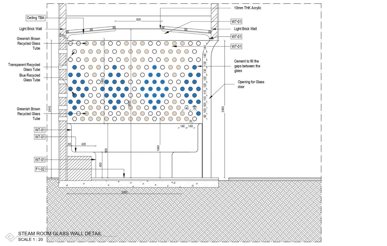
△细部大样图
△细部大样图
△细部大样图
△细部大样图
△细部大样图
△细部大样图
△细部大样图
△细部大样图
△细部大样图
△细部大样图
△细部大样图
项目信息
建筑师:Inspiral Architecture and Design Studios
面积 :1521m²
项目年份 :2022
摄影师 :Wanderskyy, Kevin Mirc, Bianca Blajovan, Nora Brown, Symbiosis Studio
厂家 : Dekson,Eco Smart Hub,PT. Indo,Propan,Sika,Urecel,Zelltech
主创建筑师 :Laura Tika R, Marvin Edward Lesmana
责任建筑师 :Laura Tika R
3D概念建筑师 :Marvin Edward Lesmana
土建承包商 :Wayan Konstruksi
项目管理 :Adi Ariantika
建筑师 :Inspiral Architecture and Design Studios
室内设计 :Prima Design
地点 :印度尼西亚,Kediri

BIM建筑网













































