罗兴亚文化记忆中心是一个试图为其所代表的的人群找回已丢失身份的建筑,它通过充满创造性的方式为罗兴亚人的肉体及精神而战。罗兴亚文化记忆中心从始至终坚持良好的实践方式,摈弃泛滥于现今世界的“毁灭性”设计。该建筑意在创造故事,并关照所有聚集于其中的人们。它并没有尝试建造确定性,而是通过构筑“爱”的力量以照顾着所有依托于建筑的罗兴亚人。罗兴亚人族群大多数在一生中经历了变故与不安,就目前的情况而言,他们分散居住在各个难民营中,因此这种生活的不确定性也渐渐影响了他们的文化及价值观:所有正在发生的事情都将塑造他们所拥有的一切。
尽管生活环境动荡不安,但是罗兴亚人拥有着许多故事、知识及智慧,从而为创造积极、关怀的建筑创造可能。“罗兴亚文化记忆中心”位于罗兴亚人最大的难民营区,并意在收集、保护、传播属于罗兴亚人的知识与故事,由此即便在最不稳定的情况下,也可以为流离失所的人群建造充满善意的空间。罗兴亚的工匠及当地社区成员为此贡献了他们的本土知识、技术、生活方式及故事,从而帮助建筑师恰当地形象化设计空间。并且,建筑师利用了当地的水椰叶(om pata/gol pata)构筑了屋檐、各种竹编工艺品、传统样式的门窗、家具以及其他刻有当地文化印记的物件,以此由内而外地打造了仅属于罗兴亚人的建筑。
在建造过程中,拥有多年专业知识的年迈工匠向年轻一代的人们教授他们记忆中的技术,年轻的罗兴亚人则在此基础上探索新的可能性,亲手构筑文化中心的每一处空间。因此,罗兴亚文化记忆中心也是一个建立在建筑师与当地人们间的各种设计会议及实践研讨的成果。例如,建筑师希望工匠通过设计一个小窗口,以寄托他们最爱的记忆或故事。因此,文化中心中央挂有属于他们的房屋、钓鱼、大象、鸟类、稻田等各种珍贵回忆的物件,由此反映了罗兴亚人的记忆和集体感。此外,罗兴亚人在加工天然材料方面拥有丰富的技能,因此建筑师在施工过程中谨慎地选择了适当的材料,以让工匠们可以使用自己熟悉的技术。并且,建筑师与工匠在项目开始时,就已经确定用本地材料“从零开始”,并在施工过程中鼓励所有人自由地思考、讨论、一点点地手工搭建文化中心,以此保证了建筑空间的包容性及愉悦感,从而也让使用者们可以保持精神健康。
此外,园艺也是罗兴亚文化记忆中心中一个关键的连接元素:各种在设计讨论中出现的植物都将被实际种植,并用于各种目的。此外,所有绿植集中种植于四个不同的庭院中:家及厨房花园有着 Kolkoitta Bor fata、 Horo fata、Vaat fata/foni fata、 Dhanya morich、Dhei haak、Tara Gachh (柠檬树)及 Jaillya/kodu 等,水畔种有 Kolmi haak,睡莲、 Fena(Kochuri pana、topa pana、khudi pana)等,而疗愈花园中则种有orur roun、Asila / achila gachh、Boraduwa、Arbwa lota、Shushulil lota、Jermoni gachh、Bashuk fata、Hani fata、Halamanik / halahuna 等有药用价值的作物。
罗兴亚文化记忆中心位于难民营营地中心的山顶上。其施工确保了营地中临时建筑的灵活性,并使用了易于拆卸的预制柱,地板组件、螺母螺栓接头等。此外,罗兴亚文化记忆中心有着较大的屋檐,由此屋顶延伸的部分既形成了凉爽的遮阴空间,同时也确保了建筑内部免受来自垂直方向及水平方向的雨水影响。并且,罗兴亚文化记忆中心在建筑主厅周围为所有人打造了可以自由活动的空间,从而让其内部环境更具吸引力。
罗兴亚文化记忆中心的回形屋顶从四侧向中心倾斜,从而在需要时可以在中心收集、利用雨水。此外,人们在建筑中打造了四个中庭,由此为内部展示空间提供了自然光线,并为其营造了一种静谧的氛围,从而让人们享受美好的回忆空间时,将难民营的糟糕生活隔绝在外部世界中。并且,建筑大厅中最具代表性的坚固竹制穿孔屏风确保了展览空间的透气性,同时它还在确保隔断安全性时,在内外空间之中建立了视觉联系。罗兴亚文化记忆中心的设计确保了展示厅与厅之间及空间内部的通透性,从而让建筑更好地利用山土以应对雨水,并且也源源不断地补充了地下水资源。罗兴亚文化记忆中心的建造是一个集结了材料工艺、匠人贡献及社区记忆的合作项目,同时它也为罗兴亚人打造了一个可以纪念过去和现在的美丽建筑。这一建筑既是临时的居所,也是善事的实践。它促进了人与人之间的相互学习,包容了对与错。它是对所有人的祝福,也是独属于罗兴亚人的聚集之所。
项目图纸
△模型图
△局部模型图
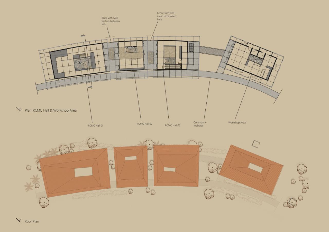
△平面图
△剖面图
项目信息
建筑设计:Rizvi Hassan
面积 :501m²
项目年份 :2022
摄影师 :Rizvi Hassan
主创建筑师 :Rizvi Hassan
概念设计 :Manuel Marques Pereira
设计团队 :Manuel Marques Pereira, Rizvi Hassan, Khwaja Fatmi, David Palazón, Shahirah Majumdar, James Okello Charles, Nersisian Dmytro, Rezaul Karim, Muhammad Rahul Karim, Hossain Ahammod Masum, Mustafa Kamal, Fouzia Reza, Tazrian Rahman, Sadya Mizan, Fawzia Bhuiyan, Nurul Amin, Mohammad Shibbili, Shofique Islam, Khushi, Shahida Win, Md. Yusuf, Md. Zaber, Nur Ali, Md. Hossain, Md. Faruk, Mohammad Noor, Nurul Islam, Imam Hossain, Ali Johor, Nur Alom, Shahabuddin, Khairul Amin, Soidul Islam, Shamsunnahar, Zakir, Md. Yakub, Rashidullah, Jamal, Idris, Sobur and others.
建造团队 :Rizvi Hassan, Ueda Haruka, Alberto Alcalde, Hasballah, Enayatullah Hemat, Md. Ali Mamun, Abdu Sukkur Bappy, Rafique Uddin, Tonmoy Bhattacharjee, Prantik Chakraborty, Bivuti Bhushon, Clint Kimmel
业主 :Rohingya Refugees (国际移民组织支持)
工程 :Ali Mamun, Abdu Sukkur Bappy, Alberto Alcalde, Hasballah
景观 :Shamsunnahar, Md. Yakub, Mostafa Kamal及其他
合作方 :IOM(国际移民组织)和罗兴亚社区
地点 :孟加拉

BIM建筑网







































