一家人决定拆除原来的老房子,并在原址上重建新房。由于他们曾经长期生活在这里,因此对基地条件了如指掌。他们也曾到处搬家,所以很清楚自己期望的理想住宅应该是什么样的。基地位于街角,三面临坡,其中东西侧高差达4.9米,它的周围都是类似的小住宅。
住宅的规模确定是设计的难题。在前期交流过程中,业主希望住宅的总体规模能比周边建筑更大一些。一开始我们设计了两层楼,但之后业主希望加到三层。地方规范要求采用的坡屋顶形式,也使建筑体量看起来更加庞大。此外,建筑外围为保护隐私而设置的封闭实墙进一步加强了住宅对周边环境的压迫感。
当地的建筑公司多采用砖材建造房屋,在造型上一般采用分段式的体量和屋顶,而不是一个完整的体量。因此,我们利用这一特征使建筑融入周边文脉,同时解决了体量过大的问题。设计将整个建筑化整为零,让三层空间从二层屋顶上凸起,并有意识地将其屋顶做成不同的方向。在采用单一常规材料的同时,设计在完整的体量中嵌入了混凝土板条以划分楼层,还用了三种不同的砌法砌筑外墙。
事实上,红砖一直是韩国住宅的经典材料。而将本土元素与外来元素相结合或重组,就能让建筑既不会过于前卫,也不会过于保守。一个典型的例子是柱子与传统韩国移门的结合。该柱子需要一个合适的尺寸来收束四对门,与削减建筑体量感的思路一样,柱子也被划分成了四个竖直的构件和几段铁箍。中心的钢柱采用了密斯·凡·德罗的设计,木材和金属的组合来自卡洛·斯卡帕,而铁箍则是韩国传统建筑中的常见元素。
除了建筑要素之外,视觉开放性与隐私问题也是设计重点考虑的问题。由于业主一家都喜欢在户外活动,因此他们希望在确保私密性的同时,能够从建筑的各个角落方便地进入室外活动。于是设计在底层用移门取代墙体分隔家庭活动空间,这样一来,房间就可以灵活地向院落开放。二层被设定为私密空间,并采取了与底层截然不同的构成方式,如将窗户开到最小,还用露台的矮墙遮蔽了大部分窗户,但每个房间仍可以通过露台享受户外空间。门厅空间同样与院落结合,虽然门厅没有直接对外开窗,但我们仍然可以保证其采光和通风的要求。这些设计让居住者在不关闭窗户或拉上窗帘的情况下也能保护自己的隐私。
室内空间以及各楼层之间也具有一定的开放性和流动性。入口空间的通高做法将上下两层联系在了一起。主卧与卫生间之间采用半开放式设计,即使关上门,也不会把空间割裂开。经过了特殊处理的房门,在打开时可以消解房间之间的固有边界。凡此种种,都让整个住宅实现了各个方向的连通性。
传统的元素可以让建筑更好地融入周边文脉并确保舒适性,而外来的对立元素则可以满足多样化的需求。Jeokhoje 通过传统手法塑造现代空间,同时利用外来技术使其落地。建筑的整体体量和气质与周围和谐一致,视觉开放性与空间私密性的矛盾被同时化解。虽然项目借鉴了周边建筑的材料和形式,但它的表达是全新的。更进一步说,该项目通过传统元素与外来元素的对立统一,在个体利益和公共利益之间取得了平衡。
项目图纸
△模型图
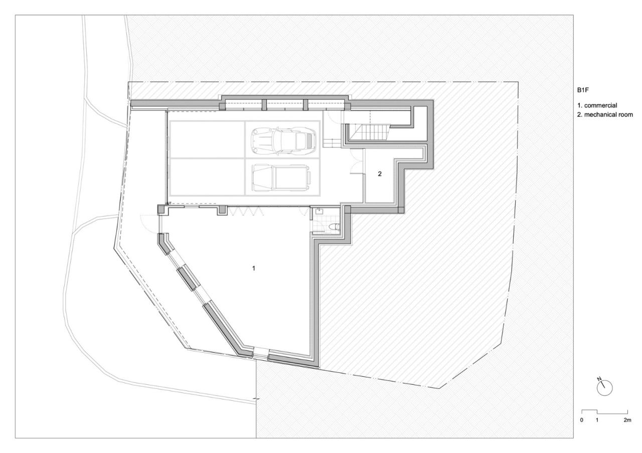
△负一层平面图
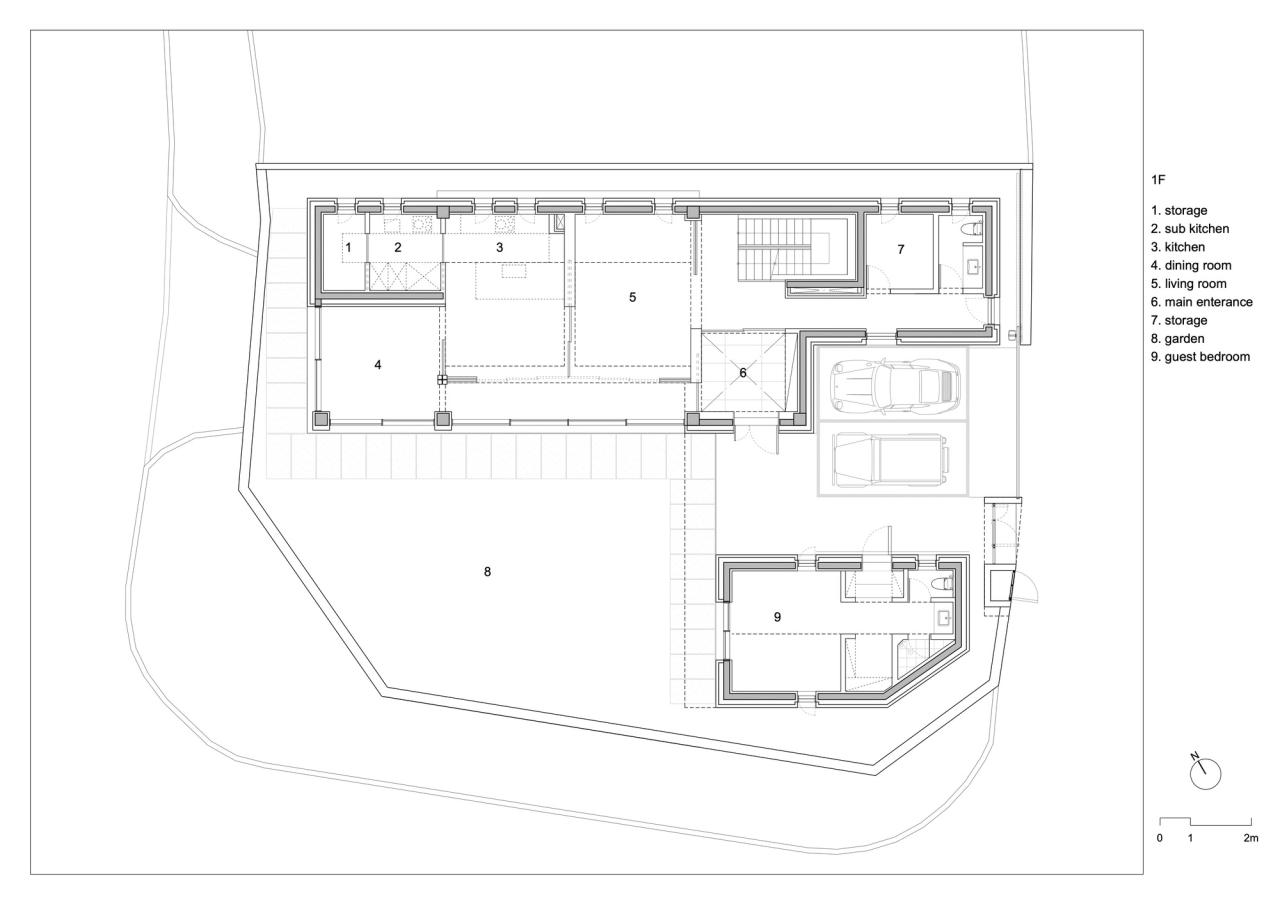
△一层平面图
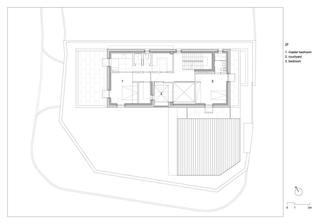
△二层平面图
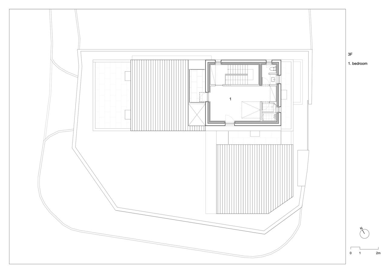
△三层平面图
△屋顶平面图
△立面图
△立面图
△立面图
△立面图
△剖面图
△剖面图
△轴测图
△轴测图
△轴测图
项目信息
建筑师:NOMAL
面积 :572m²
项目年份 :2022
摄影师 :Roh Kyung
建筑师 :Minyuk Chai, Bokki Lee, Seyeon Cho
建筑设计 :NOMAL
施工方 :Jayeon & woori
结构工程师 :The One Engineering
机械工程师 :Chung Lim Mechanical Engineering & Consultant
通信设备 :Woo Lim Electrical Emgomeering & Consultant
景观合作方 :Yeonsudang
土木工程师 :Dong In G Tech Co.
地点 :韩国,Seongnam-si

BIM建筑网














































