本观景台的设计将登上观景台的过程变成了一次丰富的视觉和身体体验。环绕场地的人行道和开放空间被自然的聚焦至观景台本身,将都市节律延续至屋顶和向不同方向延伸的开放平台,让你探索春川湖畔的另一幅面貌。
缠绕而上的楼梯与悬臂楼板提供了面向春川湖畔各个方向最优化的视角,而从观察站顶部可以获得清晰的开放视野。不同于开放平台的视角,延展而下给人以与面前的美景合二为一之感,从楼梯上的小窗和观景台内的连廊欣赏环湖的景色,会让你感到仿佛在端详博物馆里的一幅画。
覆盖观景台的曲面铝板体现了丰富的呈现和体验。穿孔铝板上的孔洞形似上千个水珠,其直径大小从 0.5 厘米至 3 厘米不等,确保了视平线高度 70 %的开孔率,使其依据视角高低呈现封闭或开放外观。这些穿孔,在内营造出光束倾斜而下的氛围,在外呈现出非物质的体量感。尤其是覆盖外立面的穿孔铝板波浪般的形状,象征了春川湖畔柔和而有力的地标的标志性形象。
向内弯曲的穿孔铝板自有结构刚度,支撑连廊楼板的固定装置得以最小化。另外,这些曲面引出了光线的丰富变化,如反射、经过和重叠,取决于观察视角。这些变化与内部厚重混凝土核心的体量感一起,在一天中的各个时刻都创造出丰富多彩的纵深感。
项目图纸
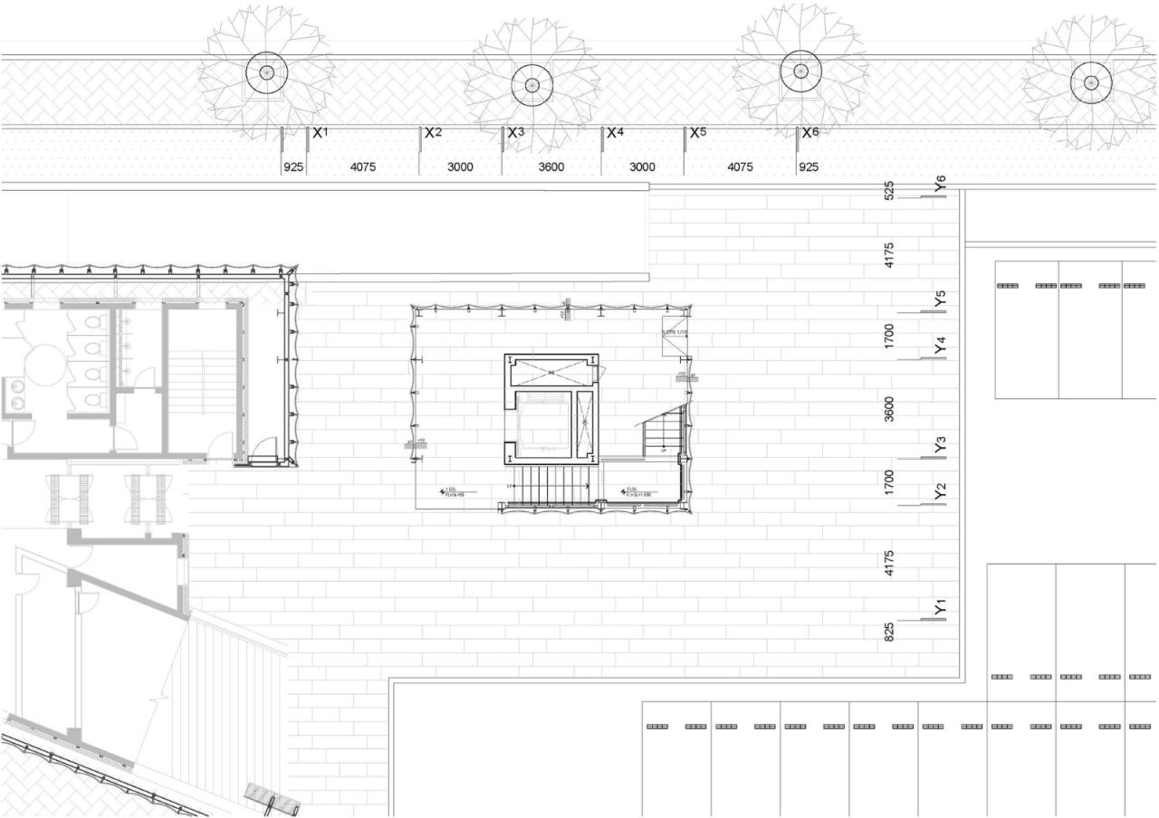
△一层平面图
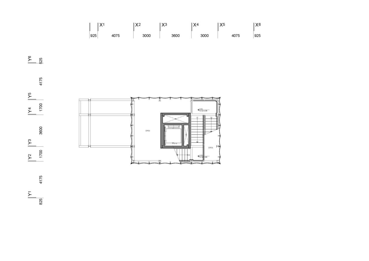
△二层平面图
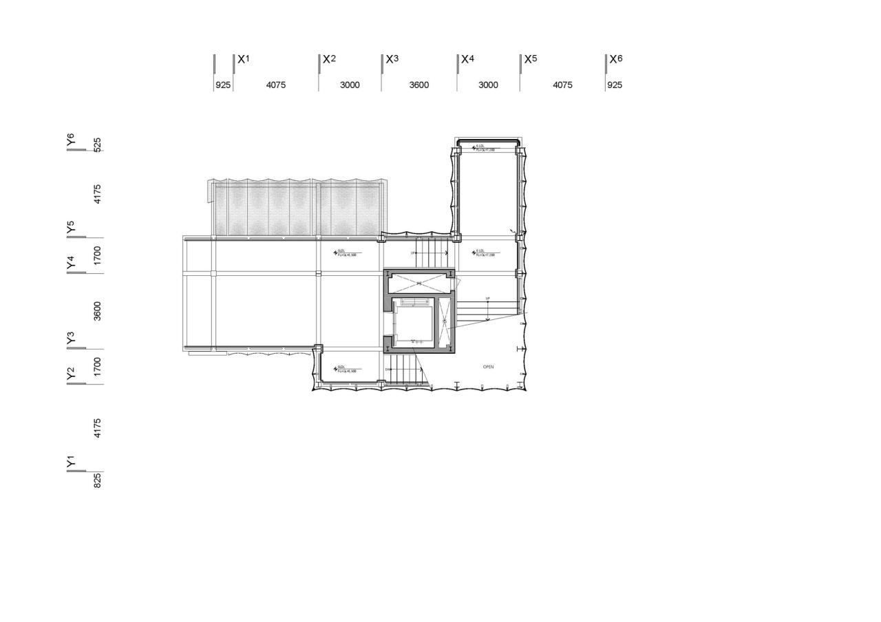
△三层平面图
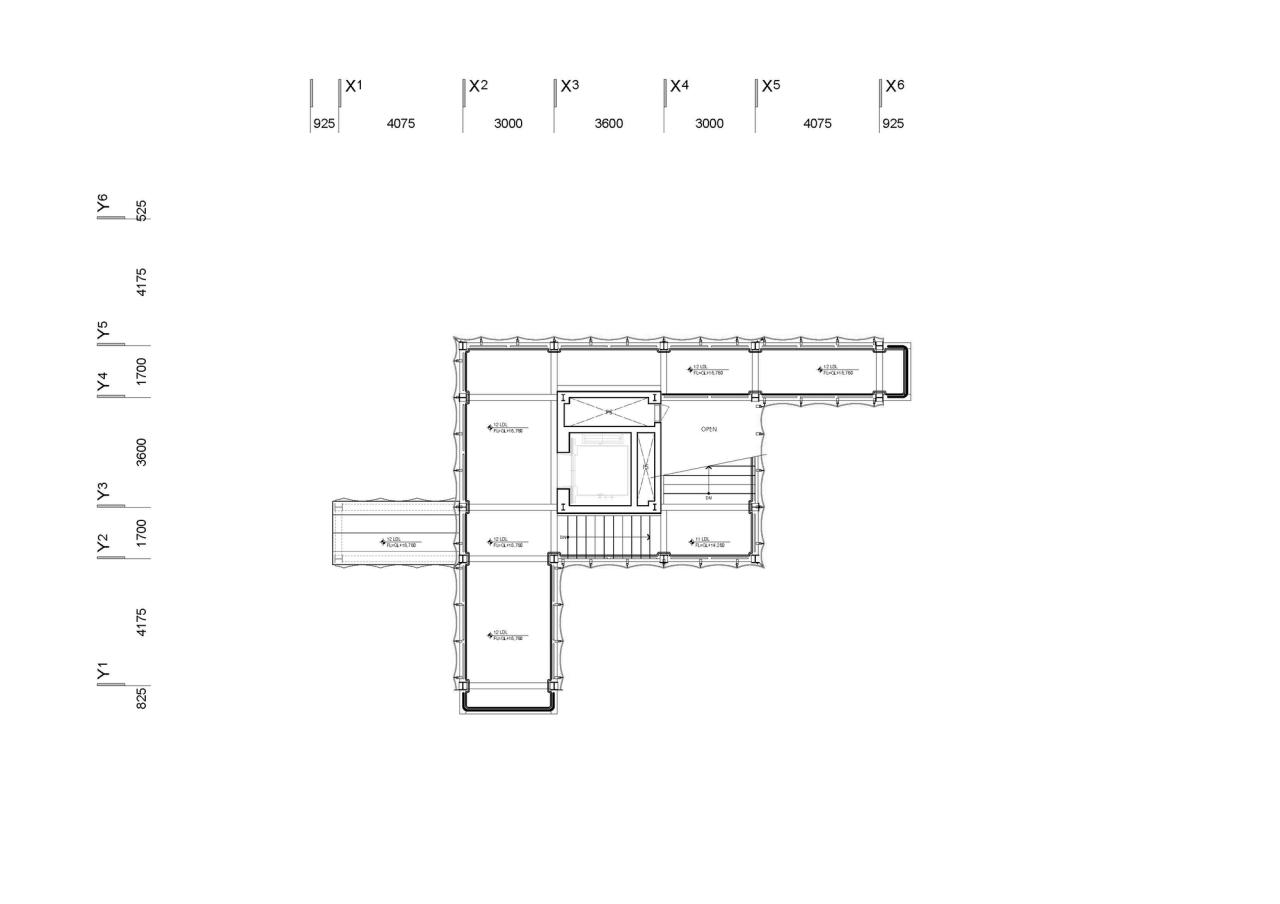
△四层平面图
△五层平面图
△屋顶平面图
△立面图
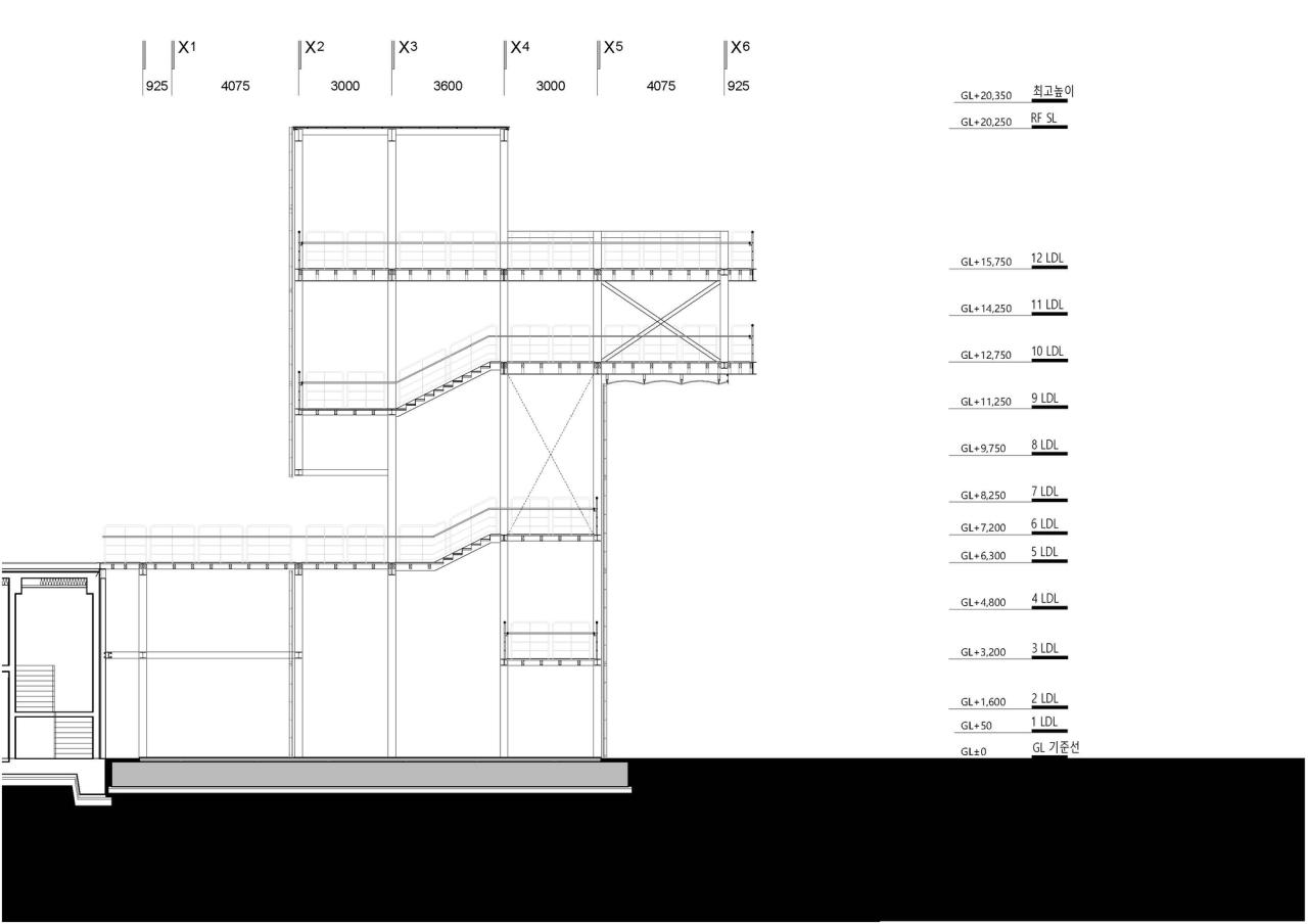
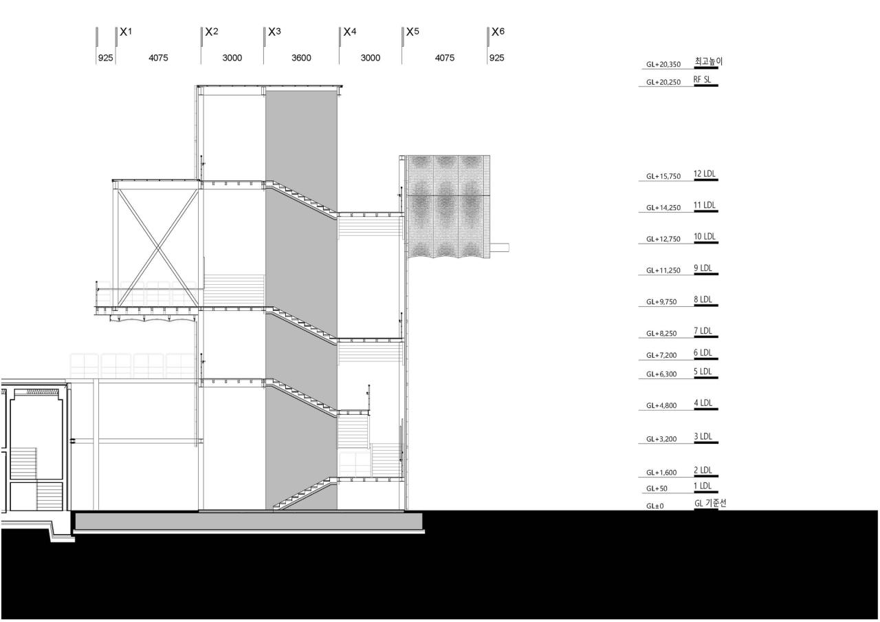
△剖面图
△剖面图
△剖面图
△剖面图
△剖面图
△局部大样图
△局部大样图
△局部结构分析图
项目信息
建筑师:Emer-sys
面积 :778m²
项目年份 :2022
摄影师 :Kyungsub Shin
主创建筑师 :Janghwan Cheon
项目建筑师 :Dongkyung Shin
设计师 :Dawon Lee
建筑设计 :Emer-sys
立面顾问 :VS-A. KR
结构工程师 :SDM
承包商 :Youngjin Construction Co. LTD
地点 :韩国,Chuncheon-si

BIM建筑网







































