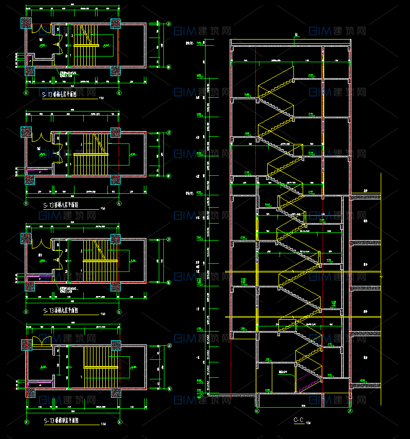
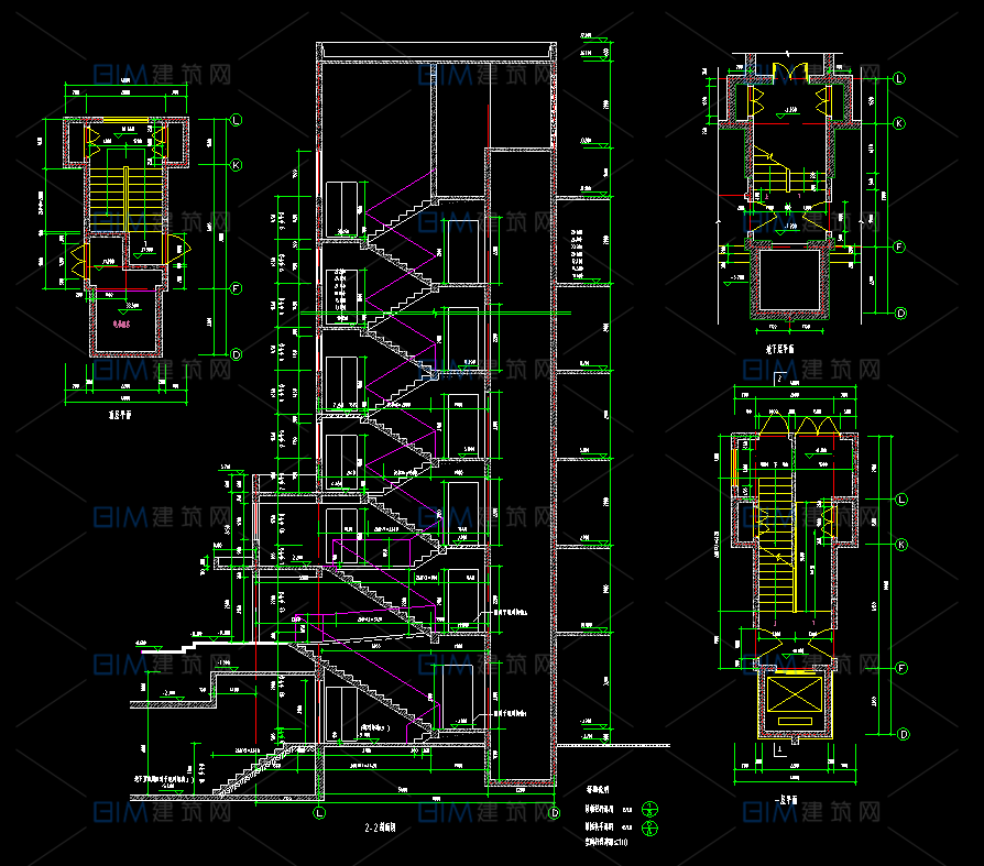
44套楼梯CAD大样图,含平面图、剖面图,用于住宅/商业/办公/幼儿园等项目,DWG格式图纸。
资料目录
内容截图
资料目录-检索版
| 名称 | 大小 |
| +02普通楼梯 | |
| 001-楼梯建筑详图.dwg | 160.0 KB |
| 002-楼梯表1.dwg | 175.0 KB |
| 003-楼梯表2.dwg | 273.0 KB |
| 004-楼梯表3.dwg | 270.0 KB |
| 005-楼梯表4.dwg | 280.0 KB |
| 006-楼梯表5.dwg | 269.0 KB |
| 007-楼梯大样1.dwg | 258.0 KB |
| 008-楼梯大样2.dwg | 264.0 KB |
| 009-楼梯大样3.dwg | 146.0 KB |
| 010-楼梯大样4.dwg | 92.9 KB |
| 011-楼梯大样5.dwg | 1.5 MB |
| 012-楼梯大样6.dwg | 3.3 MB |
| 013-楼梯大样7.dwg | 136.0 KB |
| 014-楼梯大样8.dwg | 96.2 KB |
| 015-楼梯大样9.dwg | 161.0 KB |
| 016-楼梯大样图10.dwg | 269.0 KB |
| 017-楼梯平面、剖面图.dwg | 68.8 KB |
| 018-平法标注的梁式楼梯.dwg | 100.0 KB |
| 019-幼儿园楼梯详图.dwg | 656.0 KB |
| 020-住宅楼梯详图.dwg | 237.0 KB |
| 021-楼梯详图S-T1详图.dwg | 208.0 KB |
| 022-楼梯详图S-T2.dwg | 298.0 KB |
| 023-楼梯详图S-T3.dwg | 393.0 KB |
| 024-楼梯详图S-T4.dwg | 210.0 KB |
| 025-楼梯详图S-T5.dwg | 211.0 KB |
| 026-楼梯详图S-T6.dwg | 242.0 KB |
| 027-楼梯详图S-T7.dwg | 241.0 KB |
| 028-楼梯详图S-T8.dwg | 104.0 KB |
| 029-楼梯详图1.dwg | 94.6 KB |
| 030-楼梯详图2.dwg | 198.0 KB |
| 031-楼梯详图3.dwg | 111.0 KB |
| 032-楼梯详图4.dwg | 166.0 KB |
| 033-楼梯详图5.dwg | 132.0 KB |
| 034-楼梯详图6.dwg | 199.0 KB |
| 035-楼梯详图7.dwg | 84.9 KB |
| 036-楼梯详图8.dwg | 723.0 KB |
| 037-楼梯详图9.dwg | 5.5 MB |
| 038-楼梯详图10.dwg | 107.0 KB |
| 039-楼梯详图11.dwg | 148.0 KB |
| 040-楼梯详图12.dwg | 127.0 KB |
| 041-楼梯详图13.dwg | 701.0 KB |
| 042-楼梯详图14.dwg | 274.0 KB |
| 043-楼梯详图15.dwg | 195.0 KB |
| 044-剪刀梯详图.dwg | 666.0 KB |

BIM建筑网






