△东北角鸟瞰图 ©章鱼见筑
基地概述
肥东县大剧院文化馆,位于合肥市肥东县政务文化中心区,是东部新城主轴线上重要城市空间节点。政务文化中心区以打造具有区域影响力的商务办公及高端服务综合中心为目标,重点建设有肥东县2016年“十大工程”中的四项重要工程——“三馆一中心”工程,包括大剧院、政务服务中心、规划博物馆以及图书档案方志馆。
△效果图展示
△效果图展示
区位环境
肥东县大剧院文化馆位于东部新城的公共核心区以及景观核心区,瑶岗路南侧、深秀路西侧。北侧与和睦湖隔路相望,向北延伸为县政务办公中心区,形成由肥东县政务服务中心、规划博物馆以及高铁肥东站组成的城市主发展轴线;基地西侧衔接肥东县图书档案方志馆,与肥东一中共同构成城市文化轴;成为新城发展轴线上联动其他城市功能的重要交汇点。在东部新城形象“展示厅”如此关键的区位上,体现城市地域文化的独特性和满足居民对于两馆的功能需求是本项目的设计重点。
△从大剧院文化馆望向和睦湖 ©章鱼见筑
设计理念
肥东作为历史文化名城,拥有丰富的历史资源。项目立足新城的文化交汇点,注重将中华文化与时代精神相融合,通过现代抽象简洁的设计语言,打造极具特色的文化建筑,弘扬兼容并蓄的中华文化,展现传统与现代的冲突与和谐并存。
中华音乐文化——六乐之首 云门大卷
项目设计取意“云门大卷”,“云门大卷”产生于黄帝时期,是古代最早的礼仪性乐舞,被誉为礼仪性乐舞六乐之首。寄情创制万物、团聚万民、盛德如云,具有祥云福佑之意。
△匡晓明主创设计师手绘稿
△形体生成
△正立面模型图
立面造型灵感来自云门大卷,整体造型为方形,融合了“云”之形,“门”之字,演绎 “云门”之韵,框型的实体部分构成立面主体骨架。立面细部构造取舞台大幕之势,为弧线形卷入的灰空间,形同大幕徐徐展开,共同构成 “云门大卷”的立面形态。
△立面细节 ©章鱼见筑
中华古器文化——中华古器排箫+琮+陶埙
建筑立面细部空间也取意于出土的古乐器,竖向序列立面造型与古代管乐器石排箫异体同构,而作为建筑第五立面的屋顶造型则仿似古乐器陶埙的陈列展开。
△元素演绎
△现代简约的设计手法体现中华古器文化 ©章鱼见筑
建筑立面为竖向的圆形杆件均布,形成阵列之势,并采用“排箫”的造型,形成立面优美流畅的弧线形象。建筑立面以玻璃幕墙为主,后掩映着虚实结合的室内空间,使整个建筑晶莹剔透。通过玻璃幕墙的设计及网纹印刷玻璃及最新参数化技术的运用突出简洁优美的现代文化气息。
△竖向的圆形杆件立面 ©章鱼见筑
功能布局
群组布局 协同关联
项目空间布局上,延续了“云门大卷”的文化符号,即乐舞中心环绕的布局模式。在中心式围合布局、群组围绕展开的基础上,结合具体功能的使用需求,形成中心汇聚、群组围合的建筑平面形态。项目以中部挑高的公共活动空间为共享中心,东西两侧分别布局大剧院和文化馆,有效地实现了功能协同且相对独立的空间形态。
△项目模型
立面的弧形空间结合大台阶,形成了标志性的入口空间,立面每个弧形空间均与室内空间相对应,达到室内外空间的流畅统一。
△立面近景©章鱼见筑
中部入口对应处的室内为三层挑高的公共活动空间,南北入口相互对应,形成通透开敞的效果。中部公共空间不仅将建筑分为东西两大功能群组,更是作为公共空间轴向外延伸,与和睦湖滨水广场进行内外呼应,保证了文化建筑的公共开放性。在功能设置上,中部作为共享平台,设有售票厅、艺术展厅以及交通核,为观众提供一个交流互动的平台,同时方便上下到达东西两侧功能区。
△共享中庭中刻画成巨型排箫和管风琴形式的墙面 ©章鱼见筑
大剧院和文化馆为矩形南北向布局,通过中央共享中庭联系起来,建筑设计上达到整体统一、功能复合、相对独立的效果。在室内设计上与建筑进行呼应延续,提取乐器与舞蹈元素并进行有效融合,呈现出高端典雅的艺术空间。
△轴侧爆炸图
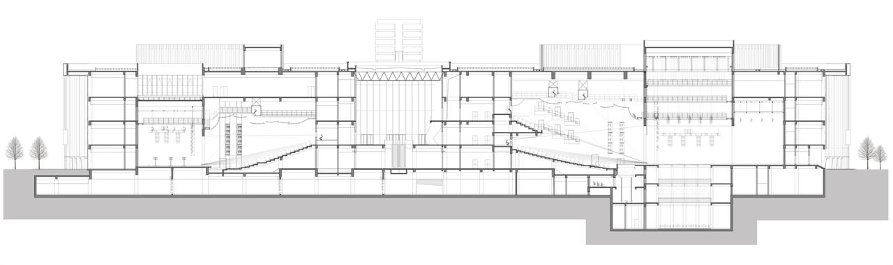
大剧院位于建筑西侧,以1200座大剧院为主体,能满足演出歌舞剧、音乐会、大型综艺节目和大型会议以及驻场配套等功能。剧院区为地上4层、地下1层。大剧院地下一层为剧院配套辅助功能区,设有商业区和戏剧场的台仓区和后勤区。大剧院的主要入口层位于二层,可通过南北两侧大台阶进入中部大厅,由公共楼梯达到三层音乐厅。
△多功能厅 ©章鱼见筑
文化馆位于建筑东侧,一层设有650座的多功能厅和2个小多功能厅。二层设置4个文化展厅,三四层为会议办公及活动中心。文化馆的主要入口也位于二层共享大厅,观众可通过中央扶梯前往一层观赏艺术展览,亦可直接到达三、四层进入电影院和文化展厅。
项目图纸
△一层平面图
△二层平面图
△立面图
△剖面图
项目信息
项目名称:肥东县大剧院文化馆
设计单位:上海华都建筑规划设计有限公司
基地面积:39381㎡
建筑面积:47543.35㎡
总设计师:匡晓明
方案设计团队:沈毅、张海翱、姚奇炜、朱婷婷、李洪喜、李纪鸿,吴昊,黄安琪
结构设计团队:周振、张永强、汪国勋、蒲译文、薛浩
给排水设计团队:蒋毅、吴文雯、王一焜
电气设计团队:任福胜、季孝敏、张弋、肖岩、陈羽
暖通设计团队:程岭松、柴昀梁、董云峰
景观设计团队:朱弋宇、符骁、王丹丹、杨刚,费屹东,于家涛
室内设计团队:葛卿、艾静雯、刘海涛
项目位置:安徽省合肥市肥东县,东临撮东路,西至深秀路,南临渡江路,北接瑶岗路
建成时间:2021年
摄影师:章勇(章鱼见筑 ZY Architectural Photography)

BIM建筑网























