建筑师设计了一个俯瞰日本鸟取沙丘的观景台/咖啡厅,在交叉层压木和钢筋混凝土的混合结构中使用了大量木材。
项目的交叉层压木材外观被设想为“通向天空的阶梯”,提供了温暖的质感,并与周围的沙丘融为一体。
建筑师为了向以民间工艺(“民艺”)文化而闻名的鸟取市表以敬意,在室内元素中融入了当地工艺。椅子的设计采用了交叉层压木材,而吊灯则由洒有当地沙子的和纸制成。
浴室水槽由鸟取民艺陶艺作坊中井窑(Nakai-gama)制作,采用了美丽的绿色和黑色玻璃的组合。
项目图纸
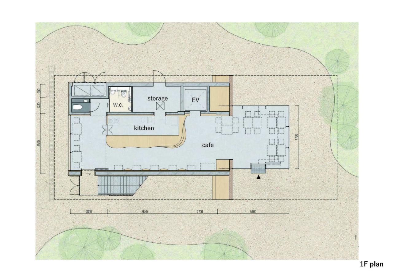
△一层平面图
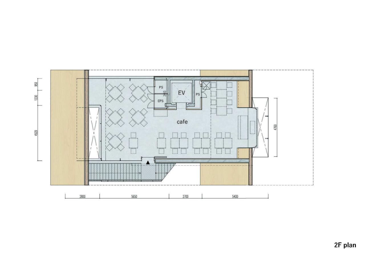
△二层平面图
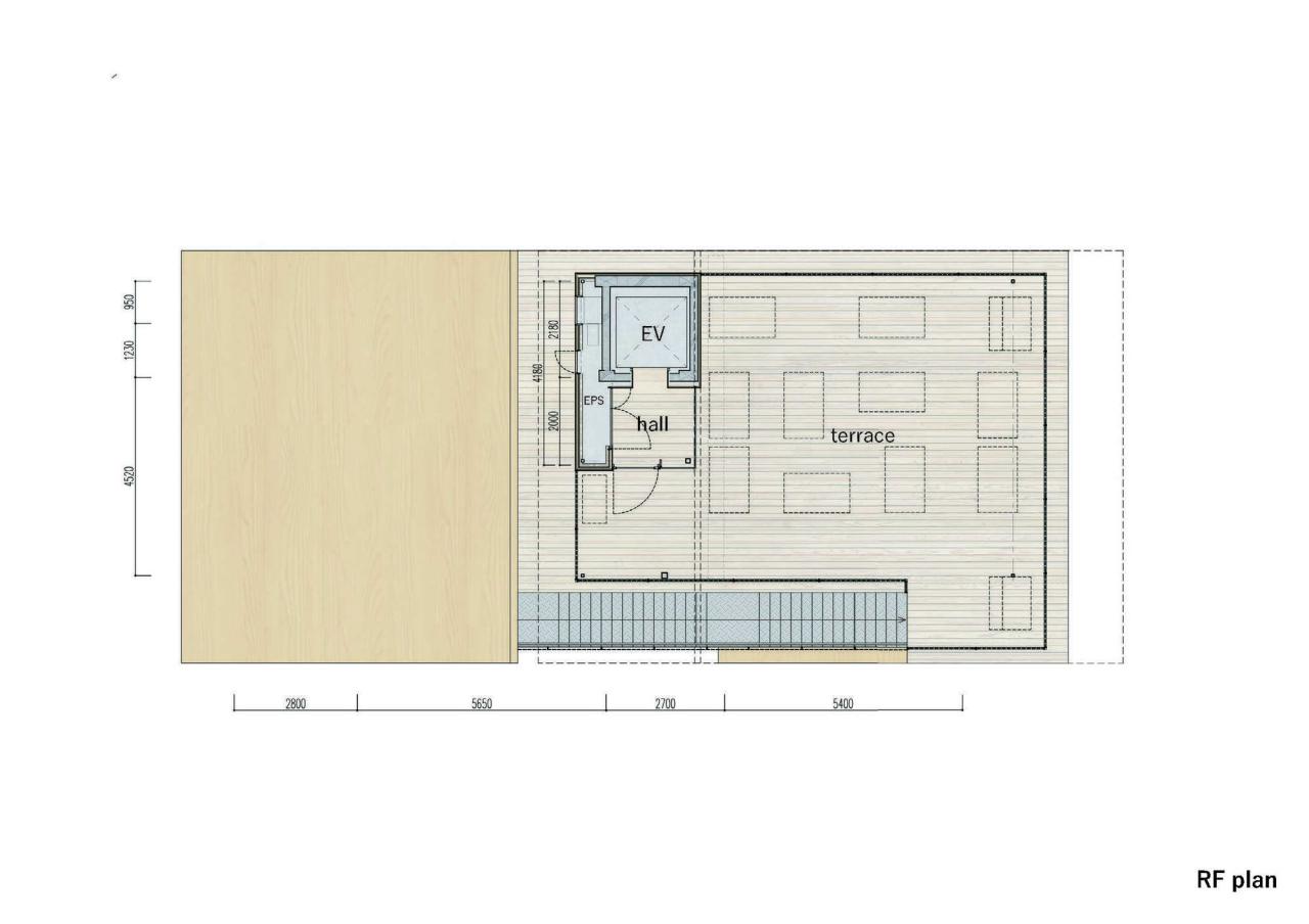
△屋顶平面图
△剖面图
△分析图
项目信息
建筑师:隈研吾建筑都市设计事务所
面积 :199m²
项目年份 :2022
摄影师 :Kawasumi-Kobayashi Kenji Photograph Office
设计团队 :Minoru Yokoo, Taichi Kuma, Hirono Yamamoto, Yoo Shiho
其他项目合作 :Daiwa Kensetsu
建筑师 :隈研吾建筑都市设计事务所
项目施工 :大成建设株式会社
照明设计 :大光电机株式会社
地点:日本,鸟取
微信公众号:xuebim
关注建筑行业BIM发展、研究建筑新技术,汇集建筑前沿信息!
← 微信扫一扫,关注我们+

BIM建筑网

















