此项目为旧建筑改造,基地位于济南大明湖南岸,建筑置身于略显老旧的传统街区,北侧面对明艳开阔的大明湖面。
建筑改造前曾先后作为鲁信文化集团的办公楼和净雅大饭店,而新的建筑将作为艺术文化空间向城市开放,身兼美术馆、剧场、艺术书店、文创体验、艺术教育和特色餐饮等多重职能。全新的多功能复合型艺术空间不仅重新聚合了大明湖的自然景观与湖畔的历史人文街区,同时其简洁鲜明的建筑个性也将激活这片老城区,给这座历史丰厚的城市注入新的活力。
委托方希望建筑能够以新的气象和更为开放的姿态成为济南新文化生活的引领者,成为城市文化和艺术的聚集地。为了建筑新的目标,也为了给这个灰色基底的老城区带来新的色彩,设计从原建筑最基本的条件开始切入。
建筑原结构为均质的钢筋混凝土框架结构,楼板采用预应力系统。各楼层之间除了楼梯间的连通外,几乎没有任何联系。呆滞的空间加上原本不够充足的层高,共同限制了新建筑作为艺术空间所应有的开放与自由。于是我们将旧建筑的原有条件同新的功能需求重新梳理整合,希望寻求一个由内而外的思路,从根本上实现内部空间的自由和应有的变化,进而影响到外立面,并和北侧开阔的大明湖景色建立联系。
我们将一些不适合开放的功能分离出来,形成了一个个相对独立封闭的空间“盒体”,利用这些“盒体”,消隐掉行列均质的结构柱,打破楼层水平向的限制,在六层高的空间框架内自由堆叠、交错、挤压。
这些“盒体”之间留出的空白即成为了公共和开放的场所,塑造出一个穿越楼层的、流动的、自由生长的无柱公共空间,各层公共空间在上下层连通的位置垂直生长,而具有水平交通功能的走廊空间也被融入其中,相互联结成一体。原有的结构框架和楼层板得以从视觉中得到解放和消隐。
这些内核的变化直接显现在建筑的立面和外形上。“盒体”之间的空白,作为开放的公共空间将北侧的大明湖风景和南侧的阳光最大限度地纳入建筑内部;“盒体”的挤压使建筑产生了更具穿透性的内部空间,由内而外,更加强化了外部开口处景观的通透感。
建筑各部分功能属性的界定并非垂直割裂的,人的使用边界也不应被楼板生硬地切分开,正因如此,在内空间的营造上,将原结构中被净雅饭店拆改过的楼板做部分拆除,尽可能不给原始结构带来二次伤害,更重要的是借此机会打通楼层之间的联系,建立公共部分新的空间高度,使之不受限于原有的层高。
建筑以美术馆、剧场、艺术书店、文创体验和艺术教育组合成不同属性与氛围的艺术空间,与之相关的信尚书店、信尚美术馆及中央美术学院大众美育功能等都依托于这些开放的场所,艺术与商业交融在一起,没有明确的物理界限。美术馆、书店和文创体验通过上下层开口处的公共楼梯贯穿多个楼层,使艺术空间得到最大程度的共享。
在新建立的跨层公共空间中,增加了完全开放的交通系统,旋转楼梯如雕塑般垂直延伸,连接不同高度的平台。设计保留了垂直电梯的便利性,而新增的开放的交通在空间中不断转换位置,在漫游中穿越不同的功能,增强了建筑的体验感,使各个楼层与地面建立了联系。
为了使这些被堆叠的“盒体”空间成为一个整体,我们在建筑体的外表面包裹了一层铝板,同时,铝板被设计成有着不同通透率的冲孔铝板,这样不仅呼应了不同的内部空间,也使得被包裹的“盒体”空间可以被街道上的行人所感知。被折叠成瓦楞状的铝板,自身可以产生足够的应力,背后不必产生多余的结构。
通过铝板冲孔而形成的独立空间的窗,和公共空间的空白共同叠加在立面上,形成了错落有致、大小不同的图层印记,公共部分也更凸显出了开放性,就此,崭新的立面形成了。
夜晚时分,内部灯光从表面的孔洞和开口中透射出来,将整个建筑渲染成一盏温润的明灯。内部空间因错动和连续变得既独立又混合,形成了一个立体丰富且又开放自在的艺术生活体验中心。
原有放置在屋面的设备被移走,改造成了带遮阳的半户外餐饮活动场地,这里可以一览大明湖的全景,尽情享受济南历史名城的美丽风景。
(注:设计中内部垂直空间和开放的旋转楼梯因为特殊原因将作为二次施工中实施,本次施工中已完成了结构加固和条件的预留。)
项目图纸
△基地示意图
△一层平面图
△二层平面图
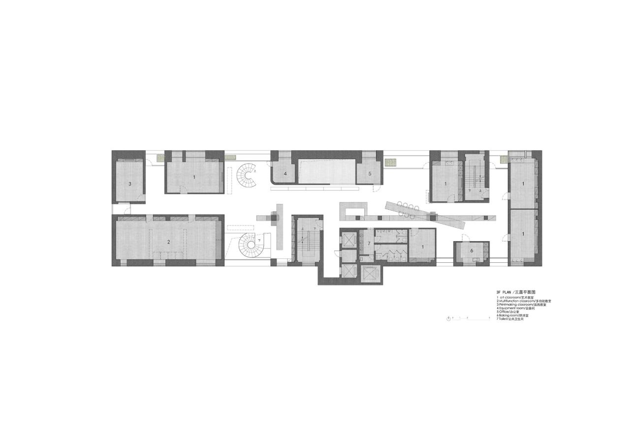
△三层平面图
△四层平面图
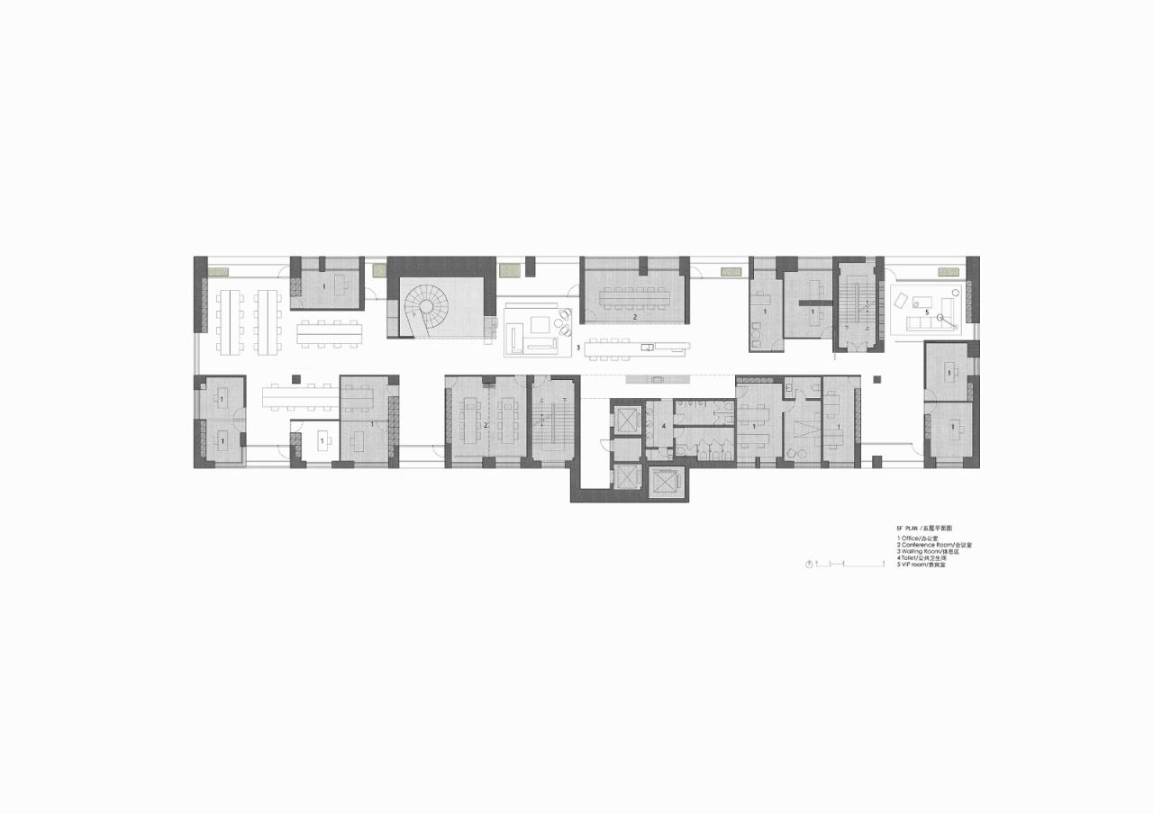
△五层平面图
△六层平面图
△功能分区示意图
△功能分区示意图
△立面图
△立面图
△剖面图
△分析图
△分析图
△分析图
△分析图
△分析图
△剖面图
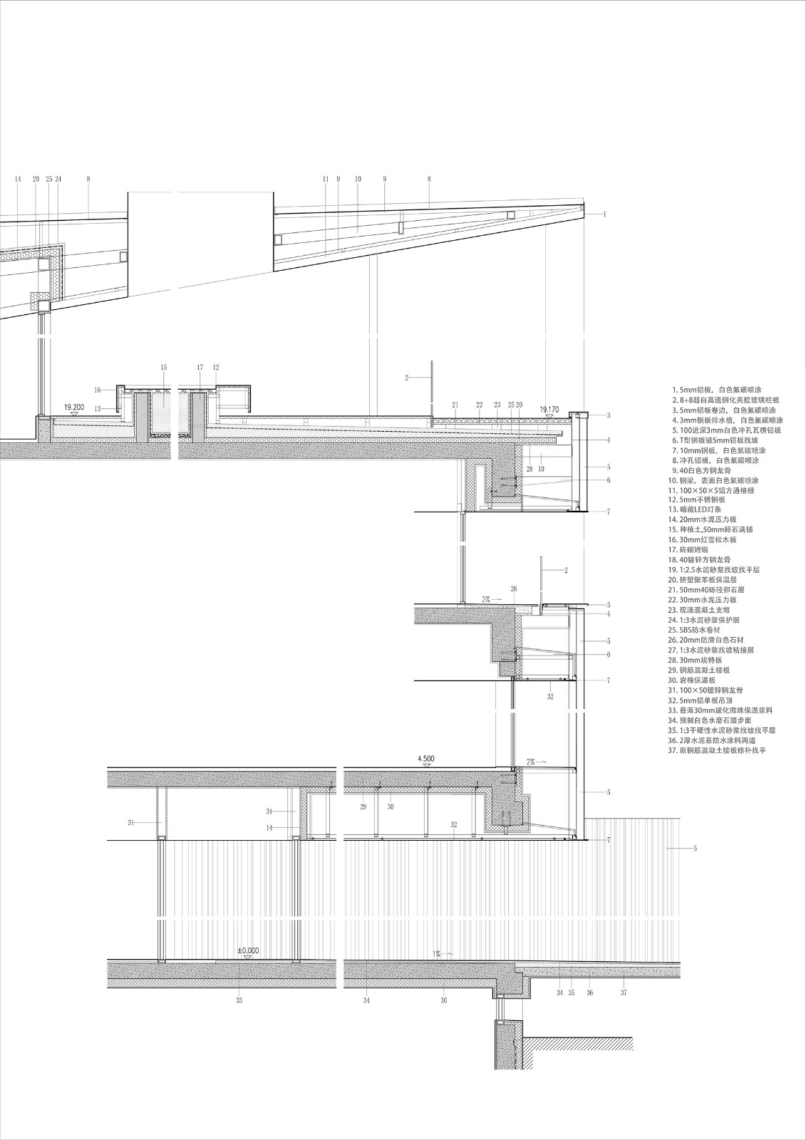
△细部大样图
项目信息
项目名称:明湖100艺术文化中心 (中央美术学院┃山东艺术教育中心)
项目类型:建筑+室内+景观
项目地点:山东济南明湖路100号
设计单位:TAOA陶磊建筑
主创建筑师:陶磊
设计团队完整名单: 陶磊、陈真、周余牧零、段振强、李根、徐莉莉、石彤、孙朗、戴韵怡、黎继明
实习生:孟祥瑞、刘子莘、满人方
业主:山东文旅集团
建成状态:建成(室内挑空区待二次精装施工)
设计时间:2017-2019
建设时间:2019-2022
建筑面积:5805.85平方米
建筑施工图配合:中国建筑技术集团有限公司
室内设计:TAOA陶磊建筑
景观设计:TAOA陶磊建筑
照明顾问:骥景照明
摄影:陶磊

BIM建筑网

















































