这是一座基于“培养想象力和乡情”的理念、为 135 个孩子新建的幼儿园。在过去,委托人的寺庙与当地人很亲密,孩子也更受他们照顾。寺庙不仅可以祈祷,还可以用于逛街、散步、观赏帐篷下的表演,成为邻里之间聚会和享受美好时光的地方。孩子们也在那里玩耍,与当地人进行良好的交流,培养他们对家乡的热爱。但时过境迁,这种良好的关系逐渐淡化。
正如英语中“Manabu”一词的意思是“学习”,而“Maneru”的意思是“模仿”,儿童通过模仿成年人在日常生活中的行为来学习和成长。见到长辈,学习如何玩耍和控制自己的身体;见到父母,学习礼仪;见到当地人,学习文化。 这就是儿童发展其社交技能的方式。
在这个项目中,操场沿着寺庙入口前方规划,这样孩子们可以有更多的交流以培养他们的沟通能力。面向寺庙的房间设有大型窗户,孩子们可以通过看到当地人如何做礼拜和迎接游客。
此外,二楼的幼儿房与三楼的婴儿室通过攀爬网连接,增加了不同年龄段之间的交流。 晚辈在仰慕长辈的过程中成长,同时长辈通过照顾晚辈而意识自己是大人。
铜粉被用作装饰材料和标志,展示了日本传统风格和寺庙的精髓。这种随时间老化的材料能让孩子们感到好奇并激发他们的好奇心。此外,大型百叶窗可让孩子们有机会感受自然界的变化,如雨、阳光、阴影和风,从而培养他们丰富的思维方式。 通过这些方式,这个幼儿园是他们在享受季节和时间变化的同时培养丰富思维方式的学习场所。
项目图纸
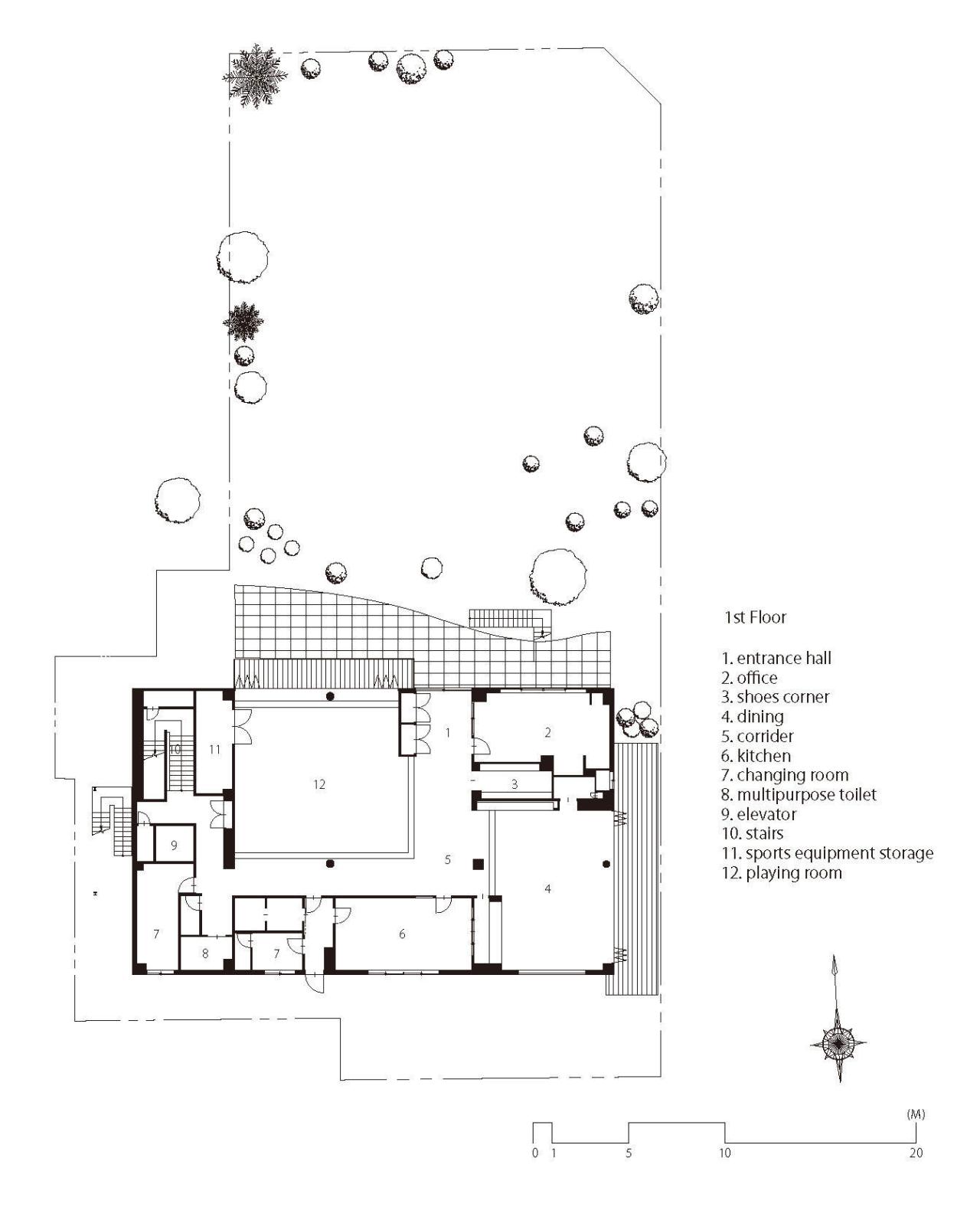
△一层平面图
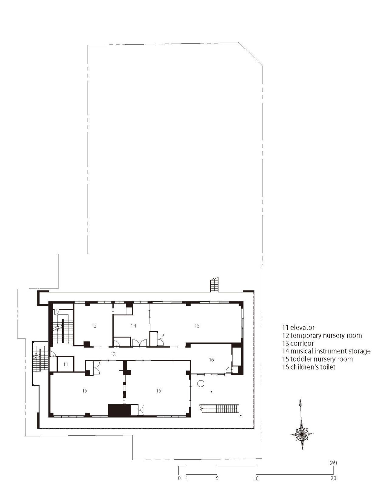
△二层平面图
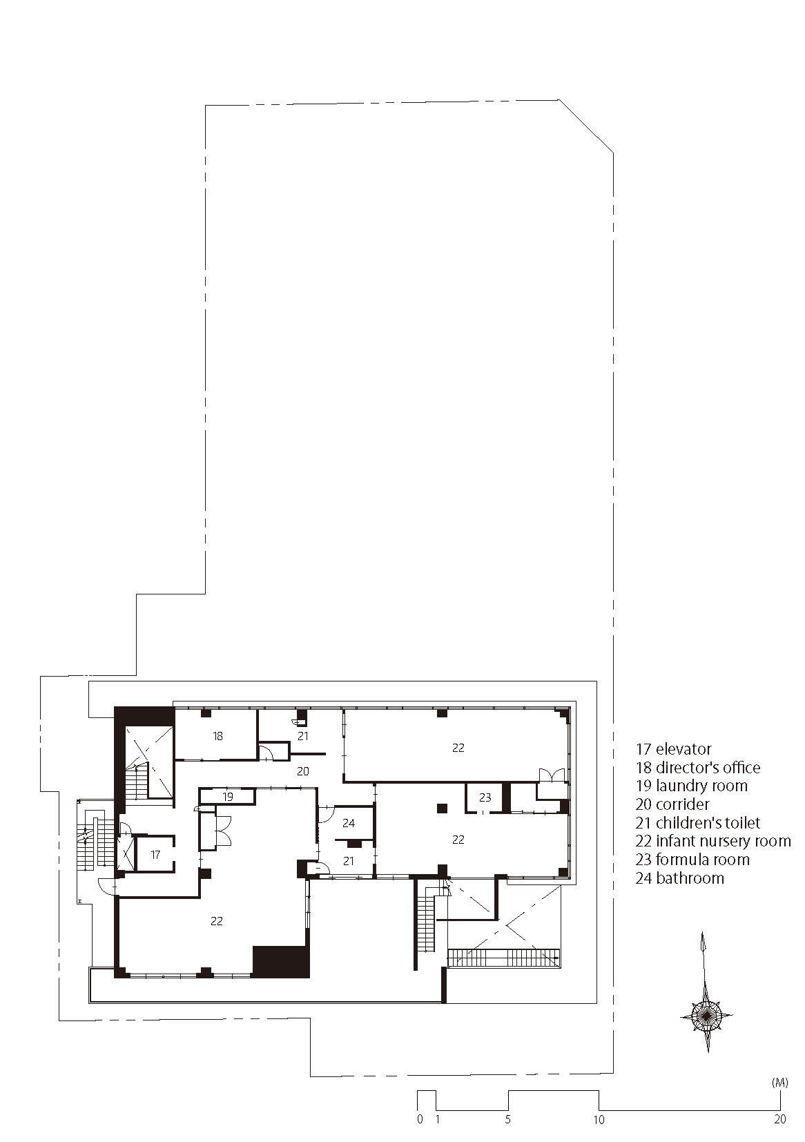
△三层平面图
△立面图
△剖面图
△剖面图
项目信息
建筑师:日比野设计,Kids Design Labo,幼児の城
面积 :1052m²
项目年份 :2020
摄影师 :Studio Bauhaus
建筑设计 :日比野設計, Youji no Shiro, KIDS DESIGN LABO
地点 :日本,Okayama

BIM建筑网























