中华中学雨花校区建设属于南京五大名校外迁项目,位于南京市雨花台区中部,总用地面积约12.15公顷,总建筑面积103326.73平方米。8月30日,中华中学雨花校区启动仪式隆重举行,标志着象征着未来教育新模式的“STREAM学习中心”正式投入使用,为未来发展理论与实践结合、跨学科交融的新型教学模式打下的物质平台。
为了缝合被城市道路分开的东西两个校区,提高师生效率,该设计用南北两道天桥将学习中心、体育馆、食堂和大礼堂串联形成一个“知识之环”,从而学校中使用率最高的重要建筑被紧密地串联在了一个二层环路上。围合的环路构成“中央公园”:东西两个校区的入口广场相对,拼合成校园最核心的开放空间。东西向的礼仪轴两端分别树立行政楼和钟塔,作为轴线的收束点。设计充分利用场地高差,减少土方外运量的同时,营造立体化的绿性态校园景观。
校园东西两个片区动静分离,东区主要为生活区,西区主要为学习区。东区:国际部教学楼位于东校区的西北角,包含18个国际班级教室。与其南北相对的,为一间可容纳1500人集会的大礼堂。宿舍区采用庭院式布局,可容纳一千七百多名学生住宿。
西区:教学楼位于西校区的西北角,按照年级分为三栋平行排布于一侧,每栋容纳20间普通教室。三栋楼以共享长廊相连,教师办公室靠长廊设置在各层,方便师生平时交流。行政楼位于西区中轴线,与塔楼遥相呼应,统领学校。其外立面采用干挂灰砖幕墙,呼应了老校区建筑风格。食堂体育馆,其建筑体量一二层为食堂,可容纳约两千名师生同时就餐,三层为风雨操场、艺术训练馆,馆内置入跑道,开设天窗满足室内采光需求。亮点:STREAM学习中心作为校园的“核心精神堡垒”,位于西区主入口。
学生的教育应该是多方面协同的,建筑师从教育的社会性出发,构思出“STREAM学习中心”的新型教学组团模式,响应了2016年教育部出台的《教育信息化"十三五”规划》,得到了校方的高度认可。STREAM的教学方式在传统STEM基础上,融入了学生阅览和艺术学习的功能,不仅培养学生的科学(Science),技术(Technology),工程(Engineering),数学(Mathematics)素养,也注重培养学生的艺术(Art),阅读(Reading)素养,学科在相互的碰撞中,才能实现深层次的学习、理解性学习。
STREAM中心采用了“综合体”形式,将所有的专业性教育用房集中起来。专业教室紧凑地排布于四周,而围绕中庭则设置学生自习的开放空间,形成内部丰富的路径选择,为学生的课间休息与交流提供了多样化的选择,解决走班制排课带来的学生“空白一小时”无处可去的问题。
屋顶的天窗提供了天光,使得视线的联系和光线的串联成为一种时空的魔法,获得流线上某种探知的欲望。天窗之下是一部从一层连接到二层扩展平台及阅览室的公共台阶以及三四层平面的天桥,宽窄收缩变化的台阶成为学生课间阅读、交流及STEAM成果的展陈与演出空间。如此,各种的功能房间通过中庭、连廊和多重平台拓展了房间的维度,组织成垂直的立体活动空间,给学生交流和研学活动提供了一个复合的多元化场所。
在STREAM学习中心的外部,通过功能房间的挑出以及旋转,形成活泼的外部界面以及供学生们交流活动的连廊、平台、灰空间等,其与外部环境的相互对话,成为学生课间活动的室外场所,方便其课间的场所转换。建筑师以“SRTEAM 学习中心”的机制,通过内外功能空间的柔性过渡,实现学科交叉教育以及预期交往行为触发等非正式学习,探索“SRTEAM”教育模式下教学功能的组合以及触发学生交流行为的多元复合空间模式。
项目图纸
△项目效果图
△项目模型图
△手绘轴测图
△总平面图
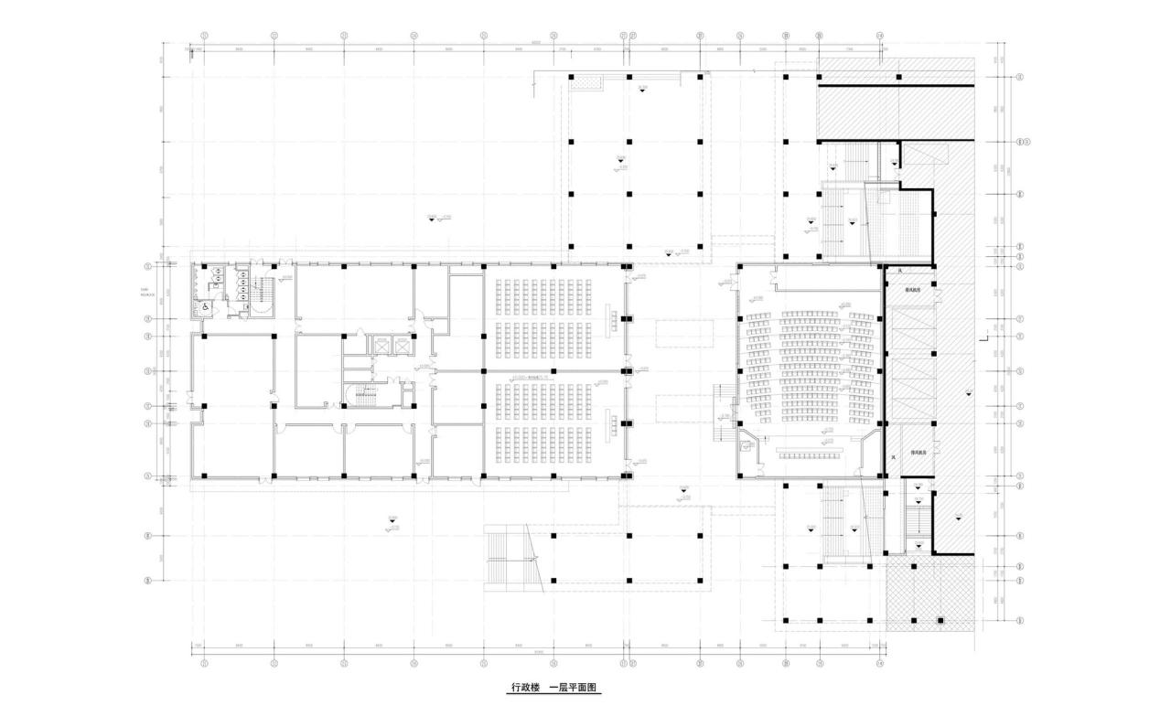
△行政楼一层平面图
△STREAM中心 一层平面图
△STREAM中心二层平面图
△STREAM中心三层平面图
△STREAM中心四层平面图
△STREAM 中心南立面图
△教学楼一层平面图
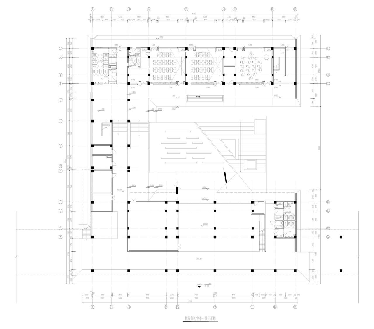
△国际部教学楼一层平面图
△报告厅一层平面图
△食堂体育馆二层平面图
△宿舍楼一层平面图
△剖面图
△爆炸图
△剖透视
项目信息
建筑师:东南大学建筑设计研究院
面积 :103327m²
项目年份 :2022
摄影师 :侯博文,Jian Yao
厂家 : 南京纳格铝业有限公司,宜兴市鼎诚陶瓷有限公司,普丽,江苏迈腾铝业有限公司
主创建筑师 :马进
设计团队 :马进,张珂,韩笑,翟诗洋,刘万松,范钦锋,刘影竹,简海睿,金昊吉,刘映曈,许嘉航
施工图设计 :东南大学建筑设计研究院有限公司三院
委托方 :南京雨花新城发展有限公司
地点 :南京

BIM建筑网




















































