瓦南布尔图书馆和学习中心(WarrnamboolLibrary and Learning Centre)取代了原有的地方图书馆,在瓦南布尔中央商务区(CDB)的中心——西南技术与继续教育学院(TAFE)校区建立了一个更大、更明亮、更便利的空间,为当地社区和西南 TAFE 学生和员工提供设施。该空间包括一个现代化的室内外咖啡厅,公共电脑、展览和展示区,学习和阅读场所,会议室,专门的儿童区以及游戏和数字媒体区。该项目由维多利亚州政府、西南 TAFE 和瓦南布尔市议会共同合作,携手实现了将教育、社区和艺术结合一起的愿景。
在咨询了广泛的公众意见后,该项目概念框架主要为三点:• 愉悦——自然光、与室外的联系、不同的光照水平、光作为衡量时间流逝的一种方式。• 历史、遗产与叙事——确保设计反映当地历史、遗产,以支持打造引人注目的设计叙事。• 第三空间——为思想交流、娱乐以及创造和建立关系创造空间。
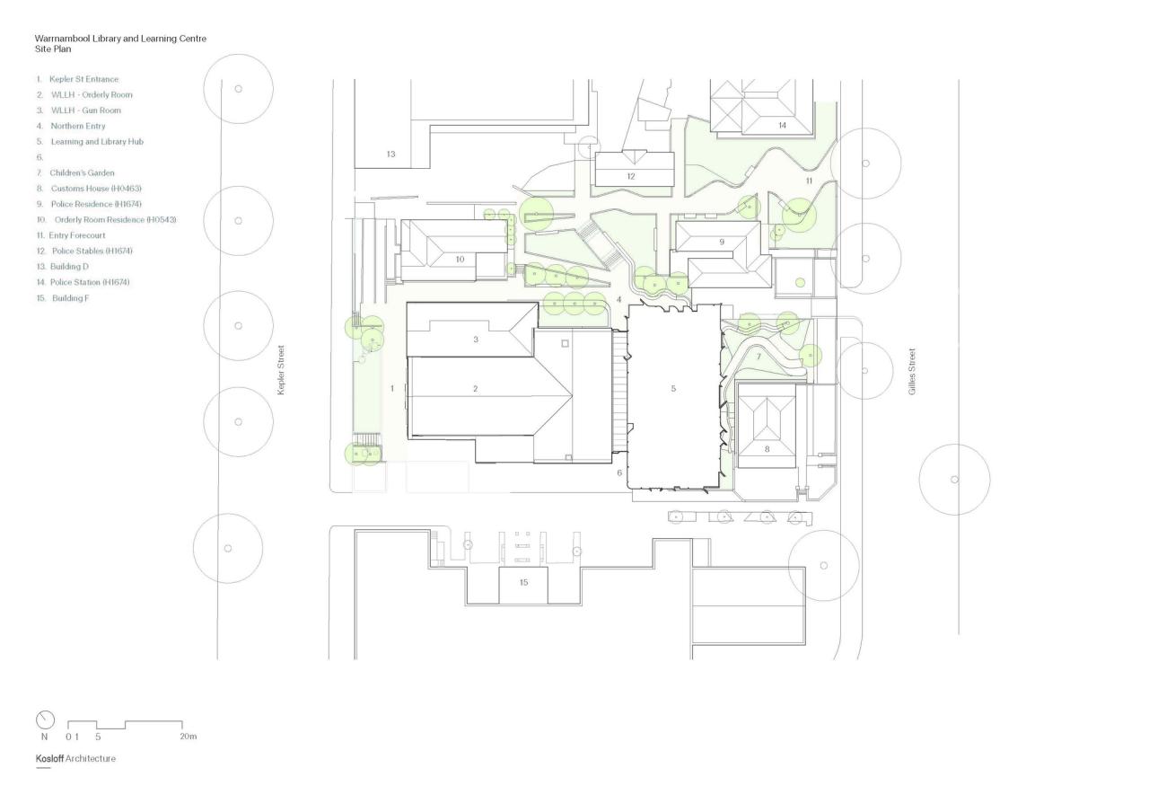
该项目包括一栋新的 3 层现代建筑,通过全玻璃通道与建于 1868 年、列入遗产名录、翻新后的单层兵营文书室(Orderly Room )相连,这是现场九座具有历史遗产意义的建筑之一。
该通道作为一条巷道将穿过校园的行人聚集,并明确地将列入遗产名录的建筑与新建筑区分开来。
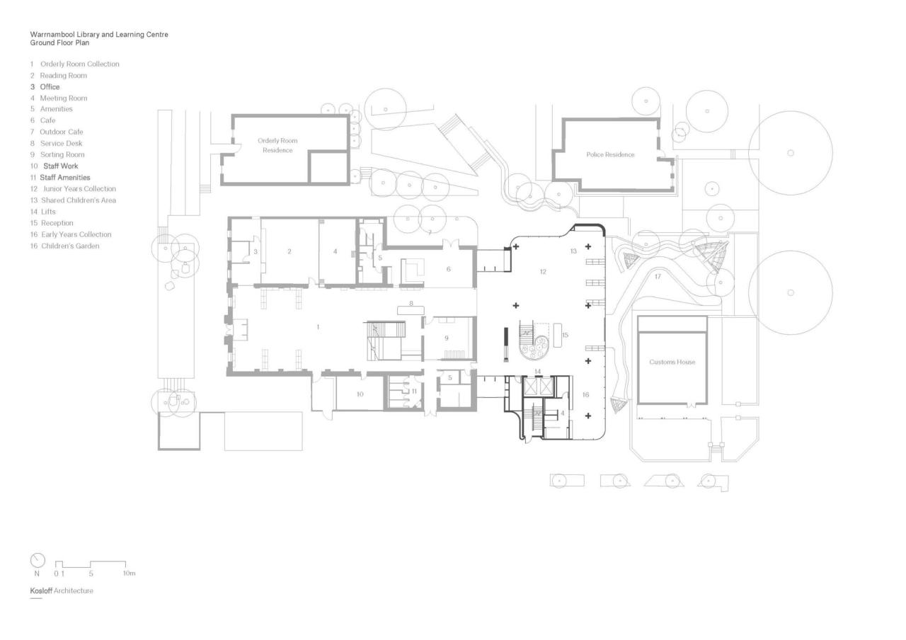
另一个将新旧特征结合起来的关键是一座“桥”,它在一楼创造了额外的连接,那里是兵营文书室原始的所在位置。这座桥拥有足够的空间用于座位或表演,同时也提供了贯穿两座建筑的视野景观。
现代建筑的弧形立面隐喻着瓦南布尔与海洋的美景,锤褶形的预制混凝土则定义了当代上层的建筑语言,并为相邻的历史海关大楼(Customs House)提供了和谐的背景。这些生动的形式使立面从玻璃元素和规划景色中剥离出来,并在整个设计中充当调节日光和遮阳的作用。
室内设计参考了 19 世纪英国著名的测量师、规划师罗伯特霍都(Robert Hoddle)建立的瓦南布尔CBD 网格,以及兵营文书室中的网格状天花板。这有意延伸了与城市和遗产建筑的现有建筑关系,并将当代建筑和老建筑联系在一起。网格和铰接式天花板遍布整个新楼层的设计中,不同的天花板布置作为对原始天花板的当代式解构。
通过对材料进行适应性再利用,并谨慎选择使用寿命长的建筑材料,以尽可能地减少对环境的影响。景观设计支持当地的多样性和行树道的长期发展,同时雨水花园也已建成。
项目图纸
△总平面图
△一层平面图
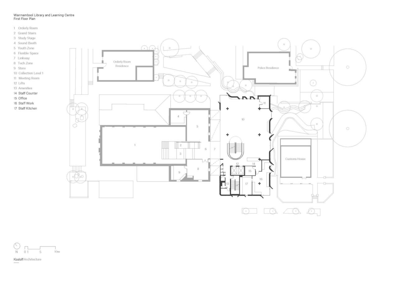
△二层平面图
△三层平面图
△立面图
△剖面图
△分析图
项目信息
建筑师: Kosloff Architecture
面积 : 2479 m²
项目年份 : 2021
摄影师 :Derek Swalwell
委托方 : Department of Education and Training Victoria (DET), South West TAFE (SWT), Warrnambool City Council (WCC)
合作方 : 英海特工程咨询(北京)有限公司, Bryce Raworth
建筑设计 : Kosloff Architecture
景观建筑师 : TSA Management
工程师 : GLAS Landscape Architecture and Urban Design, Matter Consulting Engineers, WRAP Engineering
地点 : 澳大利亚,Warrnambool

BIM建筑网





















