从古至今的甲骨、篆刻、竹简、缣帛和纸张,记录了悠久的历史,成为人类文明的瑰宝。如今,档案馆作为保存记录社会发展历史的重要场所,满足人们对“资治”、“存史”和“文化传承”的需要。湖北省档案馆新馆坐落于武汉东湖新技术开发区花山生态园花山大道以东,总建筑面积60053㎡。
荆楚风韵与档案特色的融会贯通建筑整体配色采用荆楚建筑常用的红黑色调,裙楼流畅的曲面屋顶与古代青铜器的造型有异曲同工之妙,具有浓郁的浪漫神秘的荆楚风韵。裙楼连续完整的铺展开来,形似摆满卷宗的书案,空灵古朴。方正的档案库房犹如一枚精致的玉玺印章,采用层层垒叠的档案卷宗纹理,高度契合了档案行业特质。整体建筑将古朴的荆楚风韵用现代的手法进行演绎,与档案特色融会贯通。
外墙材料与立面设计的虚实结合塔楼石材幕墙通过不同厚度的樱花红石材组合拼接,使得建筑立面神似“卷宗堆叠”的肌理感。对不同凹凸的石材组合成单元板块,并对单元进行编号排布,在实现随机效果的同时,又能便于施工控制。
裙楼采用里层为铝合金中空玻璃,外层加一层仿石材穿孔铝板进行遮阳,既达到立面纹理的效果,又满足室内的采光通风需求,从外看与石材纹理浑然一体,从室内往室外看透如一层窗纱。
模糊空间与复合功能的灵活运用裙房主入口前设置一个17mx46m的巨大灰空间,是传统建筑屋檐的抽象表达,具有模糊内外的空间属性。尺度巨大的灰空间,恢弘浪漫,大气磅礴。在平时是入口主大厅的前序过渡空间,完成了室外喧嚣环境到室内宁静文化氛围的自然转换,同时又是主大厅外部一个遮阴的大门廊,避免了阳光对主大厅的直晒。在举办活动时又可以成为一个半室外的活动场地,举办档案相关展览、展会、开幕式、学术报告、青少年演出和各类宣教讲演等活动。
项目图纸
△总平面图
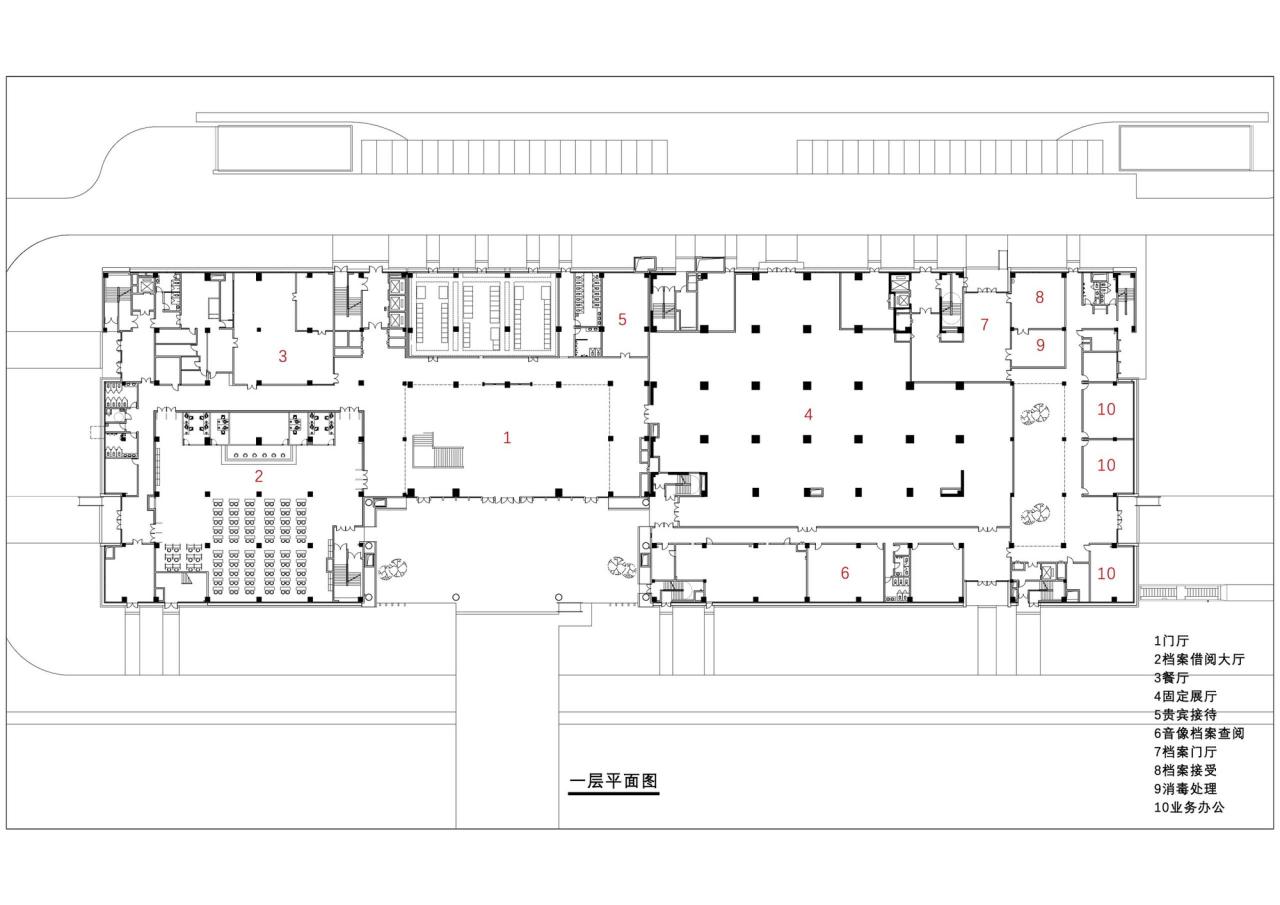
△一层平面图
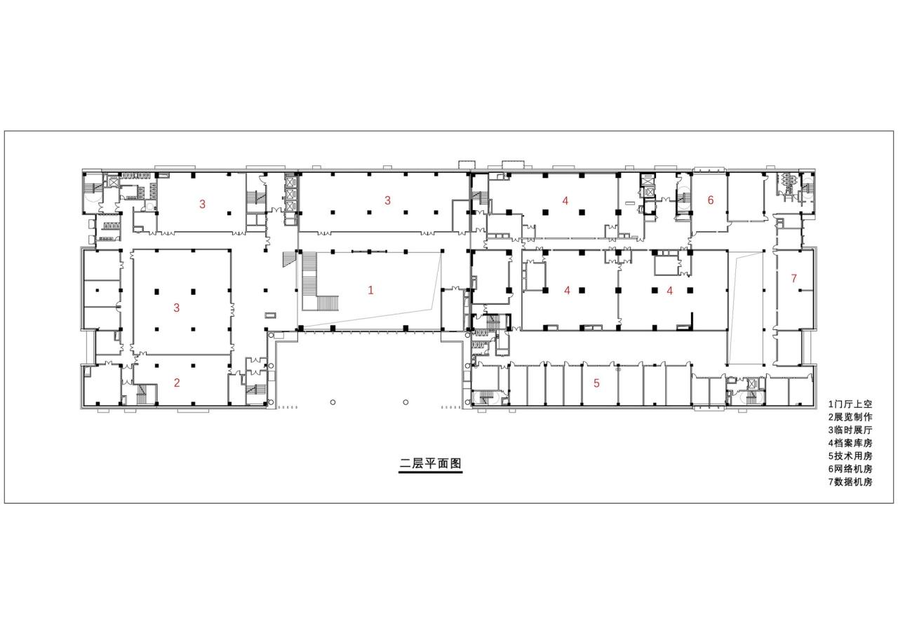
△二层平面图
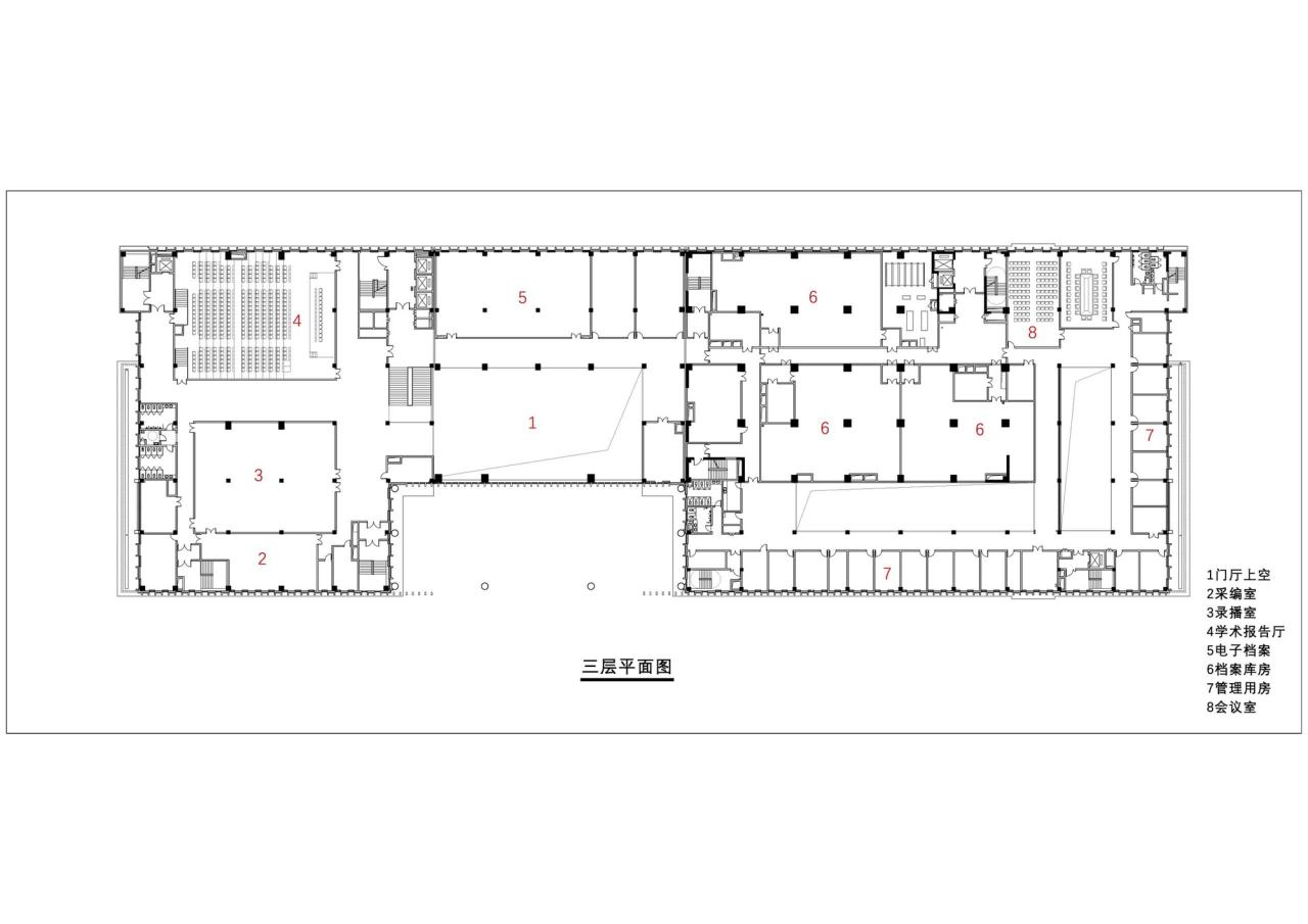
△三层平面图
△五层平面图
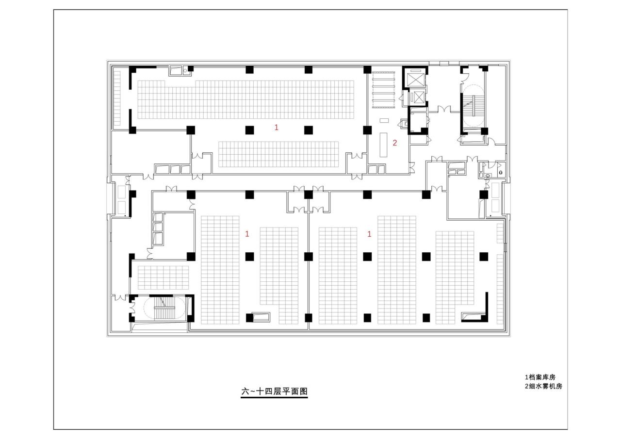
△六-十四层平面图
△立面图
△立面图
△剖面图
△剖面图
△剖面图
△细部大样图
项目信息
建筑师:中南建筑设计院
面积 :60053m²
项目年份 :2022
摄影师 :赵奕龙
厂家 : 武汉弘美达幕墙建材有限公司,湖北拓茂建筑工程有限公司,耀皮玻璃集团
主创建筑师 :张颂民、杨江峰
设计团队 :张颂民、杨江峰、吴柄江、万青、李黎、鲁举安
结构设计 :龚展宇、葛翔、舒晓玲、池碧波
给排水设计 :李冬梅、栗心国、余蔓蓉
暖通设计 :叶欣、刘华斌、张迪
电气设计 :容浩、王彦、陈繁
估算 :余祥文
幕墙设计 :王书华、童超华
室内设计 :李伟
景观设计 :沈业豪
照明设计 :邓世超
施工方 :中建三局集团有限公司
委托方 :湖北省档案馆
地点 :武汉

BIM建筑网




































