远观,似粉墙黛瓦的江南传统民居,近观,如屋檐舒展的古典园林,再靠近,原来是玻璃幕墙与金属格栅的现代工业园,镜面与水景映衬着屋顶山势,半隐半透、通透转折间蕴含着东方的含蓄。
锡东生活垃圾焚烧发电厂,用现代的手法演绎传统建筑的诗意和韵律,消除工业建筑的超大体积感,融入当地自然环境与人文环境。
△项目概览
锡东生活垃圾焚烧发电厂提标扩容项目,位于无锡市锡山区东港镇黄土塘村,锡沙线北、东青河西,周围是绿树成荫的环境园,厂区内东侧是一期已建厂房。在委托设计之初,业主对于扩建项目更多的是工艺与生产功能的需求,对于立面美感和建筑品质只有模糊的想象,并没有提出清晰的诉求,在最开始的扩建方案是采用彩钢板喷绘,形成与一期一致的外立面效果。随着与业主交流的不断深入,我们逐渐体会到环保企业对实用性、经济性、品质感的追求,以及业主希望项目能够融入地方特色,成为城市亮点的愿景。“地域特色”、“和谐”、“经济”等关键词开始逐渐浮现。在现场已施工过半的现状,在运营时间的节点逼近,我们摒弃了繁复的表皮外观,精确推敲空间细节,提取当地文化元素,形成差异化的现代环保工业建筑形象。
△从出入口看厂房
△厂房与倒影
△项目整体
△项目整体
△改造前后照片对比
#01文化策略:
无锡水文化 古典园林文化
我们秉承建筑应该充分考虑其所在地域特点的原则,从地域文化中提取建筑形式与空间元素,使人与建筑之间产生情感共鸣,让建筑成为有意义的载体。无锡自古就是鱼米之乡,山水秀美、人文景观众多,被誉为“太湖明珠”。无锡正是处在长江南岸、太湖北岸、运河沿岸,无论是信息还是货物都流通比较快,造就了无锡的经济飞速发展。我们希望建筑形象是柔和而唯美的,以“江南柔情”之美,体现“太湖明珠”之意。
古典园林文化也是无锡文化的重要组成部分,位于无锡的寄畅园是江南四大名园之一,渗透着2000年来的吴文化精髓。“取欢仁智乐,寄畅山水阴”。寄畅园的美在于山水的关系,山、水、建筑这三个主要的要素平行展开,这样的布局,使得了无论从哪个角度看,水都是画面的一部分。我们的项目用地呈长矩形,建筑的横向展示面很宽,主建筑前的景观区也是呈带状的,将寄畅园的构图关系放在项目中,使画面呈现出:前景是水(水景与幕墙),中景是建筑(白墙与曲线屋顶),后景是山(黑色墙),如同将园林“立”了起来,这也是中国山水画的经典画法,“园有古意,亦有画意”。
△构思概念图
#02体积策略:加法
垃圾焚烧发电厂因其特殊的工艺处理流程以及设备生产空间,体量尺度巨大,功能体量也相对明确。锡东垃圾焚烧发电厂是由三组焚烧线、汽机间与生产办公区组成,在体量上形成前后、小大的形体组合,立面上大体呈现出“两层”的高度关系。两期主厂房十分靠近,中间的道路正向厂区出入口。在既有条件的制约下,我们采用有限介入的设计策略,通过增加的连廊体块将一期与二期厂房连接起来,我们将江南民居中“坡屋顶”这一要素作为切入点,提取、解析并加以抽象,形成一二期厂房统一的立面形象。
由于工艺设备需求,建筑高度近60 米,如果将整体的屋顶设计成坡顶,必将增加建筑的高度,使厂房更为高大,我们将“人字形”曲线坡元素以“檐口”的形式挂在外墙,上部设深灰色墙面,与白墙形成了强烈的色调关系,在不增加建筑高度的情况下,实现“粉墙黛瓦”。屋檐延伸舒展,倒影在景观水面,水光潋滟,展示建筑独特的味道。
△挂在墙上的人字坡
△生成过程
#03建造策略: 适用
建造是我们工作的核心内容之一,当材料和细部被认真考虑时,抽象的形式语言才拥有了真正的意义。在尽量减少不必要装饰造成浪费的原则之下,立面的主要材料选用了成本较低的竖向波纹彩钢板建筑材料,彩钢板作为工业建筑常见的材料其耐候性较好,便于清洁维护。同时在细节装饰上使用铝板,利用其易弯折的特性,实现弧线条造型语言。
在一期主厂房的外墙改造时,我们尽量不改变窗的位置,保留大部分檩条,仅通过更换老旧玻璃窗和外层的彩钢板,实现一期与二期的联动,大大减少施工时间和成本。
△一期改造
△一期改造
△立面材料
#04沟通策略:坚持与妥协
出于业主的高度信任,设计阶段非常顺利。但随着实际建造的推进,在旧厂房改造上的实施上,设计师与业主的诉求产生了分歧。方案中的连廊与人字形坡的荷载需加在一期厂房,在靠近一期主厂房的位置,基础施工难度较大,同时人字坡的尾部重量要落在一期厂房的屋顶,加固一期厂房对工厂的运行有影响,且造价增加。考虑施工难度和厂房运行需求,我们将原来增加的外突人字坡,以更“轻”的方式,“挂在”在厂房的高墙上,大大降低了施工难度。
修改后的方案影响了两期厂房的“连续感”。不过,从建成效果看,现在的方案,连廊与办公区连续了整个前景,与古典园林中的连廊的异曲同工的效果; 而原方案中一期突出的中控室过于明显,与整体不协调,这次妥协成为了由业主施工难度的压力引起的设计校正。
任何项目在设计、建造过程中都不可避免的会有所妥协,业主的诉求有时会对设计产生积极的校正,当发生分歧时,建筑师可以在业主以及使用者的角度来重新进行理性且全面的考虑,一定程度的妥协亦是我们建筑师对待专业工作的职业素养。
#05结语
如今,锡东环保发电厂项目落成。没有夸张的造型、昂贵的表皮,通过贴合功能的造型处理、对当地文化精准提炼、严格把控的建筑品质,在相对常规的成本控制下,营造出独特的建筑气质。
城市风貌印象、自然景观印象以及历史文化印象共同构成了人们对于地域和建筑之间情感关联的期望。人杰地灵的无锡为我们的设计提供了丰富的语料资源,我们希望借此打造一座有地域特色,让民众可以接受甚至喜欢的垃圾焚烧发电厂,使得先进的处理技术可以顺利地发挥作用。
△宿舍屋顶看厂房
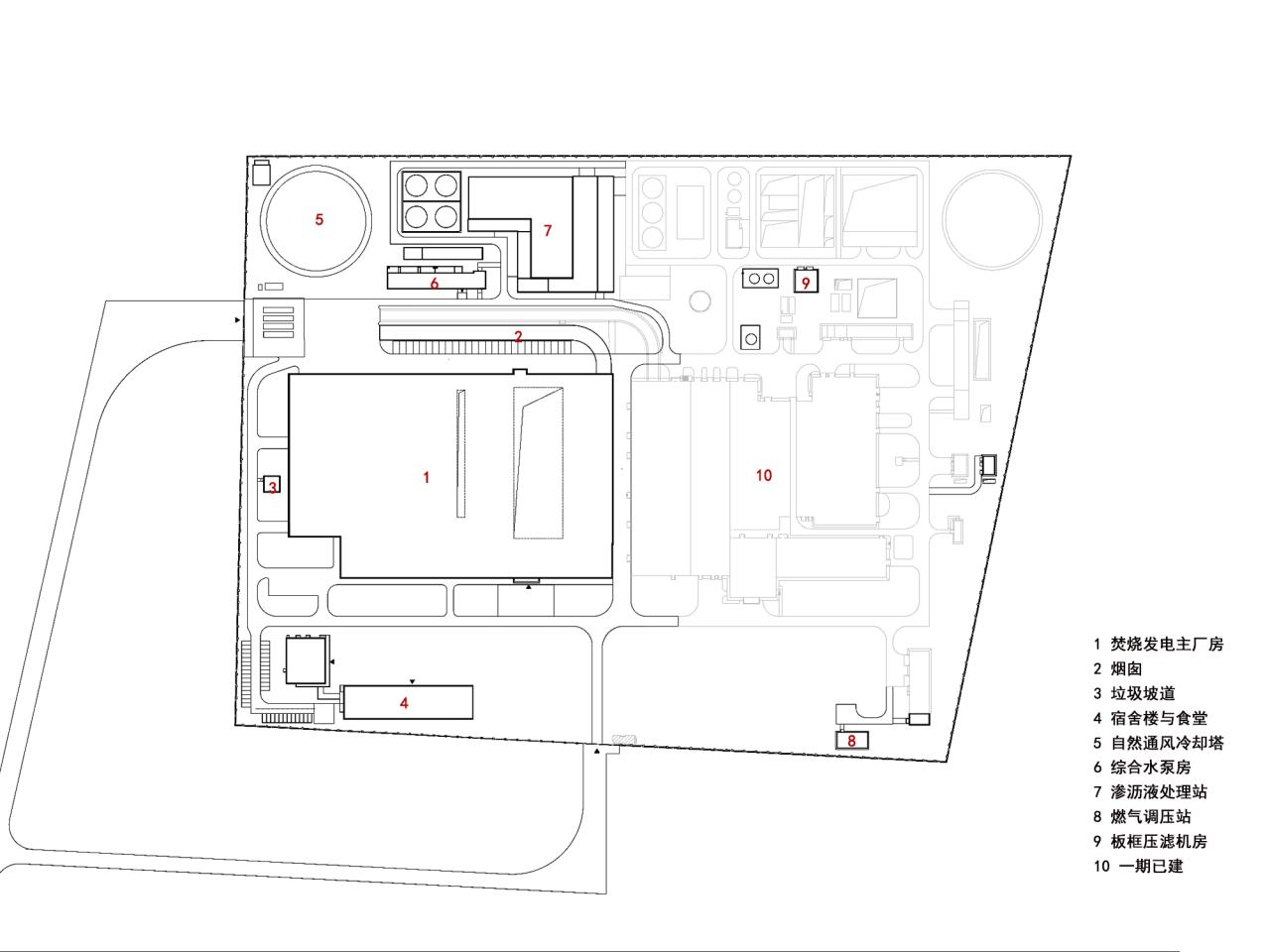
项目图纸
△总平面图
△功能空间分析
△二期南立面图
△二期北立面图
△二期BIM模型剖切图
项目信息
项目名称:锡东生活垃圾焚烧发电厂提标扩容项目
项目类型:工业建筑
设计方:广州华科工程技术有限公司(WeTech)
项目设计:2019.10
完成年份:2022.10
设计团队:吴玉琼 (主创)、梁文龙 、关顶立、李鑫、李方方、吴少泽 、张学谦、王海帆 、李宗灿、 蔡晓波
项目地址:无锡市锡山区
建筑面积:101580㎡
摄影版权:WeTech 、光国环保能源(无锡)有限公司
客户:光国环保能源(无锡)有限公司

BIM建筑网























