ONE@东京是 Agora 酒店联盟在东京的第四家酒店,对休闲或商务旅客而言都非常方便。项目距以东京晴空塔而闻名的押上站仅需步行 3 分钟,将旅游小镇与自然融为一体,同时也保留了传统市区的氛围。
为唤起过往记忆中的画面形象,世界著名建筑师隈研吾操刀了项目的室内和室外设计,将传统木框架与工业形象结合,创造出适合该地区的反差性。该酒店是一家现代酒店,以独特、灵活和高效的风格特点为下一代提供舒适的住宿体验;业主希望继续扩大和拓宽业务领域,进一步发展其在日本的酒店业。
该酒店共提供 142 间现代客房、一间咖啡厅和一个宾客能直接欣赏晴空塔的屋顶露台,并且酒店前往羽田和成田国际机场都非常方便。为了回应居住宾客希望感受当地社区的联结需求,酒店概念侧重于满足与灵活旅行相关的“旅行者”和“当地人”。品牌理念则通过 Agora 酒店联盟提出的“美丽日本”进行推广,以实现振兴社区的目标,使酒店成为该地区的地标之一。
Agora 酒店联盟的使命是建立一个受人尊敬、值得信赖、精通设计并以关系为基础的酒店联盟网络,汇集“美丽日本”,为推动日本成为亚洲最佳目的地做出贡献,并培养有热情好客精神的年轻人来继承日本的旅游业。
项目图纸
△酒店立面图
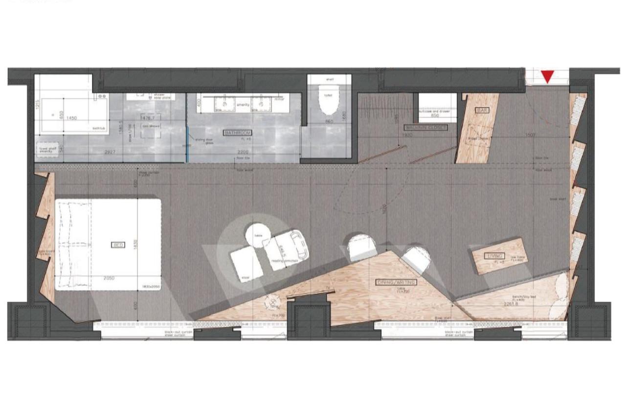
△平面图1
△平面图2
项目信息
建筑师: 隈研吾建筑都市设计事务所
面积 : 3741 m²
项目年份 : 2022
业主 : Sky Hospitality GK
酒店运营 : Agora Hospitality Co., Ltd.
地点 : 日本,墨田区
微信公众号:xuebim
关注建筑行业BIM发展、研究建筑新技术,汇集建筑前沿信息!
← 微信扫一扫,关注我们+

BIM建筑网




















