当下,未来教育与未来中小学校成为教育界和建筑界一个热点话题,目前也产生出一批阶段性成果。新型的教学成果会对教学空间提出新的要求,以典型的STEAM教育为例,新型的教学特点主要体现为跨学科、协作性、趣味性、体验性与情景性。这些特点则要求教学空间具有开放性、灵活性、多样性与情景性,以此适应教学需求。而河源市中小学科普教育馆就是团队在此方面的一个实验性案例。
项目定位河源市中小学科普教育馆位于既有校园内,建筑面积3577㎡。建筑规模虽小,但具有示范性、标杆性和专题性特点。首先,本项目受到省政府的大力支持,提出要将本项目打造为国内一流的高质量科普教育馆,作为省中小学科普教育示范工程,供全市乃至全省中小学生参观学习。其次,当下针对中小学人群服务的小型科普馆极少,本项目的建设可为今后类似的场馆建设提供经验参考。最后,本项目的小规模条件很难实现综合性展览,主要定位于专题性科普。后续建设的场馆科普主题由各个学校根据自身的教学课题、展示内容等情况因地制宜,形成特色,使每个场馆都独一无二,避免简单的复制。基于定位,设计团队认为,本项目除了满足学生的科普教育之外,还应在其他时段成为所在学校新型教学方式的开展场所,以提高场馆的利用率。因此,场馆的设计除了满足博览建筑的要求之外,更应与当下的教育发展新特点相适应,与所在学校的新型教学需求相适应,打造为常规学校空间之外的“非正式课堂”。
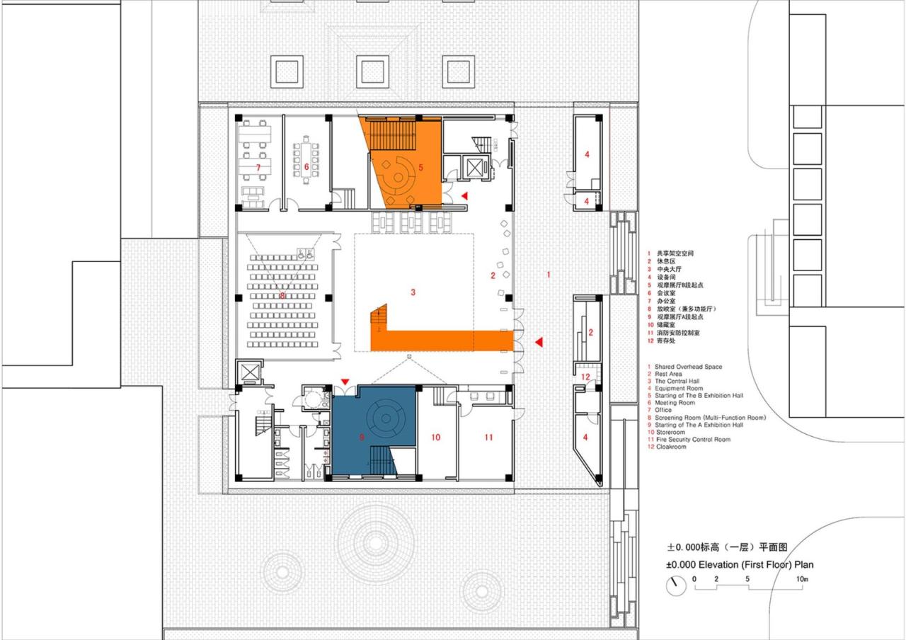
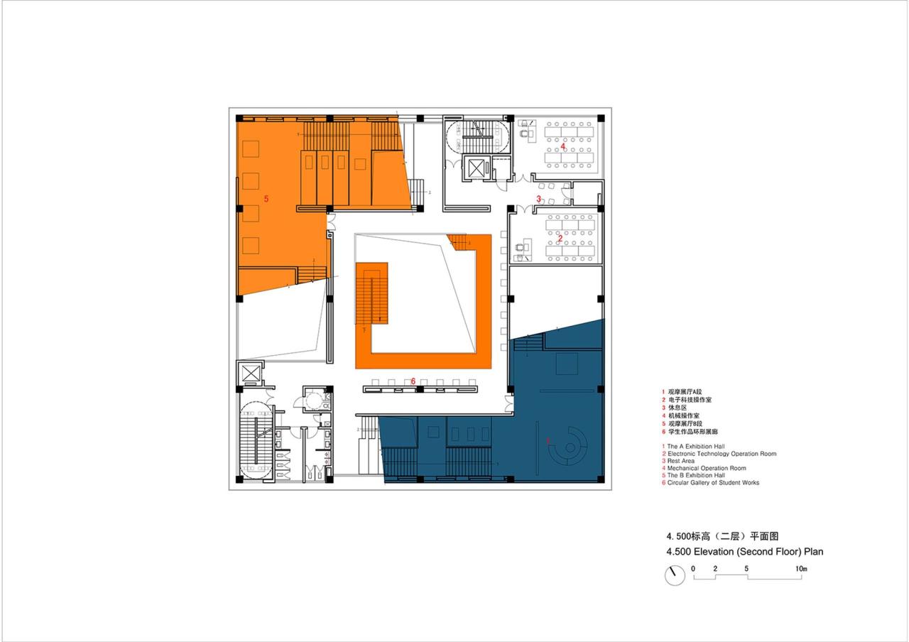
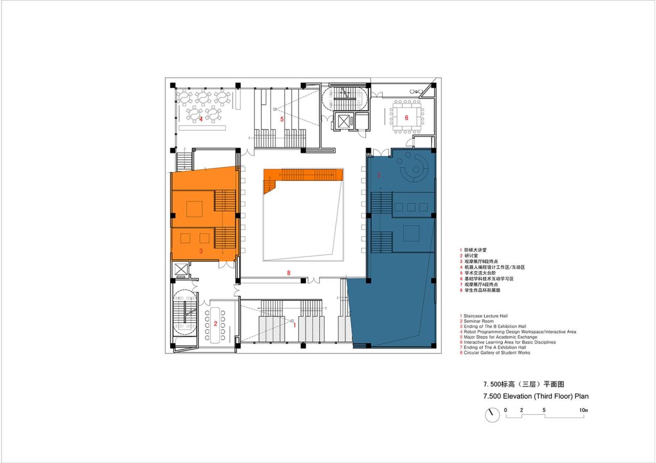
功能整合,提升效率建筑规模较小,若每个空间均定义使用性质,并没有太多房间,使用率反而较低。设计根据当代教育与展览发展最新趋势,将整个场馆分为两大功能区:相对独立密闭的科普观摩区和开放教学区。前者主要包含观摩展厅,后者则十分灵活,没有人为定义空间性质,由后期师生根据教学需要自行重组。
双轨路径,立体流线常规展览流线主要是平面线性的,而面对本项目小规模的前提,平面流线会被楼层所打断,削弱参观连续性。设计将流线设置为立体多维,并处理为两个参观序列。参观者从首层两个不同的入口开始参观,沿着各自流线参观完毕之后再通过垂直交通到达对方流线的起始,进而完成完整的科普观摩。类似空间双螺旋结构的流线设计可实现两股人流同时参观又互不干扰,提升参观效率。
流线空间,合一表达功能分区和流线设计的特征,随即反映到空间形式上。整个建筑为一个方盒子,除去两条封闭的、盘旋而上的科普展厅之外,剩下的部分即为公共开放的教学空间。流线组织塑造空间特征,空间形式反映流线组织。立面设计也以微透的聚碳酸酯板全覆盖,并在主要空间处开口,立面形式反映空间特征。
多元空间,适应教学除了科普观摩展厅之外,开放教学空间类型多样,形式多元。在空间形式上,大小空间套叠,集小组讨论与制作、大群阶梯聚集与交流为一体。在空间尺度上,错层、跃层的处理产生出多样的空间尺度。整个空间具有极强适应性,促使教学行为随时随地发生。
节能低碳,示范标杆低碳环保是设计一直贯彻的理念,并在方案前期就咨询相关专业公司进行设计。建筑中庭上方设置天窗,在保证室内稳定的物理环境下,可开启窗扇产生自然拔风效果,利于节能减排。外立面采用聚碳酸酯板,不仅具有良好的遮阳效果,还使室内光线变得十分柔和,满足教学需要。同时在立面板材上沿着开放空间开设通风洞口,以降低空调能耗。此外,设计积极采用当下成熟的绿色技术,如光伏板、小型风力发电、温变玻璃等装置,充分利用可再生能源,力争打造“零碳建筑”。本项目也获得了由中国建筑节能协会颁发的《近零能耗建筑》标识。
设备教材,拓展教学设计秉持“整个建筑都是展品”的理念,除空间外,还将设备管线、构造节点等内容对学生开放,成为科普内容的拓展。室内天花各类设备管线直接裸露,打造沉浸式学习环境;屋顶空调、绿色技术设备成为设备科普区,营造特色科普场所。
屋顶花园,室外课堂设计充分利用屋顶空间,打造室外课堂与室外展场。屋面设置参观步道、植物园、建筑设备区、公共活动区,将学习行为延伸至室外。.
后记该馆虽已建成,但其实却仍处于、也将一直处于“未完工”状态。正如本项目是团队的一次实验性探索,使用方式也是学校育人方式的尝试。团队希望这个场馆作为所在学校新型课程设置与教学方式的实验基地,新的想法在这里实验,行之有效之后再带入到常规课程的教学之中,以此形成良性循环。
项目图纸
△总平面图
△一层平面图
△二层平面图
△三层平面图
△四层平面图
△屋面平面图
△剖面图
△剖面图
△分析图
项目信息
建筑师:华南理工大学建筑设计研究院
面积 :3578m²
项目年份 :2022
摄影师 :EVI鹰视印象(谭浩贤),邓阳阳
Design Leader :邓寿朋
主创建筑师 :苏笑悦
建筑设计团队 :陈果,雷孔雾,黄欣,程姝颖,戴雅靖
结构团队 :唐嘉敏,赖洪涛,彭秀钟,黄勇,梁岳琳,尹盈
给排水团队 :岑洪金,江帆,钟文勇
电气团队 :黄晓峰,陈涛,叶映
空调团队 :王钊,程国珍,苏鹤阳
弱电团队 :黄晓峰,陈卫彬,黄志炜,苏瑞昌
景观 :陈天宁
节能 :张欣欣
资料整理 :于文才
施工方 :河源市晨晖建设工程有限公司
近零能耗设计顾问 :珠海中建兴业绿色建筑设计研究院有限公司(邓鑫)
室内设计顾问 :广州中颐装饰设计有限公司(黄小青,林博凯,黄勤智)
布展顾问 :广州市三川田文化科技股份有限公司(王钦明,邓阳阳,朱灵灵,张文泉,孔令涛)
外墙设计顾问 :广州市珀丽优材料科技有限公司(杨海军,谭乐)
温变玻璃顾问 :中山市中佳新材料有限公司
业主 :河源市教育局
地点 :河源市

BIM建筑网









































