本项目坐落于苏州太湖边的光福镇,项目周边被各个年代的矮旧村民自建房包围,西南面与太湖只隔一路,视野开阔,交通便利。场地位于苏州城西28公里的太湖之滨。东与藏书镇接壤,西滨太湖,南同胥口镇毗连,北接东渚,距离太湖度假区仅10分钟车程。
△湖边远看 @平介设计
原建筑是一户带有院子的砖混结构三层自建房和一栋一层的木构加建,原业主为了防潮在入户进门后有一个架起的庭院平台,但是由于使用年限较久和既有建筑原本建设的问题,院内加建的单层露台的柱子已经产生了很大的裂缝,基于结构安全问题我们一致认为要将庭院加建部分和一层木构的辅房拆除并重建。
△建筑原状 @平介设计
项目的的业主,是光福镇本地人,从小在这里长大,她租下了这栋湖边的自建房准备进行餐饮经营。我们在和她设计交流的时候,她提出想给自己预留一片私人空间能在这里办公和私人接待一些朋友。因此我们将3层的一个开间作为了他的私人办公和住宿区域,同时3层剩下的开间划分出来的另外两个房间和卫生间也方便她后续在这做一些相对私密的接待。
△湖边鸟瞰 @平介设计
△湖边远看 @平介设计
在设计之初,让建筑与场地结合自然生长或特立独行于场地中,是显而易见的两条不同的道路,但无论是甲方的诉求还是现有场地条件的“宿命感”都在无时无刻的提醒我们这一次的主题是“看”。怎么样来“看”太湖是这个项目的设计目标,我们希望来到这里的客人在进入场域后在不同的位置都能看到太湖,用丰富的层级关系来提升人们观赏太湖时的丰富性,吸引人们环游到建筑里的不同空间。
△湖边鸟瞰 @平介设计
△入口视角@平介设计
△入口视角 @平介设计
在与甲方的多轮讨论和想法碰撞下,我们最终确定了以层层堆叠的平台来为这个作为建筑改造的概念,旨在构建不同层高的观湖体验。项目在太湖边,加之苏州下雨天相对较多,建设初期我们填补了之前低于环湖路的院子区域,使之前低洼不平的庭院得以扩大形成比较舒适平坦的外摆庭院,并且使得建筑一层整体和庭院都略高于路面。通过对既有建筑的结构和拆改的梳理,建筑设计通过体块关系来堆叠塑造,最后形成层层退台的形式关系,院子北侧的下沉空间可以用来举办室外观演活动和聚会。为了看向湖面时能有更好的视野,在面向湖面的建筑立面我们做了比较大的矩形开窗,能够将湖面尽量多的呈现在来往客人的眼中。
原本的自建房住宅空间改成商业用途的公共空间会有一些弊端,像是空间都比较零碎并且尺度都是比较小、隔墙比较多、层高也比较低矮等情况。原本一层的客厅堂屋我们将其改造为主要的餐吧大堂和大厅,作为建筑中尺度最大的空间,置入了吧台和环绕吧台的不同的卡座和散座。
得益于将原窗户和门都拆除使得旧建筑和新加建的部分更加连贯使用面积也扩大了许多,我们将吧台依附于新旧交接的墙体置入空间当中,这样整个大厅就能以咖啡吧台为核心连接和辐射整个空间,较长的吧台在空间交接的地方用圆弧的方式来引导人们过渡到空间的另一端,右侧新建的副楼则用做店主平时接待一些私人朋友的区域,空间整体以干净整洁的白色调为主,家具上点缀些许色彩,室内吊顶和楼梯都用了层叠弧形作为基础语言的构件包裹空间,亦如湖水推到岸边溅起水花时的回流碰撞。
△一层空间 @平介设计
△一层空间 @平介设计
△一层空间 @平介设计
二层原本是几间卧室和一间起居室,隔墙比较多空间尺度也比一层的更小,我们选择将一个比较大的主卧和起居室连通用来做客座区,其余的卧室则作为包厢使用,我们在面向湖面的方向都做了大开窗让上到二层的客人都能有突然观赏到太湖时豁然开朗的感受。
△二层空间 @平介设计
△二层空间 @平介设计
△楼梯间 @平介设计
长时间的疫情导致人们都想逃离城市,寻找一片心灵栖息的绿洲。项目以观湖为媒介,将人们都牵引到此,来增强人与人之间的互动,聆听彼此,创造更多的可能性。远离城市,人们漫步前行的街道与矗立在此的建筑一同构成了令人向往的生活,我们希望每个到此的顾客都能收获到属于自己的那一份宁静与安逸。
△立面 @平介设计
△屋顶航拍 @平介设计
项目图纸
△模型照片 @平介设计
△模型照片 @平介设计
△轴测图
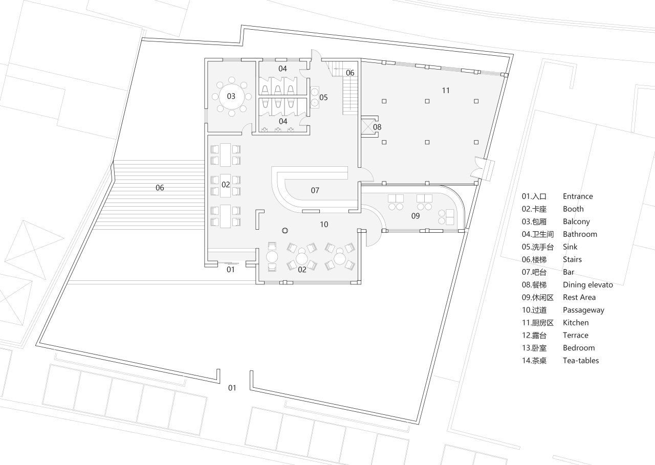
△一层平面图
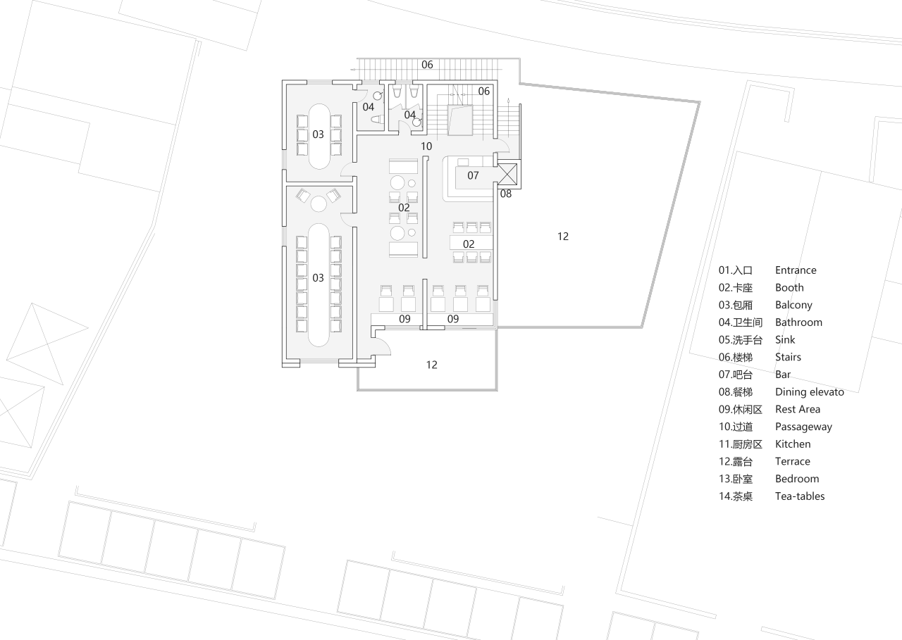
△二层平面图
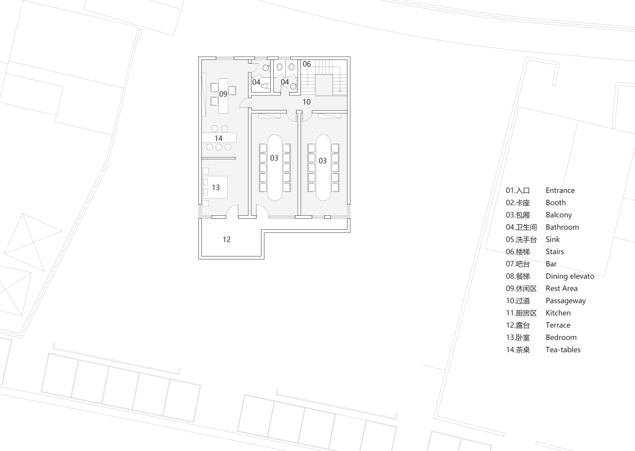
△三层平面
项目信息
项目名称:环湖公路边的度假餐吧
设计单位:平介设计
项目类型:商业建筑
建筑面积:686㎡
项目设计&完成年份:2022;2023
设计团队:李文靖,王海东,吴斯,杨楠,孔祥鹏
结构/水电设计:上海衡泰建筑设计咨询有限公司
摄影版权:颜社视觉
委托方:绝色·Juse café·restaurant
项目地点:光福镇环太湖大道坎上村8组26号

BIM建筑网























