概况
无锡梅里遗址博物馆坐落在梅里古镇内,西侧是悠悠千载泰伯庙,北侧是流淌不息伯渎河。在古镇建设中发现的商周时期梅里遗址像是注定要在这里,为“泰伯奔吴”、“江南肇端”的故事做出一个穿越千年的注脚。于是,这处因地段所限而仅有不到两千平方米的小馆,自始至终,都紧紧围绕讲好吴地起源故事的核心而展开设计。
共生
这处为商周时期遗址而建的无锡梅里遗址博物馆,本身位于城市建成区,又是身处建设中的仿明清风格商业街镇之中,其建筑设计走向尤为值得探讨:造型风格是远追先秦,还是近仿明清?功能设定是以历史展览为主,还是要融入商业街巷?以及,一处紧邻河岸的遗址,当与现在社区化的日常生活如何并置?
经过反复斟酌,设计团队明确了设计思路:
一、从建筑史角度而言,商周建筑形象缺乏实存和明确材料支撑,而明清商业街区项目文脉并不清晰,都不足取。最终定位仍应立足现代建筑风格,反映当代的遗产阐释理念和建筑技术能力,与周边城市区域的公众生活相衔接。
二、博物馆作为商业街区中的公益性项目,功能设定应当兼顾文化遗产阐释的学术性、商业街区功能的相容性和公共活动空间的日常性,充分建立学术和公众的连接。
三、项目位于商业街区中心地带,建筑外型体量应适当考虑街巷肌理尺度及与周边建筑的形式协调。
确定的三条思路为后续设计指明了路径,也得到了业主方的充分理解和支持。项目从方案的磨合细化到施工图的多专业综合设计,再到施工环节,均进展得比较顺利。
空间
建筑内外空间的布局围绕整体参观流线展开。博物馆规模不大,按照常规的博物馆功能区面积比例,两千平米规模的博物馆其展览面积在一千平米左右,且包括一个较大的遗址原状展厅。因此参观流线为单线式,按策展分主题依次呈现,观众从进馆到出馆一路前行,无需走回头路。
项目难点是建筑入口在背离伯渎河的商业小镇中心广场一角,而遗址坑又紧邻河岸,整个流线需要串联所有展厅,最终回到中心广场一侧。经过反复铺排平面,结合室内布展组织,设计采取了上下两层空间回转串接的方式,不但把各个展厅首尾连接起来,最后从二层文创商店出馆,又经过了位于遗址展厅正上方屋面的临河观景平台,再下行重新回到博物馆入口近旁,完成了一趟流线闭合且体验丰富的旅程。
馆内利用单侧的坡屋顶在中部设置了两层贯通的展区,使空间更为生动。馆外二层,与出口处坡顶下设置了开敞式共享空间,便于游客遮风躲雨和观看近旁河道上的水幕表演,同时也使建筑整体形态虚实相生,生动通透,很适合江南地区的气候特征。另外屋面观景平台作为室外公共空间,不仅很适合赏观河景,更把地面广场“抬升”到屋面,把建筑物占用的场地又还给了公众。
材料
博物馆的外观材料,除了屋面仿青瓦的深灰色直立锁边金属屋面板外,主要只有一种灰色的凝灰岩(洞石),之所以选用这种材料,最主要的原因是其青灰色彩和质感的沉着细腻,与我们想表达的建筑“历史感”在气质上非常吻合。
前文曾提及,商业街中仿传统民居风格的商店多为江南地区常见的粉墙黛瓦木窗形式。为了与这些背景建筑既相区别又有所贴近,选用了这种灰色石材,作为黑与白之间的过渡色彩,使建筑造型不至于太突兀,易于融汇于周边的街巷之中。
通过对这种石材不同的磨光处理,促使其产生深浅色差,墙面石材的分块也有意采取了五种(后简化为三种)宽窄长短不同的规格,这些色彩和规格的组合差异为整个墙面带来生动细腻又自然的变化,水平拉通的墙面分缝更使其呈现出一种地层叠压的感觉,也是对考古工作的一种隐喻。在雨天,这种略有孔隙质地并不是非常坚硬的石材受雨之后,随天气状态而显现的干湿变化,增添了一抹契合为江南水乡气质的、氤氲朦胧的意蕴。
历史
遗址博物馆营建的最终目的是保护遗址和向公众阐释遗址。怀着这样的初衷去认识这一项目,博物馆的展陈设计也是设计流程中的重要一环。由于在建筑设计过程中,已经充分考虑后期展陈流线和空间的变化,并且具有一些展陈手法的构想。因此在真正进行到展陈设计阶段时,整体的叙事框架已经大致构建完成。
展览策划“序厅”、“吉光片羽”、“泰伯奔吴”、“至德名邦”、“沧海桑田”和“遗址现场”六个板块。在永久展厅内,从考古发掘过程切入,对梅里遗址的聚落源流、文化交流、出土器物、历史传说、运河环境、文化精神等诸多侧面娓娓道来。通过对于透明显示屏、电子沙盘、多媒体屏幕等现代展陈技术适度应用,使遗址故事的讲述更加生动鲜活。离开永久展厅,由坡道移步至玻璃盒子式的放映厅内观看影片。影片放映结束后,通电玻璃的变幻将为观众带来一点小惊喜,自然地切换到遗址现场的环境中去。遗址现场展厅中,观众可以穿梭于遗址周遭的参观步道上,阅读遗址;亦可透过玻璃幕墙看到与遗址形成息息相关的伯渎古河。
展厅内地面与墙面主要采用深灰和浅灰色,力求简单素雅,衬托作为绝对主角的出土器物与解说图文。同时文字与墙面的黑白对比,又与江南印象很好地进行了呼应。
社区
现代城市发展中的新建筑,不论其类型,都应当对促进社区营造和公众交流有所贡献。梅里遗址博物馆恰巧身处拉动经济和促进消费而建设的新商业街镇中,对此更是责无旁贷。因此设计的一个初衷就是除了博物馆外,还要为社区营造一处开放式的活动场所,而且是无障碍全天候任何人都可以轻易到达的场所,将城市空间真正还给民众。
遗址现场展厅因为紧邻伯渎河,并且作为博物馆二层出口的衔接空间,非常合适设置屋面平台广场。平台面积虽然有限,但通过景观设计做了地面化处理,除适当栽植小灌木外,还有意设置了可以观察下面遗址的观察窗。平台二十四小时开放,东西两侧的楼梯无需通过博物馆,就可以直接由两侧的街面到达,其中西侧大楼梯还结合可观水幕的看台式台阶嵌入了一条坡道,方便居民推儿童车通行。屋面平台一侧结合建筑坡顶设置了木制休息看台,为这一场所提供了更多的活动可能性。可惜该平台未能与周边拱桥及商铺进一步连接,以打通更为丰富的游憩空间,引以为憾事。
遗址现场展厅北侧临河有一条狭窄的通路。我们在通路中段将展厅向内凹进了三角形的区域,既做为博物馆的一处应急疏散出口,更为临河的公共通道营造了一处扩展节点,便于游人在此小憩,避免了建筑对于河畔通行路的压迫。这个三角形室外区域的墙体有意用落地玻璃做透明分隔(此墙面北,不会因阳光直射影响遗址本体),散步经过的人也许会惊觉玻璃内外远古遗址和现代商街的差异,一墙之隔古今千年,历史之于今天意味着什么?
项目图纸
△施工过程记录
△模型图
△模型图
△总平面图
△屋顶平面图
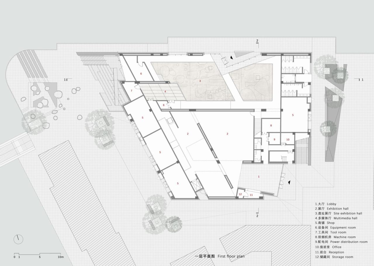
△一层平面图
△二层平面图
△东立面图
△南立面图
△西立面图
△北立面图
△剖面图
△剖面图
△墙身大样图
项目信息
项目名称:无锡梅里遗址博物馆
项目地点:江苏无锡新吴区梅里古镇内
建筑面积:1937.55㎡
设计时间:2019年1月-2020年9月
施工时间:2020年8月-2022年9月
业主:无锡市新吴区梅村街道
设计单位:
中国建筑设计研究院有限公司 建筑历史研究所(建筑方案,室内展陈策划与方案,全程配合)
上海中森建筑与工程设计顾问有限公司 止境设计工作室(建筑方案深化,施工图设计,景观方案与施工图设计,土建全程配合)
设计主创:
刘剑、吴嘉宝(中国院历史所);张男、张晓远(上海中森止境设计工作室)
设计团队:
中国建筑设计研究院有限公司:陈笑鹏、吕文杰(建筑)
上海中森建筑与工程设计顾问有限公司:陈旸、干露、于雅琪、冯琦、郭静瑞、欧仁伟、黄舒婷、汤燚(建筑);唐小辉、侍政、赵征(结构);张慧杰(景观)庞志泉、田涓入、张汝波、余滋斌(给排水);安秋香、马浩然、王建伟(暖通);周英俊、杨禾珣、高春(电气);王黎、严奔驰、徐锦慧(总图);李超(节能)
室内展陈设计:中国建筑设计研究院有限公司、北京筑邦建筑装饰工程有限公司、杭州宇志文化艺术策划有限公司
展陈策划:中国建筑设计研究院有限公司、北京六材工坊文化发展有限公司
展陈多媒体设计:山东朝齐文化传播有限公司
幕墙设计:上海易旋建筑设计咨询有限公司
代建方:无锡隽泰房地产开发有限公司
土建施工方:江苏无锡二建建设集团有限公司
展陈施工方:北京筑邦建筑装饰工程有限公司
幕墙施工方:美华建设集团有限公司
材料及厂家:
照明品牌:ERCO
展柜品牌:中比
钛锌板品牌:秘鲁锌
摄影版权:陈旸
翻译:苏怡柠

BIM建筑网


























































