徐州古称彭城,于1986年入选第二批国家历史文化名城。据地方志记载,因独特的地理位置,徐州城址基本未迁,呈现原址叠压状态。在徐州城市历史文脉保护的整体规划中,城下城博物馆是继城墙博物馆项目后,一个关键而特殊的城市节点。2020年初,博物馆的设计工作提前于发现遗址的挖掘工作展开,设计出发点是如何处理建筑、遗址和城市的关系,从而再现层叠的城市历史。
时空交错的体验之旅:博物馆与古今城市毫无疑问,原址保护的古代城市遗址以及在附近挖掘出的单个文物是主要展品,但事实上,现代都市也是“叠城”中的重要展品。层叠的城市文脉由古今徐州共同组成。因而,博物馆并未采用常规的、螺旋上升或下降的线性路径来回应“城叠城”的历史过程,而是通过时空交错,为参观者营造出在古与今之间穿梭的空间错觉:其一,借助庭院的空间渗透作用,博物馆建立了地下城市遗址与周边都市环境的联系;其二,通过控制路径中的光线,以明暗对比加强博物馆的空间组织中古代城市遗址与现代都市环境的时空转换,从而调动参观者的身体知觉,沉浸感知“城叠城”奇观。
场地策略:博物馆与广场作为一个完整连续体在展示和保护遗址之外,与城市广场、地下商业和地铁交通的紧密结合,是城下城博物馆的独特之处。因此,在博物馆与遗址、城市关系的处理上,项目需要将博物馆与场地作为一个完整连续体对待。
博物馆的场地策略可以用向两个方向“掀起”来概括:南侧拱形结构向外悬挑形成半开放空间,包裹城市主入口;北侧的拱形结构遮盖遗址为博物馆主体空间所在同时末端形成面朝广场的入口。借由这个动作,博物馆不仅掀开了广场,也掀起了“叠城”的层层历史。博物馆不仅将城市广场的活动空间还给了市民,更重要的是启发一种对这座古城过去、现在与未来的思索。
织补彭城:遗址、城市文脉与城市架构2010年至今,在徐州的一系列城市更新实践中,我们试图寻找散落于城市角落的历史遗脉,运用都市针灸的有机更新理念尝试将古城的文脉系统性地贯通起来。总之,历史城市的保护与更新并不是一个“理想蓝图式”的规划。对于许多“旧貌换新颜”的城市来说,小心仔细地梳理历史文脉、不厌其烦地调整设计方案、由点到面地织补城市架构,或许才是古城更新的“捷径”。
项目图纸
△模型图
△发展过程图
△古代地形图
△分析图
△总平面图
△平面图
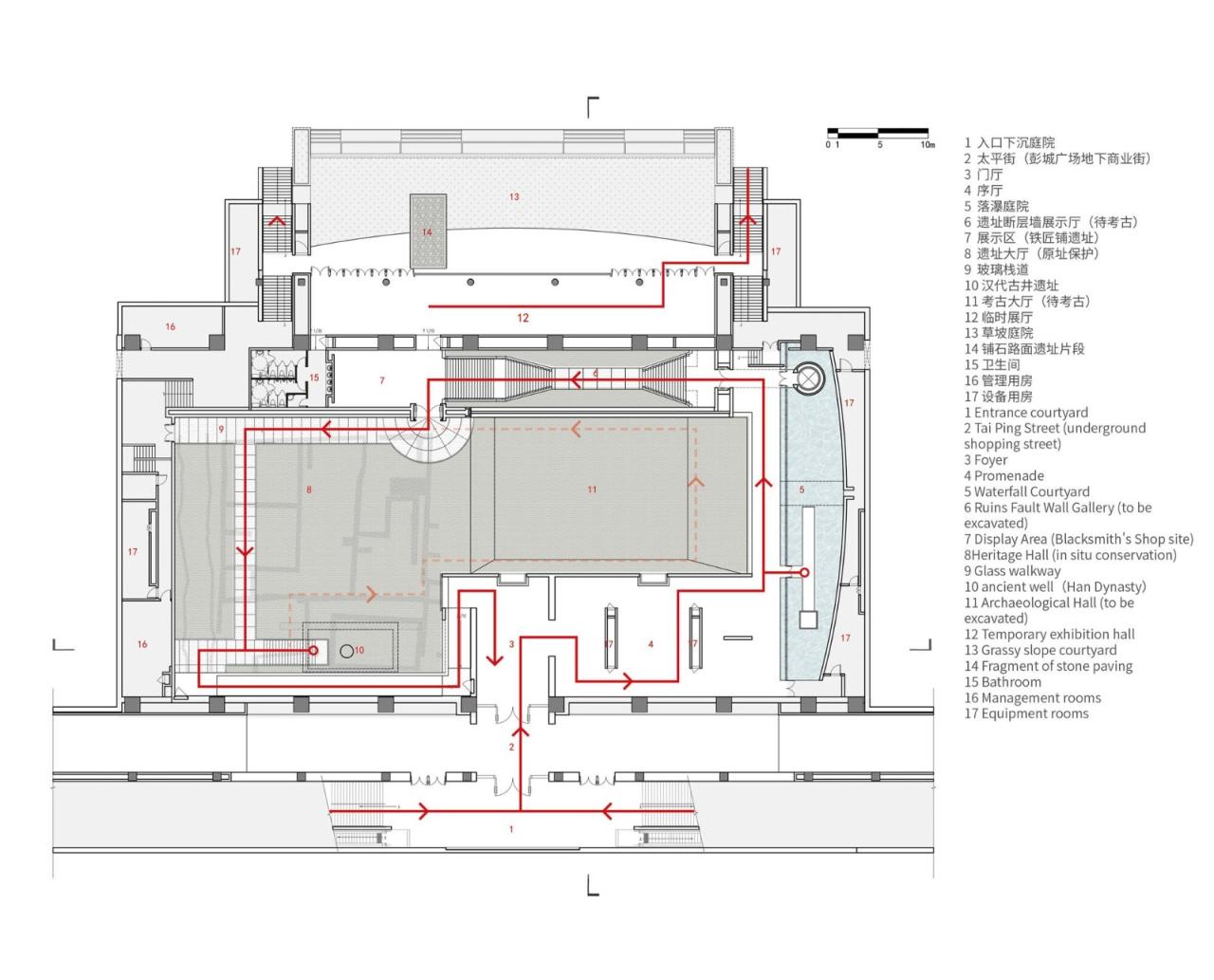
△流线分析图
△剖面图
△剖面图
项目信息
建筑师:中衡设计
面积 :3735m²
项目年份 :2022
摄影师 :秦伟
厂家 : Haier
主创建筑师 :冯正功,王旭
设计团队 :冯正功,王志洪,王旭,鲁洁明,钱小玮,王嘉威
电气设计 :张渊,魏天蒙
暖通设计 :朱勇军,何光莹,高尚,赵云天,孙博涛
给排水设计 :陈绍军,薛学斌,唐毅涛
弱电设计 :王志翔,李业勤,王啸,钱奕男
幕墙设计 :沈筠,吕桂林,陆体操,刘树
景观设计 :Junteng Zhang, Defeng Yu, Geyan Chen, Mingyan Zhu, Xiangjun Meng, Zirui Wang
室内设计 :张浩,马勤勤,曹献林
标识设计 :王登坤,魏国宏
施工方 :中铁十局集团有限公司
委托方 :徐州地铁集团有限公司
地点 :徐州

BIM建筑网
































