项目位于江苏盱眙,基址西北侧为淮河,东南侧为第一山,紧邻第一山历史街区。场地内现存建筑为三合院,现状空置,后院有一废弃水塔。饮茶看黄梅戏,在当地颇受欢迎,茶馆式小剧场的融合开放与黄梅戏的淳朴轻快一脉相承。因此在项目的空间与功能定位上,并不局限于常规剧场演绎,而是建设以当地的特色黄梅戏剧种为基础的小剧场,结合当地的雨山茶的品鉴,同时引入非遗传统文化展览与沙龙空间,形成“黄梅戏+”特色文化馆。
大空间的小,呼应山景自然设计在充分满足小剧场功能的基础上,让建筑与山水景色以及街区肌理产生对话。化解小剧场大空间的尺度感,用折叠起伏的屋顶融入周边连绵山景环境。
新旧对话,空间多元共生在保留建筑基础上进行适度改造和加建,以原有场地庭院作为小剧场观众厅衔接新老建筑。保留原有建筑“间”的格局,墙体中部开洞,联通原本封闭的空间,形成共享的空间序列。
保留原有建筑的入口空间格局,作为观演厅入口,暗示空间属性在改造中的延续。观众厅利用钢结构在两侧撑起屋面,局部抬高部分成为天窗,侧向采光可兼具大厅的多功能使用。木制与砖的肌理,让内部空间要素具有特殊感知体验。
低碳建造,材料循环利用遵循低碳建造的理念,设计尽可能保留原有建筑的材料。将建造中临时拆除的部分屋架、望板、老砖进行循环利用,保留原有材料在建筑使用中形成独特的纹路。
U型结构设备墙,空间内外划分下的技术集约复合设计植入U型墙体,划分商业与剧场空间并作为结构部分支撑屋顶,同时整合暖通设备、水电管道集于设备墙的空腔内。在分割与清晰化空间属性的同时,集中设备于腔体内,服务内外两侧空间,加强了空间-结构-设备一体化的设计概念。
项目图纸
△区位分析图
△总平面图
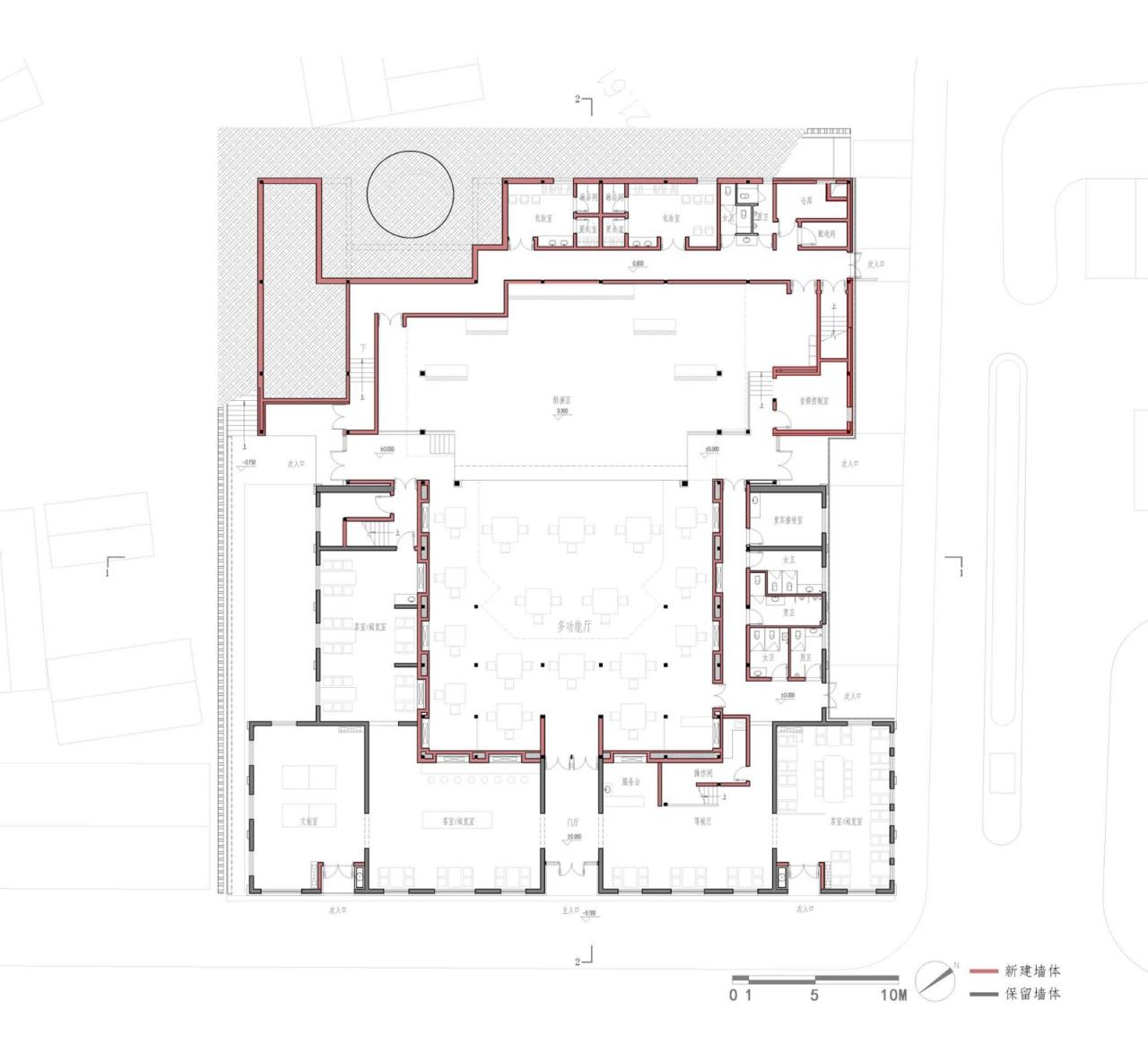
△一层平面图
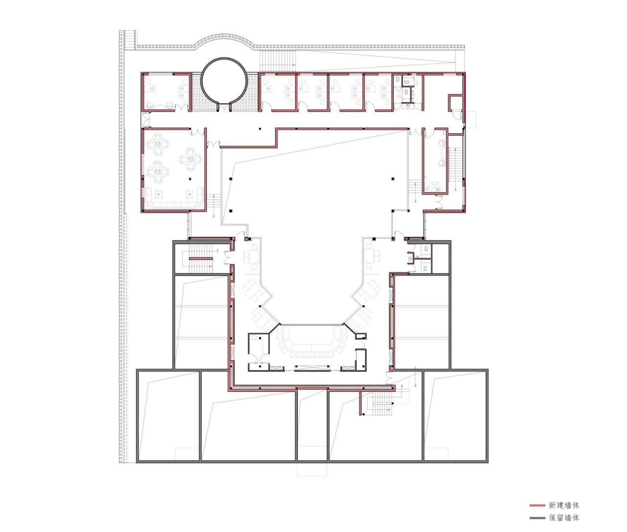
△二层平面图
△立面图
△剖面图
△剖透视
△分析图
△分析图
△分析图
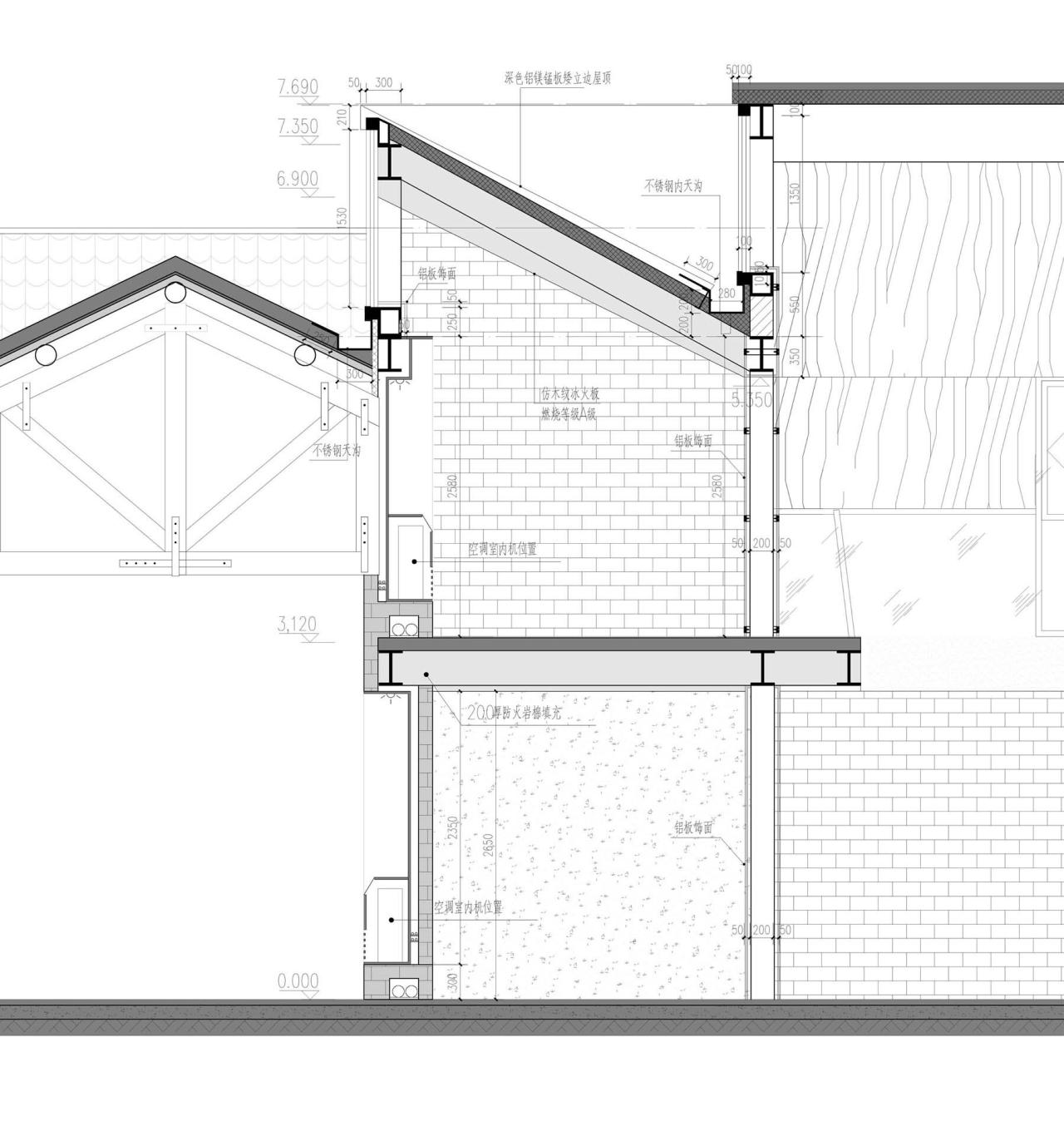
△细部大样图
△原始建筑图片
△原始建筑图片
△原始建筑图片
△原始建筑图片
△原始建筑图片
项目信息
建筑师:东南大学建筑学院
面积 :1972m²
项目年份 :2022
摄影师 :时差影像
主创建筑师 :朱渊
设计团队 :王真逸、戴纬静、刘文军、范诚
景观设计 :朱渊、王真逸、戴纬静
结构设计 :江苏创安结构设计事务所有限公司 / 毛海斌、张皓、张文龙
施工方 :江苏蓝雁建设集团有限公司
合作方 :江苏美城建筑规划设计有限公司
委托方 :盱眙国有联合资产经营集团有限公司
地点 :淮安

BIM建筑网



































