海康威视成都科技园设计始于2017年,由华东建筑设计研究院有限公司创新中心第一总师团队和事业二部原创设计,历时五年,于2022年5月竣工并投入使用。本项目位于成都天府新区兴隆湖畔,用地面积约178 亩,总建筑面积35万平方米,是海康威视在西南地区规模最大的高科技产业园区。园区分东、西地块,包含四栋建筑,西地块包含一栋研发办公楼和一栋配套餐饮楼;东地块包含一栋研发办公楼和一栋综合配套楼。研发办公楼高7层,配套楼高2-3层。
科技园区公园化按照天府新区“公园城市,未来之城”的总体规划要求,设计提出“科技园区公园化”的规划理念,一方面为海康威视科技园提供公园中办公的人性化环境,另一方面,为天府新区提供了一座开放宜人的城市公园,一个“望得见山、看得见水、记得住乡愁”的都市范本。
管理层级物理化城市对开放园区的要求和企业对保密的需求,是一对天然的矛盾体,为平衡这一矛盾,我们为研发办公楼设计了“外环”和“内环”两道界面,在“外环”与配套设施之间设计了公共的绿化景观,形成了可达性高、可见性好的开放园区。 “内环”则形成了封闭独立的内部园林,仅供企业员工独享。
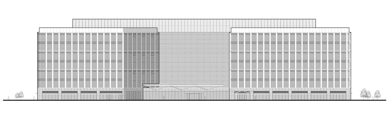
建筑外观精细化本项目分为研发办公楼和配套楼两种建筑类型,立面设计与建筑的类型相匹配。两栋研发办公楼立面呈现三段式构图:首层为石材壁柱基座,体现建筑的稳重大方;办公标准层为锯齿型玻璃幕墙,每三个锯齿单元对应着一个结构柱跨,每个锯齿窗都对应工位的布置,让员工获得舒适而且实用的体验。锯齿窗正面为落地固定窗,通透开放。侧面为铝板开启扇,实用隐蔽;顶部设备层彩釉玻璃围挡,将屋面设备集中到规定的区域,同时为打造第五立面提供良好的条件。
综合配套楼,同样采用了三段式构图,中段采用了锯齿状幕墙,暖黄色陶板与玻璃结合,形成园区的点缀,打破了园区建筑严肃的氛围,为“公园城市”增添一抹暖意。
研发办公高效化研发办公区为四个办公单元,相互联接形成一个口字型的办公组团。位于同一楼层的四个办公单元之间可以通过空中连桥来联系,不必通过楼电梯往返,从而提高了办公效率。相对于多栋的独立式办公楼而言,“四联方”将更加方便,也增强了每个部门之间的可达性和交流意愿。同时,四组连桥通过屋顶桁架形成吊挂式结构,在首层形成面宽25m的无柱大堂,创造震撼的空间体验。
员工体验人性化每个办公单元均为口字型布局,优势是获得更小的办公进深,更多的自然采光和通风以及更多靠窗的座位。每个办公单元中,都设置一个两层通高的办公边庭,通过螺旋楼梯加强不同部门之间的交流联络。除此之外,建筑的卫生间、楼梯间和电梯厅也都是自然采光,充分体现了企业对员工的关怀。
高差过渡自然化设计巧妙利用东西地块大约8米的高差,通过穿越集萃街的地下通道,将西地块的地下一层与东地块的地面层连接到一起,并将东地块贴近集萃街的园区配套建筑设计成半地下的地景景观建筑,将东地块的人行广场与绿化景观与配套建筑的屋面巧妙结合起来,也完成了场地高差的自然过渡,成为海康威视成都科技园的另一设计亮点。本项目整体采用BIM正做的设计方式,信息化的REVIT模型保证了设计的高精度和施工的完成度。荣获中勘协第十届“创新杯”建筑信息模型(BIM)应用大赛科研办公类BIM应用第二名。
项目图纸
△手绘鸟瞰图
△轴测图
△总平面图
△左:地下一层平面图 右:一层平面图
△左:一层平面图 右:二层平面图
△左:二层平面图 右:三层平面图
△剖透视
△立面图
△立面图
△立面图
△立面图
△手绘细部大样图
项目信息
建筑师:ECADI
面积 :350000m²
项目年份 :2022
摄影师 :章鱼见筑
厂家 : 上海耀皮工程玻璃有限公司,四川昕泰装饰材料有限公司,瑞高(浙江)建筑系统有限公司,莱州市侨磊石材有限责任公司
项目总负责人 :向上、尹尼
设计团队 :顾斐、蔡一鸣、乔力、郜爽、张今彦、练玲玲、朱栩萱、姜智、周健、常青
结构团队 :朱莹、张雪峰、田宇、王一帆、朱浩然、陈小燕
机电团队 :王磊、俞嘉青、赵竟博、秦育、王华星、郑君浩、郭惠、翟月娇、蒋增辉、任怡旻、常谦翔、唐国丞、钱观荣、江涛、温勇萍、赵丽花、方飞翔、王珏、万嘉凤、范宇萍、杨立、沈艳琳、高峰、盛安风
Client :Chengdu Hikvision Digital Technology Co., Ltd
地点 :成都

BIM建筑网










































