01 项目概况
项目位于佛山市三水区内环南路,定位为民宿精品酒店,总建筑面积8069㎡。北接三水云东海森林公园,东靠云东海国家湿地公园,环境优美,自然资源丰富,是东海旅游经济区的重要组成部分。基地西侧为学校,南侧为医院,北侧为住宅,交通便利,配套资源丰富。
我们希望在城市之中建立一个闲适轻松的空间,通过对建筑的细致打磨,营造出闲逸的氛围。使建筑成为人与人、人与自然沟通的桥梁,将人与城市工作剥离,慢下来静下来,体验自然、体会生活。
采用现代设计语言构筑一个与天地自然相联系的建筑空间,以建筑回应环境关系,成为与自然相融合的契机。注重人与景观环境的共生,为居住者与自然建立起沟通的桥梁,创造自然、人、环境融合的高质量的生活空间,实现与自然的对话。
02 建筑设计
通过建筑造型巧妙地将零碎体块咬合错叠,虚实交织而延续,塑造出峰峦起伏的天际线。呼应灵动的抽象形态,结合自然水流渗透,蜿蜒交织而成,体现刚柔并济之美。
立面风格简洁现代,精致静逸,几何的表达、阶梯状流线的空间感、精致的艺术涵养与美感流露于只言片语。秉承精工技艺雕琢艺术的纯粹之美,用现代结合新中式手法创新造型设计。建筑与线条,光影互动,形成自由流淌的艺术空间,营造出静谧轻松的度假空间。
建筑主体采用浅色涂料,恬淡朴素,使建筑轻盈,不沉闷。窗间用挺拔的深色铝板加以提炼概括,并点缀格栅,虚实结合,突出重点。
当仿石涂料遇上深色铝板,自然的肌理与硬朗钢板相互碰撞,现代文明与自然环境的融合,让人感受城市中的自然魅力。提炼简洁的饰线,以深色金属漆收边,去除复杂的装饰构件与线脚,使理性与感性相映成画。
03 内外空间
景观追求清纯自然的风格,创造出一种简朴、清宁的致美境界,让心灵感受到城市绿洲的宁静。
灰空间淡化内外空间的界限,居住者可感受到建筑柔性,营造「慢生活」美学空间。用独立的庭院,打造独属自己的一方天地。
把对光、影、风、植物以及人文的思辨融入到室内设计中,借用「虚实相生」的东方意境,营造既有中式韵味又融合现代艺术美学的空间,创造出一种安宁、谦逊的自然精神。
返璞归真,剔除多余的奢华,通过材质的对比、尺度的掌控,表达出温润和有人情味的生活气息,给予人们质朴、亲切的感受。
04 BIM&智能化设计
为使建筑在落地时完美呈现“蜿蜒交织”的设计立意与刚柔并济的立面体系,设计中使用全专业数字化设计,通过BIM正向设计强化各专业协同。在施工图设计阶段,利用BIM模型三维可视化的特点,真正做到加工图数据自动生成和检查的全过程BIM设计施工深化流程,保证了项目落地与设计的一致性。
同时,通过智能化设计实现酒店管理和服务的信息化,基于住客个性化需求、提高酒店管理和服务的品质、效能和满意度。通过预制定的能源管控策略提升设备运行效率更进一步达到低碳节能减排的效果,采用AI技术、云计算、大数据等多种技术手段实现酒店资源与社会资源共享与有效利用的管理。
项目图纸
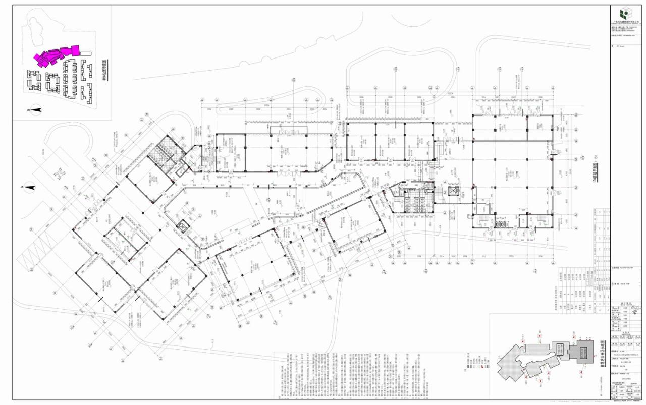
△总平面图
△一层平面图
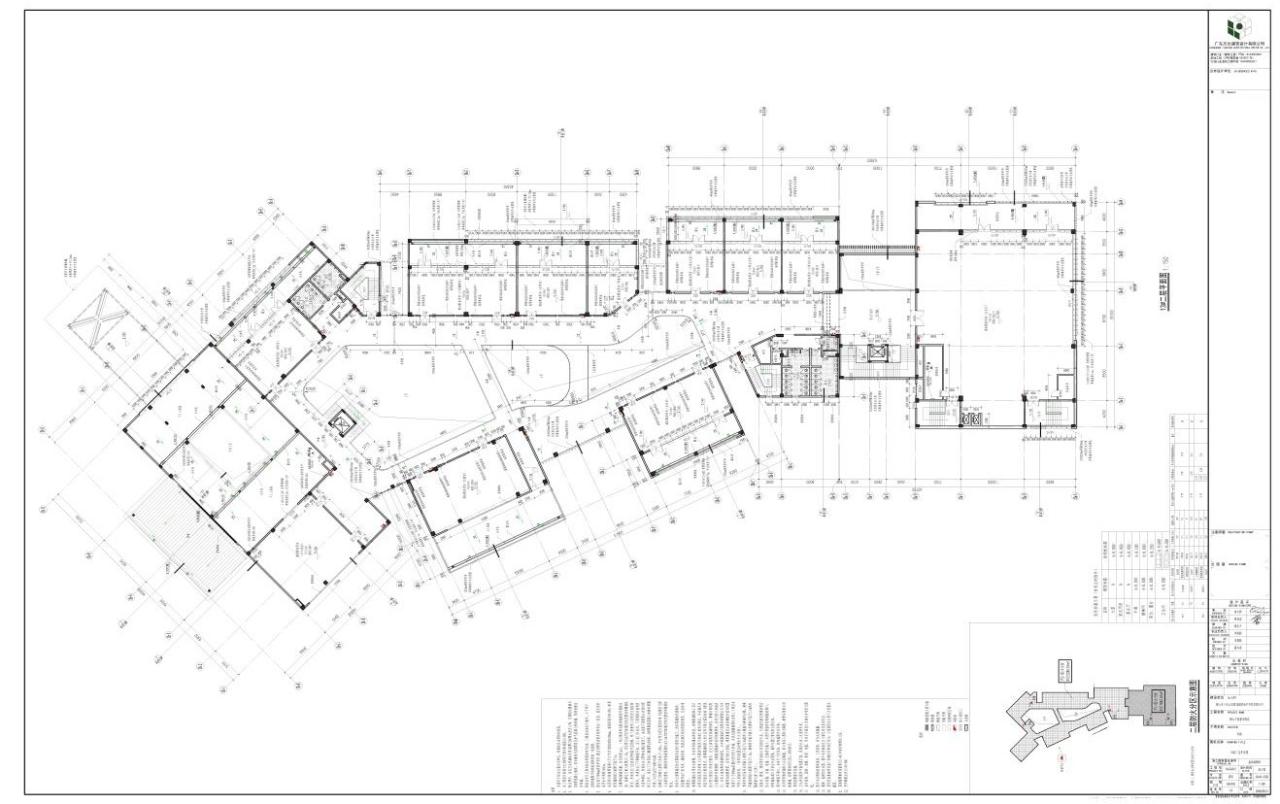
△二层平面图
△三层平面图
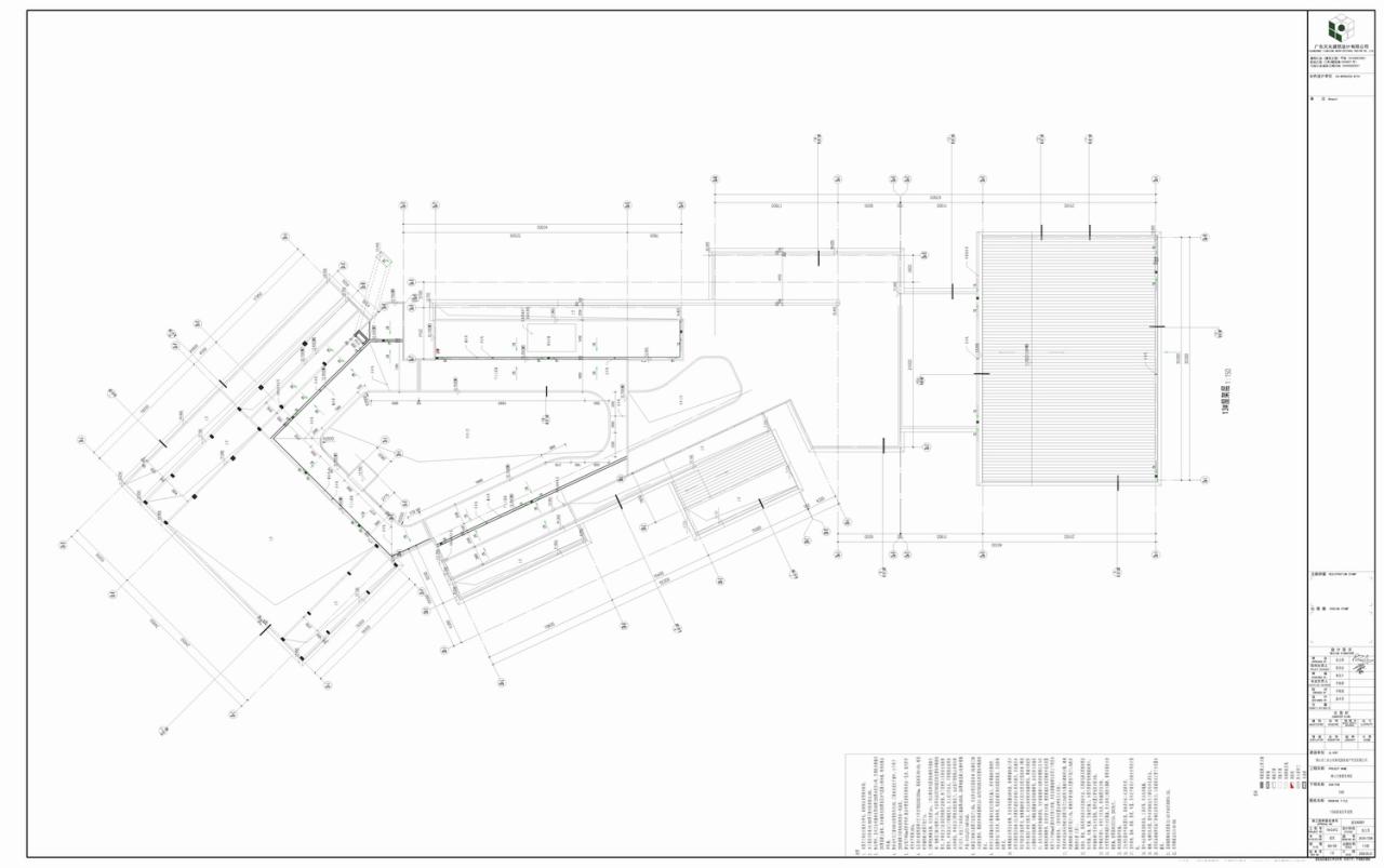
△屋架层平面图
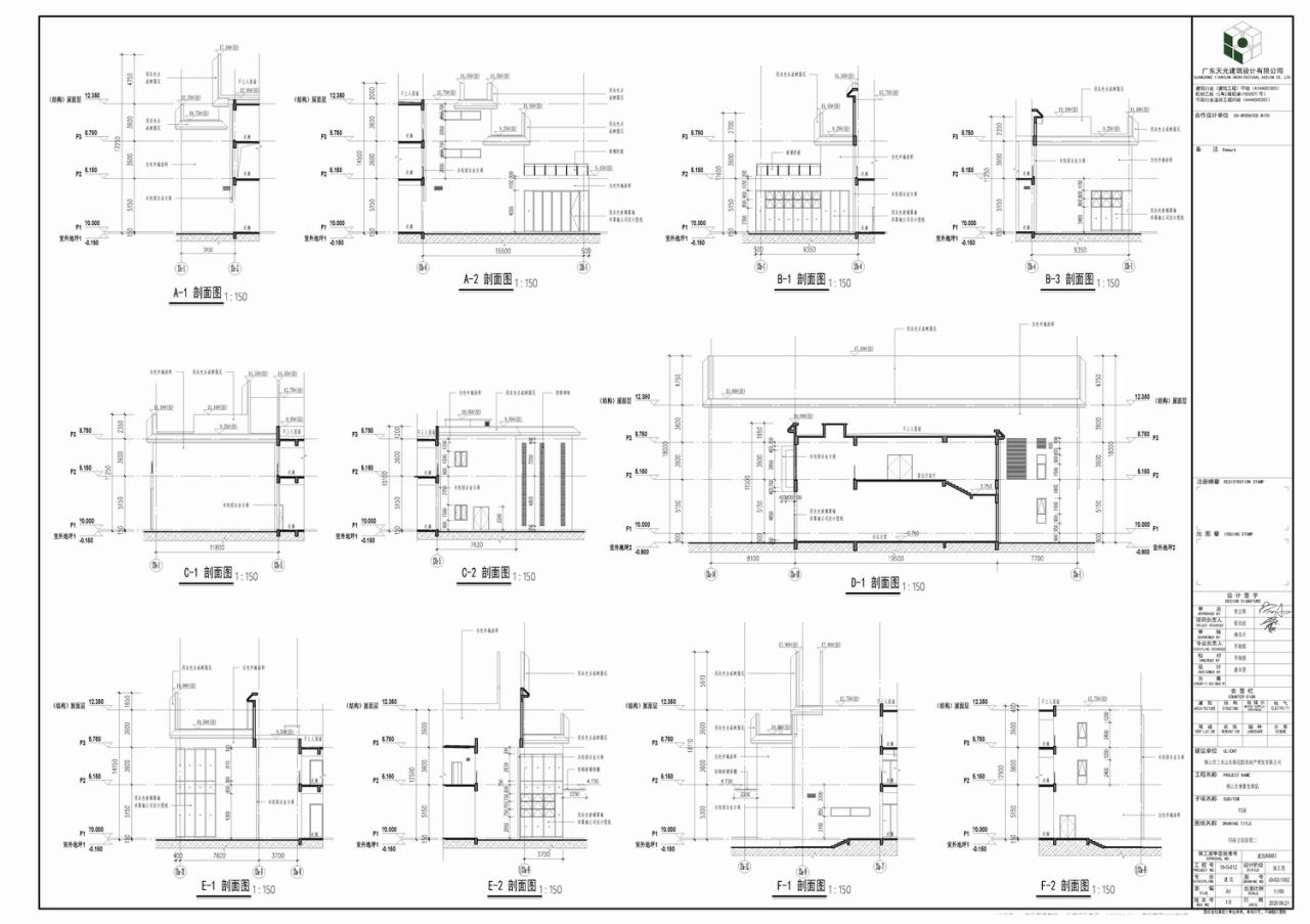
△立面图、剖面图
△剖面图
项目信息
项目名称:山水庄园酒店(美的山水庄园酒店地块项目)
项目地点:广东省佛山市三水区
设计单位:广东天元建筑设计有限公司(睿住天元)
设计内容:建筑设计 BIM正向设计 景观设计 智能化设计
建筑设计:睿住天元 方案综合创新所
建筑施工图:睿住天元 BIM创新所 土建综合所
景观设计:睿住天元 景观设计所
智能化设计:睿住天元智能化创新所
业主单位:佛山市三水云东海花园房地产开发有限公司
用地面积:6.67万㎡
建筑面积:3.16万㎡
设计时间:2019年06月-2020年09月
建成时间:2022年01月

BIM建筑网































