我觉得人总会遇到各种事情,时间会治愈他们。
—— 《咖啡公社》
Wutopia Lab设计的上海历史博物馆满坡栗咖啡馆,于2023年2月在博物馆西楼一楼落成开放。
▲视频© CreatAR Images
咖啡,上海
上海有世界上最多的咖啡馆,你可以找到日式,韩式,美式,台式或者东南亚的咖啡馆,甚至在永康路上还可以发现一间破败但还维持骄傲的80年代台湾日式咖啡馆,但就是没有上海的咖啡馆。不过上海的咖啡馆历史却很悠久,张爱玲1945年发表在《天地》杂志上的《双声》一文,打头便讲自己同好友出门,不论干什么,最后的终点大抵找一家咖啡馆。那时的上海咖啡馆是城市中的“公共空间”,提供咖啡点心之余,它可以是舞厅,可以是会议室,也可以是图书馆,是上海的信息中心,是日常的社交场所。
“作为人 作为人 真是不错啊”
▲项目概览© CreatAR Images
咖啡,广场
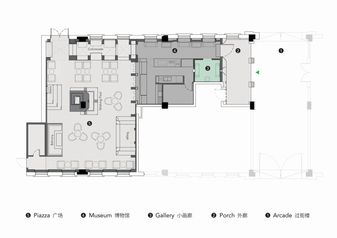
咖啡馆平面是一个刀把型。文物局要求不得改动外立面。加之西楼是原跑马厅的马厩,所以立面的窗子都是高窗而且要求都是磨砂玻璃,这造成室内采光不足同时无法把室外的风景引入室内。
▲分析图© Wutopia Lab
咖啡馆被封印在西楼一楼里。我突然想,如果我把外墙内立面看成外立面,那么咖啡馆的主要空间就不是室外了吗?我把失去风景的注意力转移到室内,这样的室内室外化的处理可以解除封印。
▲咖啡馆被封印在西楼一楼里© CreatAR Images
▲外立面细部© CreatAR Images
▲前厅被转化为灰空间© CreatAR Images
那么室内中心应该是啥,要知道中心还有一根巨大的柱子。最具社交性的场所在城市类型中是欧洲的小广场。我决定参考《建筑模式语言》,用各种建筑部件组合成一个抽象的广场植入西楼一楼的室内而创造一个欢快的社交场所,一个上海的咖啡馆。
▲中心的巨大柱子© CreatAR Images
▲欧洲小广场似的社交氛围© CreatAR Images
▲中央的柱子改成带有许愿池的纪念碑© CreatAR Images
中央的柱子改成带有许愿池的纪念碑,背后刻有我的小说片段。围绕着它,有台阶,柱廊,带壁炉的舞台,作为阳台的玻璃包厢。可以有鲜花,咖啡,一点酒,爱情,八卦,宠物,脱口秀,突然一曲阿尔罕布拉宫的回忆以及即兴的探戈。喧闹,欢快以及隐藏的嫉妒。
“昨天不过是今天的回忆,明天不过是今天的梦想。”
▲许愿池© CreatAR Images
▲台阶与作为阳台的玻璃包厢© CreatAR Images
一段微型城市
顾客从黄陂南路过街楼进入,原先需要从咖啡馆和公共卫生间公用的前厅抵达咖啡馆,我们决定拆除三扇玻璃门,把前厅变成灰空间,一个呼应室内广场柱廊的外廊。由此推开大门上几步进入被称为博物馆的咖啡馆吧台区。黑色的吧台区是刀把的把手部分,服务空间占去主要面积。我们把过道变成展览区和散座。大门的一侧是是用绿色手工砖打造的一个外卖等候区,同时也是一个和上海历史博物馆合作的小型画廊,你会惊喜地看到外卖咖啡会从一个暗藏的画框中递出来。
▲过道转化成展览区和散© CreatAR Images
▲绿色手工砖打造的外卖等候区© CreatAR Images
博物馆的尽头是一道不锈钢推拉门,门后是白色柱廊。柱廊地坪和博物馆一样被抬高,这样一来,高窗就变成正常尺度的窗户。从柱廊拾阶而下,就是那白色的广场。站在广场回望,黑色的吧台嵌在白色的柱廊里,我在那里给我留了一个可以躲起来喝一杯旁观广场喜剧的位子。而沿外墙的柱廊放满了低矮的沙发,那是我在伊斯坦布尔的水烟咖啡馆里的印象改写。阳光下,慵懒在柱廊里的烟雾缭绕,生活无非就是这么一些。
▲白色柱廊© CreatAR Images
▲柱廊地坪和博物馆一样被抬高© CreatAR Images
满坡栗咖啡,从柱廊进入带展厅的博物馆再走到带柱廊的广场。它就是我设想的微型城市的一个片段。把它,这个Piazza in a room放大100倍,就是我理想的城市—上海。
“Nobody learns without getting it won.”
▲由广场看柱廊© CreatAR Images
我要一点装饰
但我的上海不是那种极简主义的上海。她需要一些很节制装饰,是关于记忆和象征的符号。入口敞廊的地面中间镶嵌的是翻修时发现的当年马厩的地砖。在镶嵌黑色吧台的柱廊拱券上还能看到纪念马厩的马蹄铁符号。黑色的博物馆里的高护墙板、珐琅地砖、拼花地板和绿色手工砖在塑造一种真实又不真实的记忆中的上海。而设计灵感来自于咖啡果的彩绘玻璃天花则把这种记忆戏剧化了。
▲由座位区看柱廊拱券中的黑色吧台© CreatAR Images
▲舞台区© CreatAR Images
▲座位区© CreatAR Images
装饰也来自于材料,我用黑色木材覆盖了吧台区,用白色石材覆盖了入口敞廊和广场。地面都是白色石材镶拼的弹格路地坪。石材转角包括壁龛都做了连续的折角处理。入口的地面壁龛有着蜡烛,而视线所及的壁龛其实是洞口,隐约可见绿色外卖区和背后的黑色吧台以及白色的纪念碑。这很不建筑师,但装饰从来不是罪恶,是我们需要满足自己的一点小意义。
“Because we need a witness to our lives.”
▲由壁龛洞口可隐约看见绿色外卖区© CreatAR Images
Shall we dance
我是一个面临危机的中年男人,我在历史博物馆里创作的这个咖啡馆满足了我一个年轻时候的愿望,让役所广司或者艾尔帕西诺可以在这里即兴跳一段探戈。我端着香槟酒靠在台阶上有些微醺,台阶上的大门其实是个屏幕,让我的思绪能够穿越。好朋友舞蹈家周吉天,朱丽千在广场里的探戈让我回忆起那个充满可能性又勇敢的90年代。
▲咖啡馆中的舞蹈场景© CreatAR Images
▲柱廊为舞台提供了优雅的背景© CreatAR Images
Shall we dance?我不会跳舞,但我想和你笨拙而放恣地一舞,纪念碑上的天花永远是晴天,无论外面刮风下雨。
“All I want from you is another day.”
▲于柱廊中游走的舞者© CreatAR Images
▲由柱廊看广场中的舞者© CreatAR Images
这是我的上海
满坡栗咖啡馆可以展示日与夜交替的生活方式的城市,是我的某个上海的片段。我曾经一度失去对上海的信心,也因为在病床上挣扎而唉声叹气。可是当我推开厚重的黑色大门,那个熟悉而勇敢的上海扑面而来。嗯,上海一直活着。
“Sometimes if you love someone, you gotta be strangers to them”
▲室外细部© CreatAR Images
莱昂纳德说,这就是生活的辛酸,而且我们不仅要忍受这种无意义,更要因为无意义而向生命喝彩。——《咖啡公社》
项目图纸
△平面图
△定制玻璃花窗图纸
项目信息
项目名称:Piazza in a room/上海历史博物馆满坡栗咖啡馆
设计公司:Wutopia Lab
主持建筑师:俞挺
项目建筑师:孙丽然
设计团队:况舟,潘大力,高博龙(实习)
深化公司:上海呈煜空间设计有限公司
设计团队:戴云峰,郭佳女,吴晓艳,赵如意,崔销销,王彬彬,马川川,张敏敏
照明顾问:张宸露,杜雨轩
材料顾问:孙静
摄影:CreatAR Images
舞蹈:周吉天,朱丽千
业主:福德速(上海)企业发展有限公司
施工单位:万江建设
施工团队:王丽洋(施工总监),陈卫明(项目经理),吴吉顺(队长)
项目地址:中国,上海,上海历史博物馆西楼
建筑面积:170㎡
竣工时间:2022.12

BIM建筑网
































