“我们所构想的未来教育新场景应当是知识、信息、活力相互交织的,共享性、多元性与复杂性相互包容的共同体。”——朱培栋
在当下这股校园建设的新浪潮中,校园建筑在建筑形制和空间范式上表现出了某种类型化特征——它们大多围绕线性的功能逻辑与日照、采光、间距等规范限定所展开,形成单元式、行列式、鱼骨式或院落式等常规布局。建筑师们作为教育资源与土地资源矛盾的解决者与新兴教育理念的践行者,正在不断地拓宽教育的边界和维度。基于来自校方的非传统教育理念的诉求、场地的客观条件限制和建筑师的自我反思,我们尝试在HIS杭州国际学校中提供一种新的解题思路——通过重新理解教育意义,实现以集约型用地和高效能空间为主要特征的、以共享与交流为空间主导的新教学场景构型。
01 新教学场景构型
——Education Hub(教育枢纽)
HIS杭州国际学校是最早进驻杭州的K-15国际学校,也是浙江省第一所只招收外籍及港澳台籍人士子女的学校,由美国国际教育基金会(IFS)负责建设和管理,2018年于钱塘江南麓的白马湖畔建设新校区,包含小学、初中、高中三个学部和独立的ECE幼教。
△总平面图©line+
△杭州国际学校鸟瞰©line+
选址为一处L型用地,与南北朝向呈约45度夹角,业主方要求主教学楼和幼儿园在地块内分开设置。在切除ECE幼教区域之后,紧张的用地使得如采用一般学校的常规布局,均受到日照间距等规范条件的多方掣肘,会对户外的活动空间和运动场地产生大幅度的挤压与限制,并面临功能或者是体验上的巨大缺失,而线性布局也会减少校园内师生动线的交集机会。
△典型校园布局©line+
△ 场地布局推敲©line+
新校区的建设要求满足多元文化背景和国际教育体系,除各年级段教室外,还包含创新实验室、2个体育馆、2个剧场、食堂、泳池、图书馆等公共活动空间。学校采用“走班制”教学模式,赋予学生自主权的同时,也产生大量走班择课时间的损耗。因此,如何围绕“效率”留出更多时间供学生进行课余的交流与活动成为设计的出发点。
另一方面,国际学校更注重学生的情感体验和开放交流的教育理念,以及素质教育与拓展活动并重的教学制度,均对校园的功能模块和教学场景产生了新的限定。
在前期与校方交谈和深入了解学生的学习生活后,我们意识到未来教学场景应该是活力交织的,鼓励孩子们自发性的交流互动,如同邻里社区一样融洽。如社会学家伊凡·伊里奇在《Deschooling Society(非学校化社会)》所言:学习存在于学习者与学习资源之间不断被建立起来的动态关系之中,包括与师者、伙伴、物质和环境。
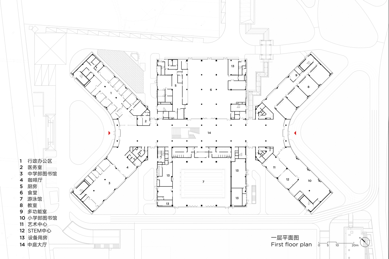
在面临紧张用地限制和多元混合使用需求的情况下,我们需要同时满足国际化教育理念和本土设计规范的要求。因此,我们尝试跳出传统校园构型,探索未来教育场景的新可能——“Education Hub(教育枢纽)”,以非线性、平台化的方式统筹整合教学空间要素,从而创造更为高效、共享、平等的学习体验;另一方面,综合体的形体策略以最紧凑的方式组织校园动线,满足国际学校全天候全气候的教学空间使用需求的同时,最大程度地释放户外场地。
在主教学楼中,我们将全校师生共享的活动空间置于集中式布局的中心,包括用餐、交流、表演、分享、体锻等,统筹进一个巨大的箱体体量中。在满足日照、排除遮挡、各年级独立划分的前提下,四支等长的教学组团与Hub枢纽空间呈45度斜角接驳相连,形成了功能场室围绕共享空间的向心集中式组合,更有利于公共活动的开展,鼓励聚集,促进交流。幼儿园建筑以用于集散、游戏、娱教的共享空间为放射中心,并在室外形成了面向四个不同界面的活动场所。
△对学校建筑进行原型转译©line+
△主教学楼模型照
△主教学楼施工到投入使用
△宿舍楼施工到投入使用
02 空间体验即教育
——新场景与新体验
与此同时,我们通过强调内部空间的丰富性和流动性,通过营造符合不同年龄段学生行为模式的空间,激发他们对空间的探索欲与体验感,从而打开人与人、人与建筑,以及建筑与环境、教育与环境的关系。不定性的教学空间经由师生的自发使用和多义阐释,从而实现了以空间体验成就开放教育理念的设计初衷。
△一层轴测图 ©line+
| 作为社交平台的Hub枢纽
中庭楼梯是Hub枢纽的空间引导和组织者,同时与门厅大阶梯、教学组团内的廊道等串联成连贯的社交平台,为不同文化背景的师生们创造大量发生交集的机会。
△主教学楼长边剖轴测 ©line+
在矩形规整的方盒子体量中,通过交错、对话等形体变化,其结构本身也是具有趣味性的空间景观,打破冗长的流线,融入共享枢纽。
相似地,幼儿园的中庭楼梯采取类似滑梯的形式与环形走廊相连,在符合低幼儿童的游戏感中建立活动与交往平台。出于幼儿的使用安全及空间的整体性利用考虑,楼梯通过二三层的拉结建构,使得上部受拉下部受压,整体无立柱支撑。
△幼儿园剖轴测 ©line+
| 作为活动平台的Hub枢纽
Hub枢纽是一个由体育锻炼、游戏活动、观演排练、日常用餐等公共功能空间垂直叠放形成的“综合体”,各学部师生的流线在此汇集重叠,实现深度交流和共享。
与一般学校的课程安排不同,每天下午三点后是围绕Hub枢纽展开的社团活动时间,在与伙伴的相处、合作、竞争中成长,在作为主角的“舞台”上获得自信,亦是Hub枢纽的设计初衷。
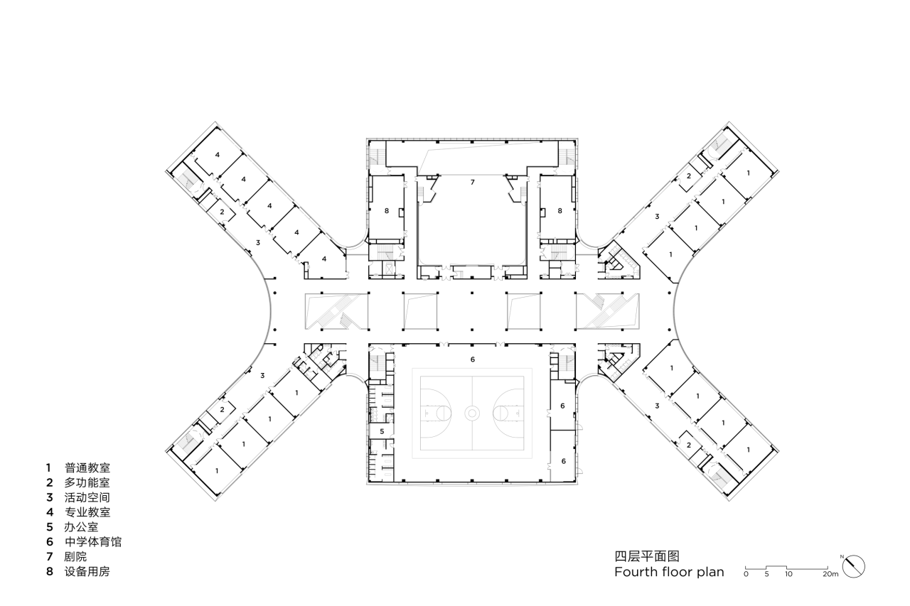
Hub枢纽的功能布局由中庭楼梯分隔成东西方向,分别容纳智识拓展的文艺表演和身体拓展的体育锻炼两组功能、六大体量,注重身心教育的均衡发展。
Hub枢纽的西部依次容纳25m*6泳道的游泳馆(1F)、小学体育馆(2-3F)和中学体育馆(4-5F)。体育馆的空间尺寸分别按照中小学生的身体尺度进行规划,其中,小学部体育馆在剖面上分离出一层室内活动室兼做室内看台。中学部体育馆含两个标准篮球场尺寸,以体育竞技为标准设计。
△游泳馆(1F)
△小学体育馆(2-3F)
△中学体育馆(4-5F)
小学体育馆通过空间合理划分、结构荷载计算,设置了灵活隔断,随着授课内容、活动形式的变化,体育馆可转化成全开放式、半开放式的空间,满足多样的非结构化教学活动场景。
△小学体育馆的不同使用状态
主教学楼的东西立面外窗采用横向穿孔外遮阳百叶,通过一定角度的翻折,形成光线的多次反射,保证体育馆内的光线充足和均匀柔和。
△体育馆立面光线分析 ©line+
△体育馆内充足均匀的光线©line+
Hub枢纽的东部依次容纳餐厅(1F)、黑匣子剧场(2-3F)和大剧院(3-5F)。大剧院在剖面上横跨三个楼层,满足正式演出、全体集会等活动标准,配备有化妆间、后台候场等。同时在观众席的斜面楼板下,收纳了一个可变的黑匣子剧场。
△餐厅(1F)
△黑匣子剧场(2-3F)
△大剧院(3-5F)
| 互融互通的教学组团
在主教学楼的四支教学组团中,南侧主要设置普通教室,获得最佳的采光和景观视野;北侧设置专业学科教室、行政办公、图书馆、实验室等辅助功能,彼此之间保持互融的交流关系。
△主教学楼一层平面©line+
设计仅在走廊的单侧设置教室,而在另一侧则留出4.2米宽的非结构化交往空间,创造出多个可以停留、发生活动的空间节点,以此激发偶遇和即兴的讨论,并与Hub枢纽保持通畅的可达性。正式与非正式的功能混合,催化出一系列教学行为的多样性,回应非线性教育理念的初衷。
教学组团的建筑立面通过对水平线的强调,采用银白色铝板和水晶灰玻璃,通过水平方向上的内凹折面,形成了极富未来感的现代建筑形象。
△主教学楼墙身大样©line+
幼儿园的建筑立面采用大面积落地窗及金属穿孔板等材料,为室内幼儿活动提供合适的采光。百叶和金属外墙的叠加,使建筑外立面产生在水平方向无限延展的视觉效果。
03 新教学空间原型实验
——中心放射式平面构型
Education Hub在HIS杭州国际学校所形成的中心放射式平面构型在过去常见于城市规划或博物馆、交通枢纽等建筑类型中,例如巴黎凯旋门、北京首都T3国际机场及大兴国际机场等,但在教育建筑中较为罕见。
△抽象提取枢纽建筑的空间原型©line+
在布局构型中,我们借鉴了现代枢纽类建筑灵活分区、配套共享等优势,以提高集约型用地的空间利用率和灵活度。枢纽建筑高效共享的空间体验和融合互通的空间感受,也为Education Hub(教育枢纽)的空间建构中提供了原型基础,继而我们根据学校建筑的功能逻辑、规模尺度等做适应性变体,以此回应新型教学空间的使用体验、效率和状态。
不同的是,传统的放射式构型往往会导向视觉或权利的中心,而在Education Hub中,我们将非传统教学主体的共享空间置于中心,以充满活动场景的“社交中心”取代“纪念碑”,以视线、信息和内容的多向互通取代“看与被看”的单向行为,转而创造一种去中心化的更为平等的校园师生关系。
△中心化的向心布局(图左),去中心化的向心布局(图右)©line+
Education Hub(教育枢纽)不仅是对未来教学场景的构想,同时也可以是一种适用于广泛集约型用地的教学空间原型——以有限的用地释放最大的开放活动空间,并创造更为高效、共享的校园新体验。
04 结语
历时近四年的设计和建设,HIS杭州国际学校在2022年8月迎来了超过50个国家的800名师生。在投入使用的半年中,我们常常在社交媒体上看到孩子们在不同空间中的活动场景,关于Education Hub的场景设想正因师生们的使用而逐渐鲜活。
我们期望这一次的空间原型试验能够产生积极的成效,帮助教育者们成就美好期冀,成为海内外孩子们梦想起飞的“小小机场”。
项目信息
△ 主教学楼二层平面 ©line+
△ 主教学楼四层平面 ©line+
△ 幼儿园一层平面 ©line+
△ 幼儿园二层平面 ©line+
△ 幼儿园三层平面 ©line+
△ 主教学楼剖面 ©line+
△ 主教学楼剖面 ©line+
项目信息
项目名称:杭州国际学校
设计单位:line+建筑事务所、gad
主持建筑师/项目主创:朱培栋
设计团队:孙啸宇、吴海文、黄芸婷、杜梦颖、杨霄御
结构机电设计:浙江绿城建筑设计有限公司
设计团队:姚开明、朱奇、沈晓东(结构)、沈晓伟、龚海、胡敏、钱子俊(给排水)、江涛、陈国平、曹俊(电气)、季明星、姚国财(暖通)
业主:杭州国际学校
幕墙顾问:浙江建工幕墙装饰有限公司
室内顾问:R+S (China),青岛时代建筑设计有限公司
景观顾问:上海天夏景观规划设计有限公司
市政顾问:浙江大学建筑设计研究院有限公司市政分院
装配化深化单位:上海研砼建筑设计有限公司
项目位置:浙江,杭州
建筑面积:49083.5㎡(地上)
设计时间:2018.06-2019.08
建造时间:2019.08-2022.08
结构:钢结构+钢筋混凝土框架结构
材料:铝板、水晶灰玻璃
摄影:苏圣亮、朱润资、line+

BIM建筑网



















































































