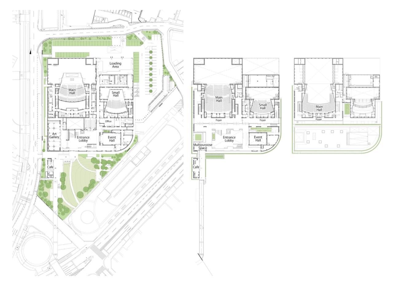
文化、艺术、绿色交织的空间枚方表演和视觉艺术中心位于日本大阪府枚方市中心,其距离大阪和京都有着 30 分钟的火车车程、距离枚方站 5 分钟步行时间。其中,三个馆和艺术馆被设计成一个文化、艺术、绿色交织的空间,并旨在创造一个可以受到市民喜爱的城市新地标。在外面,建筑前的广场上分布着文化与艺术空间,其中还包括了可以供市民们轻松聚会的草地、阴凉区和舞台。建筑内部空间的创造是基于建筑师对与外部世界间的空间连续性考量,建筑庭院和绿化屋檐构筑了一个拥有丰富自然和阳光的空间。建筑师希望内部和外部可以作为一个单一的综合空间,由此承载市民的艺术活动。
紧凑的大厅设计建筑师意在打造一个优雅精致的空间,由此与文化艺术中心之名相得益彰,同时也试图构筑一个易于人使用的空间尺寸。其中,相比于其他文化设施高耸的入口,枚方表演和视觉艺术中心的入口大堂和大厅的高度较低,并由此让游客有一种真实感。空间高度、走廊宽度、以及各个房间之间的距离设计也意在确保建筑内部的可见性和尺度亲密感。这一建筑的空间让人们能够感受到他人的活动以及丰富的绿色植物。其外观也减少了体量感,并仿佛静静地矗立在绿树丛中,由此给人以安全感,让任何人都可以自由地使用该设施并享受建筑前的广场空间。
室内与室外设计的功能性和美学结合室内、外使用的砖块皆被上釉,并有着四种不同的截面形式,由此实现了馆内何时能学环境的声音扩散及反射质地。建筑师希望在宽敞的大厅、木与砖构筑的入口等可以营造高品质的氛围,并希望这一建筑可以成为市民们充分享受艺术的地方。
辐射式空调及环境意识在如大厅等的大空间中,空调处理了大量的空气。因此,建筑需要采取措施以防止因高差造成的气流和温度分布不均。在这个项目中,大厅首次采用了辐射空调。座椅靠背、首层座位上方的天花板面、二层天花板高度较低的座椅后方均配置了散热板。辐射空调还必须为大厅提供最少量的室外空气。但是,建筑团队对设备进行了调整,使气流变得“不明显”。建筑师通过在设计阶段、实验室测试、及大样建造间的模拟确保了最终建筑中的热舒适度。
在完工后、实际演出时进行的问卷调查中,人们需要对空间进行评价,并由“舒适”、“一般舒适”、“正常”、“一般不适”、“不适”五个选择,而超过 95%的观众认为在其所在环境中感到“正常”或更好的“舒适”。
实心砖饰面创造的丰富声学共鸣大小两厅的基本形式设计确保了足够的早期反射声,并实现了舞台和观众席之间的平滑连续性和统一性。大厅的平面图和剖面是根据天花板高度和观众座位宽度的比例来决定的。主要反射面、声学反射器和座位区侧墙使用砖砌成,由此让空间具有足够的刚性,以此进行低频声音反射,并构筑了适当的表面粗糙度。为了增强声音的扩散,建筑师采用了多种砖块堆叠排列的形式。在主厅中,连续的檐状反射面从舞台延伸至观众席,由此增长了可反射声。活动厅也有着不平整的砖墙,由此避免了颤动回声。
小厅边缘使用了震动/隔音架构及伸缩缝,由此实现了大、小厅场地的高度隔音效果,并让这些空间在需要时可大声、可安静。小厅的墙体为砖砌,并既隔音、也隔振。在活动厅,一楼的窗口让其与入口大厅可以融为一体,而双层的移动隔墙、和入口/出口大门则为空间提供了充足的隔音效果。二层空间采用 15 毫米+15 毫米的夹层玻璃隔音。排练室位于主厅斜下方,并采用了隔音隔振结构。主厅散热板是在设计和施工的每个阶段中仔细的测试和检查后安装的,从而确保了空间即使在洪亮的音乐中也不会产生振动噪音。
项目信息
△平面图
△剖面图
△分析图
△分析图
项目信息
建筑师: 日建设计
面积: 13146 m²
项目年份: 2021
摄影师:Akira Ito
厂家: Fujiyogyo Co., Ltd, Oshirox Co. Ltd., SHOWA YOTAL Co., Ltd.
业主: 枚方市
建筑师: 日建设计
建造方: 前田建设工业
地点: 日本,枚方市

BIM建筑网






















