本项目为博世汽车部件(苏州)有限公司厂区内的第二座开敞式停车楼设计。在业主方设计部门的技术指导、使用方的经费支持和现场管理部门的协同控制下,我们得以将装配式设计理念贯彻始终,并以较高的项目完成度呈现出功能理性与技术美学的统一。
纯粹性与复杂性:功能-平面-构造简单的建筑形式提高了设计的容错率,建筑完成品质的控制成为本项目的难点。干净的平面布局和清晰的结构逻辑背后是精细的平面控制和特殊的构造节点处理。立体分流、隐私控制。作为工业厂区内的民用建筑,建筑师需要在有限空间中最大限度地利用土地,并保证各类汽车车行流线的通畅;特殊的构造节点处理。本项目采取了钢结构为主、混凝土为辅的混合结构,结构逻辑清晰但技术难度不小。
标准化与精细度:装配式设计理念的贯彻由于一层以上的每个楼层的平面布局除坡道外排布完全一致,建筑师与业主设计部在项目伊始共同商讨,确定执行装配式设计理念。对细节的专注是保证装配式项目完成度和统一性的基石。建筑师对设计细节的精细控制,保证了项目效果的整体性和连贯性。首先,选择合理经济且均等的柱跨;其次,精细化的设计,以保证施工实施的准确性。根据《江苏省装配式建筑综合评定标准》,本项目基本单元、构件标准化率达到100%;标准化预制构件应用比例达到95%。
开敞式与季相性:立面植物造景“凡四时之气,各置一境以领之”,苏州园林的营造不仅注重空间性,时序性的景观营造更是别具一格。本项目中,建筑师巧妙地借鉴苏州园林中“四时之景”的独特营造理念,通过立面植物造景赋予了建筑时令感。
在立体绿化的植物选择上,在常规的爬山虎(秋)之外,建筑师还精心挑选了具有季节特色的藤本植物,如紫藤、迎春花(春)、凌霄花(夏)等需要一定成长周期的植物以平衡植物的生长与对建筑功能的干扰,栽种于悬挑的预制花槽中,并设计以热镀锌钢丝拉索方便植物爬藤;而凤尾丝兰则被考虑放置于首层,以发挥植物的“绿篱”作用。错开层高线布置的预制花槽,在深色的建筑画布上勾勒出随四季变化的植物色块, “四时之景”为城市街景贡献了具有几何美感的“动态图画”。
长期合作与互相促进:发挥建筑师的主导作用中衡设计是博世集团在中国境内建筑邻域的重要合作伙伴。从1999年第一个博世中国项目至今,设计团队与业主建筑管理部门在近25年的长期合作中互相促进,共同营造了一批高品质建筑。反思博世集团系列项目高质量的原因,一方面在于业主从策划、设计、施工到运维的全生命周期综合研判而非低价取胜的评价标准,从而保证了设计需求的科学合理性、建筑品质和经济投入的平衡性。另一方面,更为重要的是,建筑师在项目全过程中积极发挥主导作用。
项目图纸
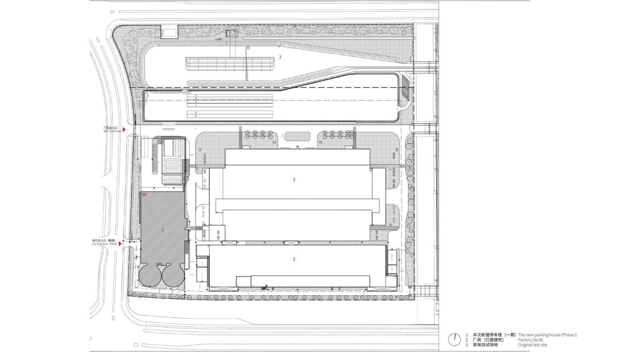
△总平面图
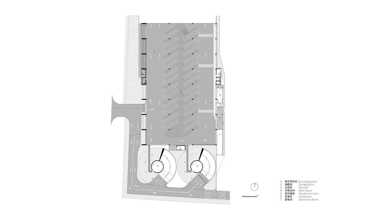
△一层平面图
△二层平面图
△三层平面图
△四层平面图
△立面图
△立面图
△剖面图
△分析图
△细部大样图
△细部大样图
项目信息
建筑师:中衡设计
面积:74296m²
项目年份:2019
摄影师:秦伟
厂家: MEA 米亚集团
主创建筑师:刘恬、赵海峰
设计团队:徐轶群、魏之豪
结构团队:路江龙、沈晓明、杨伟兴、王俊杰、白瑞芳
电气团队:韩愚拙、徐宽帝
暖通团队:朱勇军、嵇素雯
给排水团队:杨俊晨、郁捷
委托方:博世汽车部件(苏州)有限公司
地点:苏州

BIM建筑网






























