加夫列尔·加西亚·马尔克斯图书馆(Gabriel Garcia Marquez Library)位于巴塞罗那密集的城市节点,正是这种文脉背景使建筑的几何形状适应了环境条件,复制了巴塞罗那典型、也在这大都市周边地区一直存在的“倒角”城市肌理特征。
这座建筑如同一个坐落在高架广场上的雕塑实体,允许行人可以流畅地穿过街区的文化轴线。图书馆悬挑于空地之上,形成了一个门廊广场,另一侧是既有的参天大树。白色体量的四个倒角将人们的目光引向环境中的重要景点。这些切口使图书馆内部形成了舒适惬意的氛围,而木材是使用也为整体建筑提供了温暖极佳的美学魅力,并向外部穿传递出与巴塞罗那的城市规划保持一致的特性。
这座建筑就像一摞打开的书,书页被折叠和穿孔。每本“书”都是由面向不同方向的木板组成的密实结构。结构不仅定义了每个方向,空间的照明条件、其特征、功能布局及其与城市的联系也在设计考量中。
这种木结构具有一系列创新和吸引力的优势,使其成为发展我们建筑愿景的理想材料,通过减少碳足迹和温室气体排放来提高项目的可持续性,并通过工业化和预制加快了施工进程,使项目在时间和成本上大大受益。
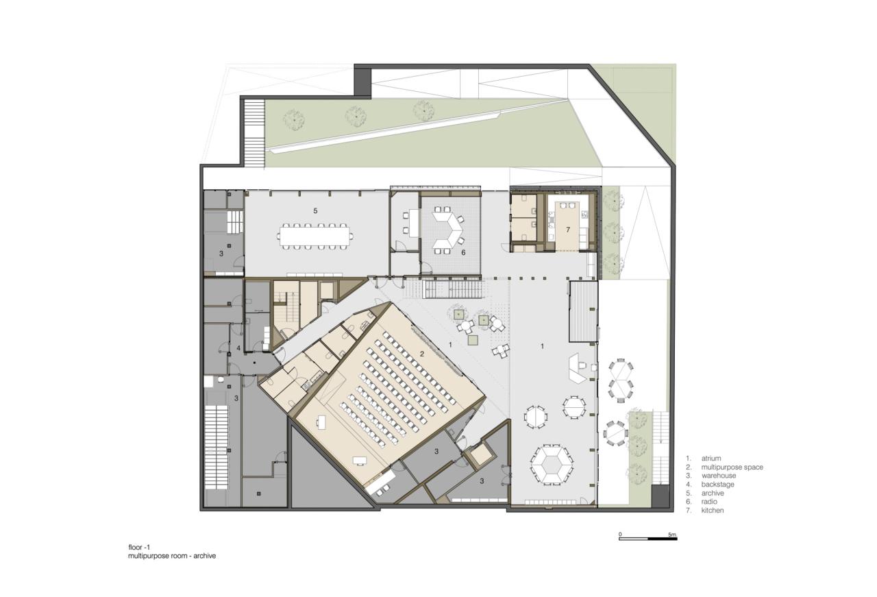
图书馆围绕着一个大型三角中庭展开,该庭院将所有功能用途与主楼梯连接起来。 这个巨型空间将自然光引入图书馆中心,改善了其照明条件,并充当了太阳能烟囱。这是一种在潮湿和炎热的环境中特别有效的被动式建筑设计,它吸收太阳辐射加热内部空气,空气向上移动到顶部换气,形成空气循环作为自然通风的方式。
该结构有三个胶合木板的垂直核心,图书馆的不同区域围绕这些核心有效地组织起来。其中两个核心呈三角形,包含了与内部庭院并排的楼梯和电梯。第三个核心是方形的,涵盖了洗手间和储藏区。沿着这些垂直核心,两种明显不同的空间类型交替发展,并由其功能明确定义分区。首先是根据照明和景观条件而采用密实木材和钢材混合结构的封闭式空间。这些空间专用于要求最严苛的声学活动,如多功能室、收音广播室、小组工作区、儿童区、内部工作区以及实验室。
在项目执行期间,建筑师根据研究计划在图书馆联盟的全面参与下为图书馆进行开发一个开创性的计划项目。SUMA 建筑事务所了解到图书馆是公共空间的典范,它已成为社会的催化剂和凝聚器。从建筑师的角度来看,它们的相关性不是基于它们容纳或能在其他任何地方发生的项目和活动,而是基于其独特的空间强度与生态系统的质量。因此,建筑师认为图书馆总体架构(结构、立面等)与家具、功能、藏品与用户紧密相连。
建筑的项目功能是紧密且动态的,因为它作为一个真正的“社会凝聚器”(social condenser),鼓励并促进信息体验、交流和知识生产的情况。马尔克斯图书馆提供了各种生态系统:在室外阶梯露台呼吸新鲜空气;在一楼的创意讨论空间聚会/会议;在地下层的可扩展多功能厅举办电视或戏剧性的仪式;在中央楼梯阅读或进行会议讨论等等。通过各种生态系统的组成,公共图书馆成为一个欢迎的空间,每个人都可以找到自己的位置和角落。图书馆是每个人的家。
项目图纸
△一层平面图
△负一层平面图
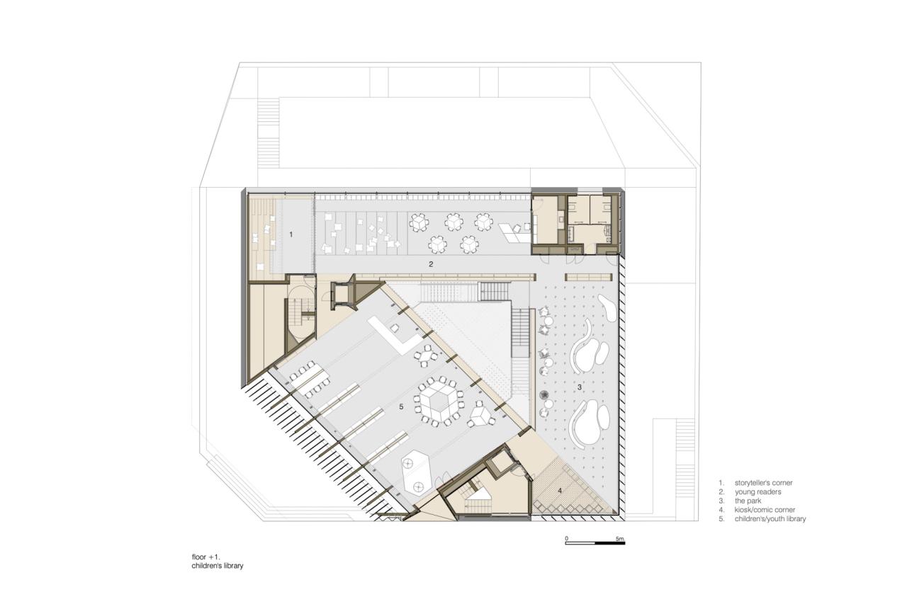
△二层平面图
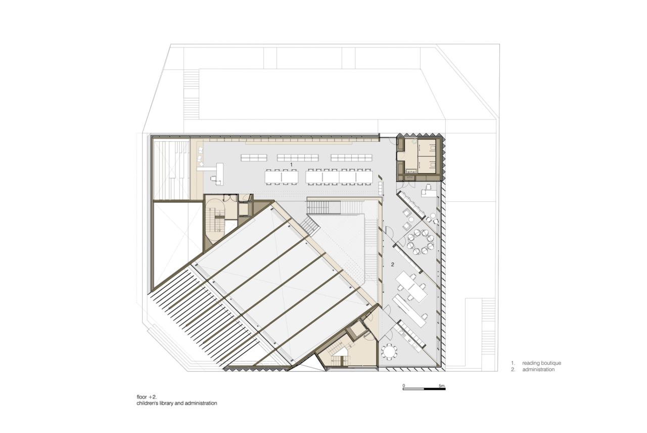
△三层平面图
△四层平面图
△立面图
△立面图
△立面图
△立面图
△剖面图
△剖面图
项目信息
建筑师: SUMA Arquitectura
面积: 4170 m²
项目年份: 2022
摄影师:Jesús Granada
厂家: B- deckt S.L, Binder Holz GmbH Wood Industry, Cristalería Martos , KLH, Metra Building , Nanotures S.L
设计团队: Marta Romero, Jesús Lopez, Luis Sierra, Ana Patricia Minguito, Pablo Corroto, María Abellán, Sara Contreras, Rita Álvarez Tabio, Miguel Ángel Maure
结构工程师: Miguel Nevado
委托方: BIMSA – Municipalidad de Barcelona
技术顾问: Nuria Sáiz
立面顾问: ENAR
执行: Antonio Yoldi, Miguel Ángel Orcalla MasterPlan
安装工程: M7 Ingenieros
景观: Julio Gonzalez
声学: Margarida ingeniería acústica
Ingeniería Eficiencia Energética Leed: CABA
寻路标牌: COMO design
承包商: UTE VIAS CRC – civil COBRA – instalaciones
地点: 西班牙,Barcelona

BIM建筑网























