场地初见
深圳环西丽湖绿道(一期)全长约3.5公里,在一级水源地保护范围外圈与各类城市用地间纵向延展。本项目的探索始于对这条线性压缩空间的一些放大的尝试。绿道的北段已然深入山林,在林地范围线、基本农田与水源保护范围线的空隙之中,我们发现了这片由一些杂乱工棚占据的硬质场地。场地侧旁有刚完成施工不久人工痕迹仍明显的截洪渠——燕清渠,以及一池废弃的鱼塘和几处残破的钓台遮阳棚。但破败粗放的现状与场地的潜力并存:爬至西侧山坳隆起处的工棚棚顶,我们发现可以远眺西丽湖水库一角;而顺着山坡上的的荔枝林北望可揽远处山形疏朗的阳台山,场地本身具有一种向内可沉浸其中、向外可同远景对话的可贵特质。
脉络导引选址于此的二级驿站,以“叠水问山”的创想,链接近远景致,将远景的西丽湖与阳台山通过视线引导纳入景观体系。多片薄水面屋顶从保留树木间层层叠落,使湖景一角与驿站本体与鱼塘的水面气韵相连,也使得原本支离破碎的山坡、水渠、鱼塘关联在了一起。步行路径可自鱼塘一畔起始,顺畅地越过水渠,穿过倒影着婆娑树影层层屋面的,最终于高点平台处远眺西丽湖,观景点与休闲空间穿插其中,形成空间场所与自然的对话。
场所融入设计在初始阶段即通过形态调整对场地原有乔木进行避让,在施工过程中,随着枝干位置的逐步确认,以及屋顶开洞的方式变化调整,实现了新的结构与老的树木相互嵌合,最终满足了一棵乔木都不能移动的要求。而在材质选择上,驿站提取在地元素如燕清渠护岸的毛石,整体通过素朴的石墙组织空间,与基地锚固。而顶部的水面则使用相对异质的轻薄钢结构,达到飘逸与消融的效果。
生境提升原有鱼塘以一圈硬质驳岸独立于自然环境的生态系统之外。而对其的改造包括软化驳岸,池底水下森林的营造以及近岸的植物配植与抛石等,在提升了静态湖水的生态品质的同时,也对整片区域的生境优化做出贡献。建筑屋面的层层跌水又为湖水提供了一套自循环的体系,在循环中的水体也能通过曝气作用达成一定的自净化效果。沿线新增的漫步道则采用手作步道的形式,面层不做硬化,形成更好的下渗系统。
问山叠水深圳市自然友好的城市理念一直是本案所希望传达和呈现的。在对静谧环境的介入过程中,我们期望能够做到自然与人文的高度相融。我们认为介入自然环境的理想姿态,既非一味退守也非冲突对立,而是能够通过巧思达到边界的消融与环境的升华。问山叠水驿在空间实体上提供着碧道休憩点、游客服务中心、公共卫生间与儿童自然课堂等的功能,而我们更期望的是,它能够激发来访者对自然的感知天赋,褪去都市生活的匆碌,在层层叠水之间触摸云影、洞见湖光、叩问远山。我们希望这次对环境的介入能够实现人与自然的升华。
项目图纸
△手绘设计图
△地下一层平面图
△一层平面图
△二层平面图
△三层平面图
△立面图
△立面图
△立面图
△立面图
△剖面图
△剖面图
△剖面图
△剖面图
△爆炸图
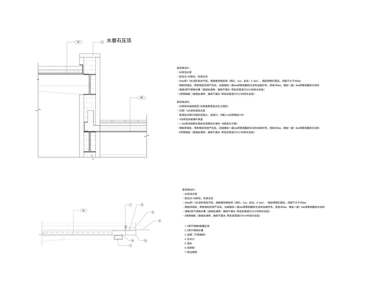
△细部大样图
项目信息
建筑师: 同济原作设计工作室
面积: 1596 m²
项目年份: 2022
摄影师:张超
主创建筑师: 章明、张姿、秦曙
设计团队: 羊青园、费凡、李雪峰
结构顾问: 王瑞,孙哈逊
景观施工图设计: 深圳翰博设计股份有限公司(秦操、黄俊勇、甘海涛、姚英豪、狄宏亮、肖育玲)
建筑施工图设计: 申都设计集团深圳分公司(陈国栋、陈静儿、常永贤、万励昆、尚双双、刘文涛)
钢结构深化设计: 柏涛国际工程设计顾问(深圳)有限公司(吴昀泽、高义奇、刘红星)
灯光顾问: 利亚德智慧科技集团有限公司(罗会胜、焦云雷、张泽)
施工方: 华润置地有限公司
业主: 深圳市南山区工务署
地点: 深圳

BIM建筑网





































