图书馆作为学校老校区内新建的大型建筑,设计将其以一种平和、简约、开放的形态,向校园展开。试图打造一个集学习研究、知识创新与休闲体验于一体的校园文化中心。
林中方舟建筑首层西侧面向坡地公园设计了一片绿化缓坡,延续了公园的景观,为学生提供了一片休憩、阅览、活动的坡地平台。建筑主体则以简洁的形态,如一方舟悬浮于草坡之上。
建筑立面采用数字模块化设计,主体GRC幕墙通过四个标准尺寸的幕墙单元,结合软件分析开窗布置和室内风压的关系,形成“有趣”且“有道理”的立面语言。单个GRC预制板块尺寸达到4.6mx1.5m。板块与外窗、保温防水等进行一体化设计安装,使外墙施工实现了快速装配。特殊设计的竖向肌理,在不同时间、不同方向有着不同的光影变化,与玻璃幕墙、仿锈板相互映衬,整体又富有细节。采用了透光混凝土技术设计了图书馆的名称,使馆名成为建筑的一部分。日间与建筑融为一体,夜景又有特殊的景观效果。
书山文林空间灵感来自于“书山有路勤为径”,室内以一个中庭和两个绿化庭院为核心,阅览空间围绕他们进行布置,形成景观内外渗透的“文林”空间。
中庭的阶梯式阅览空间,将书架与墙面、台阶进行一体化设计,营造一个多功能的休闲阅览交流区。在楼层之间设计了若干连续的直跑楼梯,组织出一条由首层通往顶层的求学之“径”。天窗通过磨砂玻璃和遮阳百叶的设计,将直射阳光转化为柔和的光线,引入室内,创造舒适宜人的阅读环境。
项目图纸
△总平面图
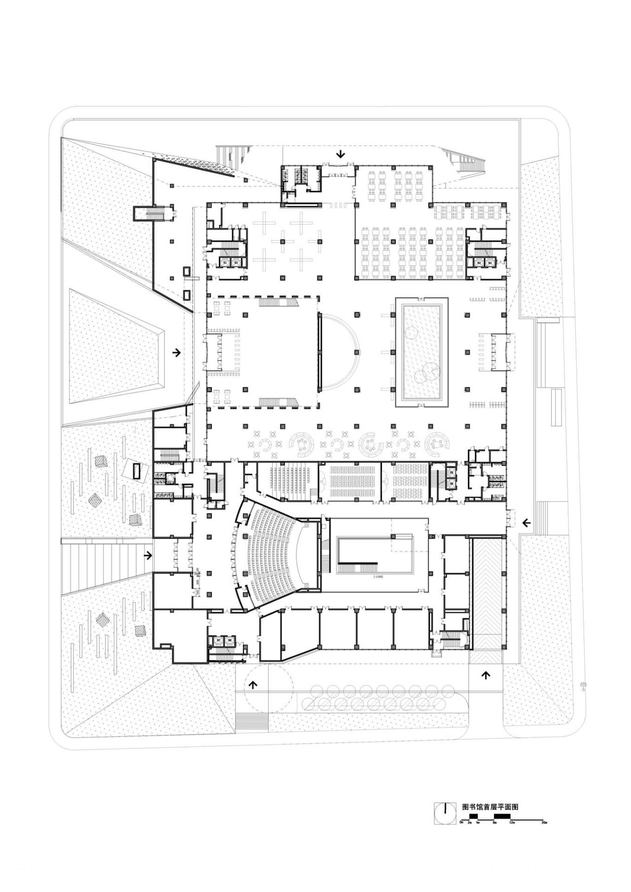
△一层平面图
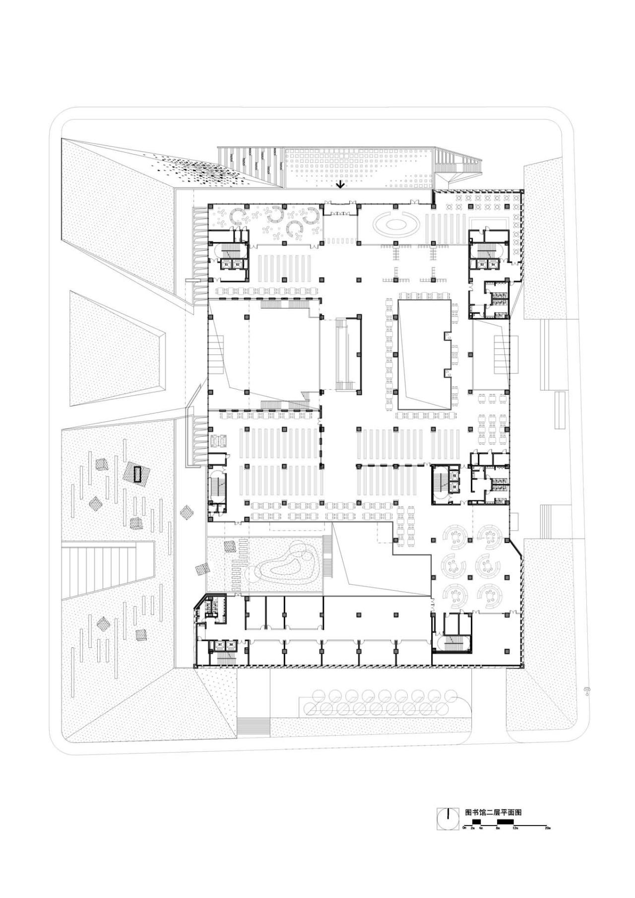
△二层平面图
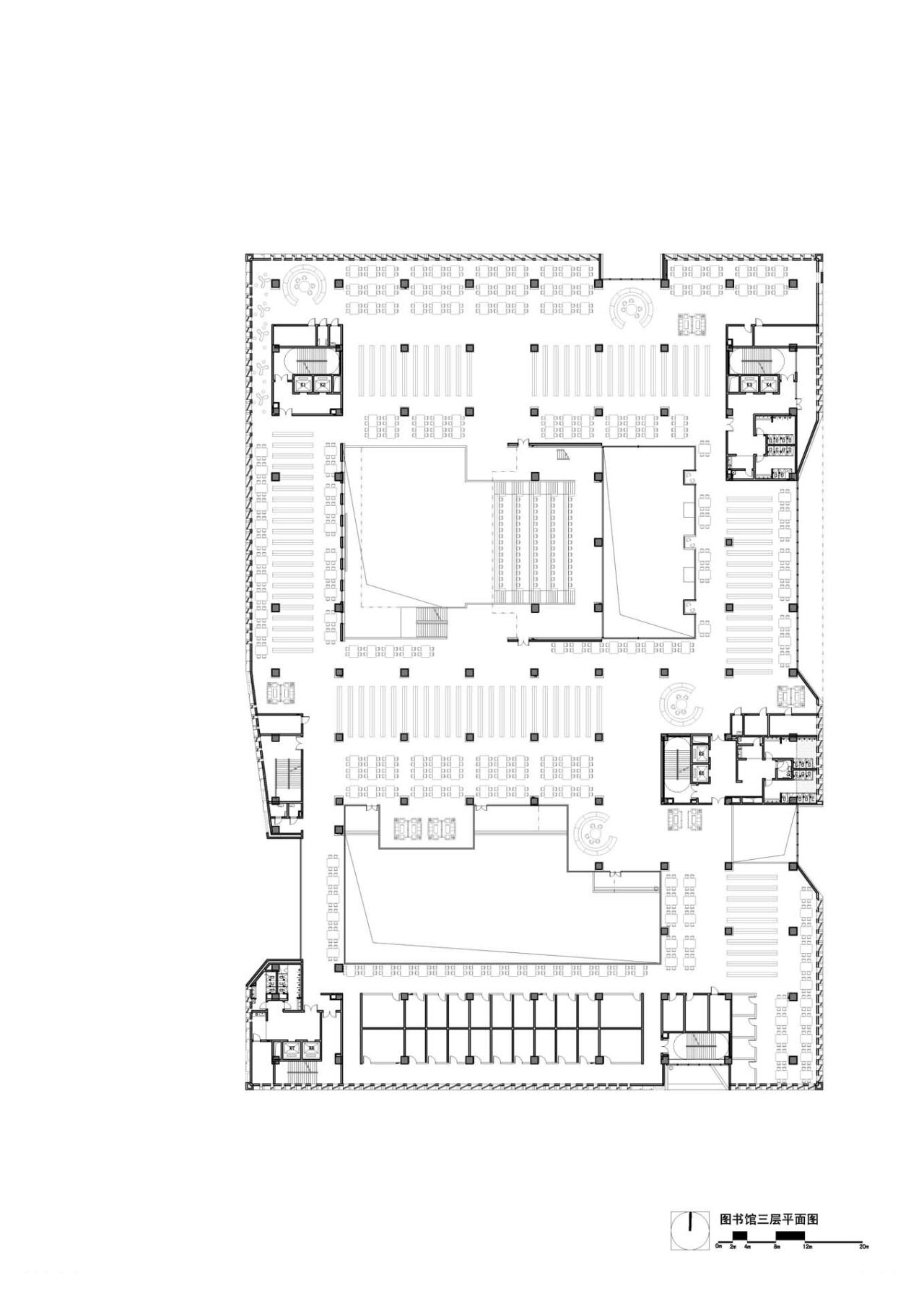
△三层平面图
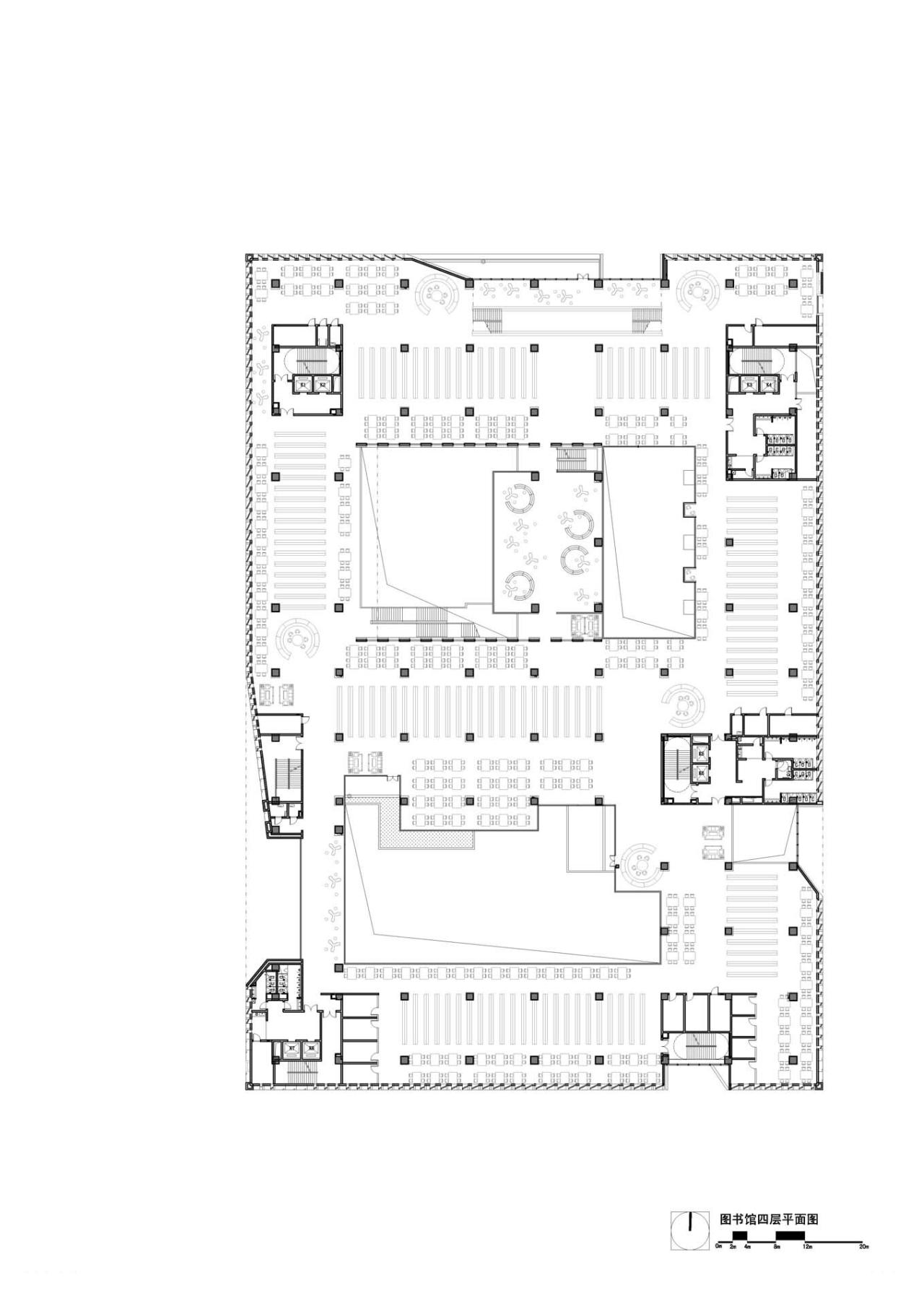
△四层平面图
△立面图
△剖面图
项目信息
建筑师:华南理工大学建筑设计研究院 陶郅工作室
面积:45157m²
项目年份:2022
摄影师:郭明,Baohong Sun, Gang Wang
厂家: Beijing Longyuan Decoration Material Co., Ltd.
主创建筑师:陶郅、陈坚
项目总负责:陶郅、陈坚、 郭钦恩
设计团队:陈坚、李岳、郭钦恩、陈子坚、郭嘉、陈健生、夏叶、龚程超、黄承杰、艾扬、曹若泠、琚豫婕
结构设计:王帆、牛喜山、孙向阳
室内设计:陈坚、 黄小青、李岳、郭钦恩
景观设计:陈坚、 李岳、李祖超
委托方:西北农林科技大学
地点:杨凌


BIM建筑网

























