这个四口之家的住宅项目位于东京市中心的人口稠密住宅区。委托人希望在这个场地上有一个宽敞的居住环境,虽然考虑到场地地形的高差、小型的地块面积以及遮阳规定等限制,但建筑师还是为他们营造出一个比想象中更开阔的空间。
通过在不同的区域加入错层,整体实现了一个具有连续性、水平差异和深度的立体式空间。在空间设计上,建筑师将重点放在开放式的内部,而不是向人口密集的住宅区开放。
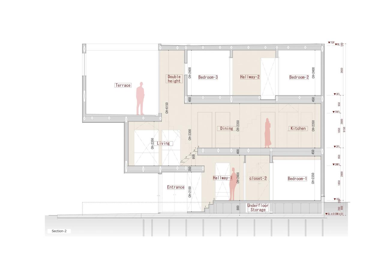
餐厅、客厅和露台都具有三维感,阳光通过天窗穿透室内,营造出超越实际空间的感官体验。
此外,错层设计形成了一个巨大的悬挑结构,创造了下方的停车位和阴凉区域,也成为邻里交流的催化剂,同时为市区提供了一个具有功能性与美学性的独特立面。
项目图纸
△一层平面图
△二层平面图
△三层平面图
△剖面图
△剖面图
项目信息
建筑师:International Royal Architecture
面积:121m²
项目年份:2021
摄影师:Nao Takahashi
厂家: KMEW Co.
主创建筑师:Akinori Kasegai
结构工程师:Tetsuya Tanaka Structural Engineers
施工承包商:Tanzawa koumuten Co., Ltd.
园林设计师:SOIL Co., Ltd.
地点:日本,Setagaya City
微信公众号:xuebim
关注建筑行业BIM发展、研究建筑新技术,汇集建筑前沿信息!
← 微信扫一扫,关注我们+

BIM建筑网


































