为适应合肥市场上商品房户型设计的变化,更加科学合理地落实装配式建筑发展激励政策,促进装配式建筑高质量发展,我局对《合肥市装配式建筑容积率奖励实施细则(试行)指引》进行修订。现向社会公开征求意见,有关单位和公众可通过以下途径和方式反馈意见。
联系人:张严玲,联系电话:0551-62061773
电子邮箱:236855055@qq.com
通讯地址:合肥市怀宁路1800号合肥市自然资源和规划局信息中心508,邮编:230071
意见建议也可通过市自然资源和规划局网站-互动交流-调查征集栏目留言。
意见反馈截止时间为2023年6月9日。
附件:《合肥市装配式建筑容积率奖励实施细则(试行)指引》(2023版)
合肥市自然资源和规划局
2023年6月2日
合肥市装配式建筑容积率奖励实施细则(试行)指引(2023版)
一、为适应合肥市场上商品房户型设计的变化,更加科学合理地落实装配式建筑发展激励政策,促进装配式建筑高质量发展。结合我市实际,修订本指引。
二、本指引适用于本市市区范围内装配式建筑装配率不低于50%的商品房项目。
三、容积率奖励指该部分建筑面积不计入地块容积率,奖励上限最大不得超过建筑单体地上建筑面积的3%。
四、本指引所涉及容积率奖励的具体位置为:
1.外墙范围内的预制承重墙和预制非承重墙。预制构件拆分图应明确图例表达,各构件的填充应与图例一致。
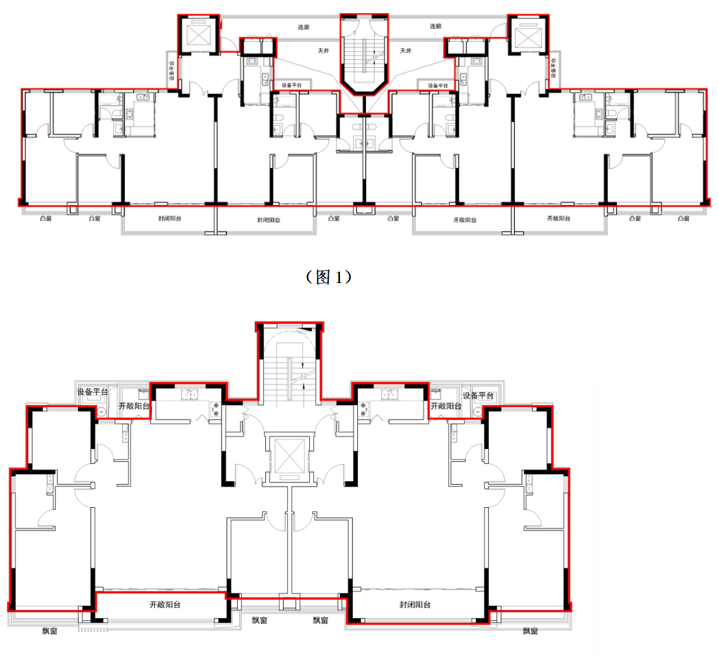
注:图1示意含有主体结构外阳台设计的建筑单体外墙范围。图2示意含有主体结构内阳台设计的建筑单体外墙范围。图3和图4示意无阳台设计时,建筑单体的外墙范围。
2.预制剪力墙板之间宽度不大于600mm的竖向现浇段;
注:对于宽度不大于600mm的竖向现浇段参照《合肥市装配式建筑装配率计算方法(2020版)》中的规定。针对(d)图中的L型现浇段,外墙部分计入奖励(图5红框示意),伸入内墙的墙支不计入奖励。
3.整体预制飘窗内侧窗下墙;
注:整体飘窗如下图3所示。内侧窗下墙(图6中红框部分)预制不利于现场灌浆施工及支撑安全。因飘窗本身不计建筑面积,要求内侧窗台下侧墙体预制才能享受奖励不利于装配式建筑的实施。因此对于整体预制飘窗,内侧窗下墙采用混凝土现浇也可计入容积率奖励。
五、架空层处交通核,此处构件非标准化,模具利用率低,不建议预制。因此架空层中交通核处的预制填充墙不计入容积率奖励范围(图7)。
六、本指引自2023年*月*日期施行。本规定施行前已取得《国有建设用地使用权出让合同》的建设项目可沿用原规则。

BIM建筑网



