你脚下的地面,是另一个深邃世界的屋顶”——《大地之下》
Wutopia Lab设计的砼殿,即伪满皇宫博物院(长春)之博物馆之眼艺术宫,吉林第一个饰面清水混凝土建筑,东三省最大的清水混凝土建筑,也是中国最大的双曲面异形薄壳大跨覆土地下建筑,经过6年的设计施工于2023年5月18日国际博物馆日正式落成启用。
△入口大厅
△入口大厅
△地下二层通高展厅(南侧)
2017年5月1日前1日,选了20多轮方案未果而筋疲力尽的博物院王院长找到我,希望我能给出一个能够代表长春的有说服力的方案。我的职业生涯总是重复着类似救急的故事。而我乐意接受挑战,长春对我而言是个陌生而遥远的城市。我试图对这个城市的吉光片羽中着手。
碎片:象征,隐喻,对偶以及其他
长春曾经是东亚最发达的城市。现在长春依然是个重要的工业中心,也曾经“格外地风雅,盛养君子兰”。这个城市骨子里自豪,还洋溢着一种乐观主义,并不愿意躺平。
伪满皇宫占地并不大,以至于我觉得这是个过渡皇宫,但建造却很讲究,大屋顶结合洋风,古典主义形制,装饰节制而精致。齐康大师设计的白色东北沦陷史陈列馆则远远矗立在伪满皇宫博物院的东北角,缓缓的坡屋顶低于皇宫正脊,非常谦虚。
我把这些零碎的片段组成上句。我想未来的艺术宫应该更谦虚,不去改变已经稳定的博物院景观态势,就此我将艺术宫藏了起来。鉴于皇宫以及陈列馆在结构上都是常规的。我决定把工业建筑常见的大跨度结构引进来而创造出巨大的室内空间来表达骨子里的自豪。
我决定采用风雅的曲线,通过象征,隐喻,联想等一系列修辞来表达一个伟大城市在新的历史时期希望再创辉煌的信心。同时,艺术宫又是一个能让我们在时间对我们的日常掌控中解放我们的心灵,让我们得以重新审视历史以及记忆,从而领悟生命存在的意义的当代表现主义建筑。
△俯视图
△俯视图
△鸟瞰图(西南侧视点)
用看不见的钢释放被束缚的混凝土
我选清水混凝土的理由很简单,很工业。但对于清水混凝土的理解和表现,我远不如柳公子和董公子。我决定回到遥远的30年代,回到早期表现主义。把混凝土从整齐的模板中释放出来。用我熟悉的钢作为模板去塑造大跨度双曲面薄壳混凝土穹顶。当项目建筑师黄河担心界面保护剂涂的太厚,以至于通过BIM可视化技术精确排布的蝉缝,明缝,螺栓孔眼都被遮盖有些模糊。我对黄河说,这其实蛮好,看看埃罗沙里宁的混凝土,柯布的砂浆,孔眼那些东西并不是我们必须表达的。保护剂在混凝土表面会形成一道透明的边界,在光线下,混凝土仿佛有了一道晕。随着光线的变化,晕里的高光沿着曲线踱步,一种克制的奔放便闪现出来。不,是妖娆。这是妖娆的表现主义。
△入口大厅
△地下二层通高展厅(南侧)
△入口大厅
不断延期的Timetable
工程复杂超过平常想象,不仅因为长春有冻土期,意味着在结构封顶前,三分之一的时间不能施工,期间还经历各种突发的停工,以至于我一度怀疑它是否能够建成。这个被藏起来的巨构是需要精致的施工工艺组织来完成最后宏大的叙事。
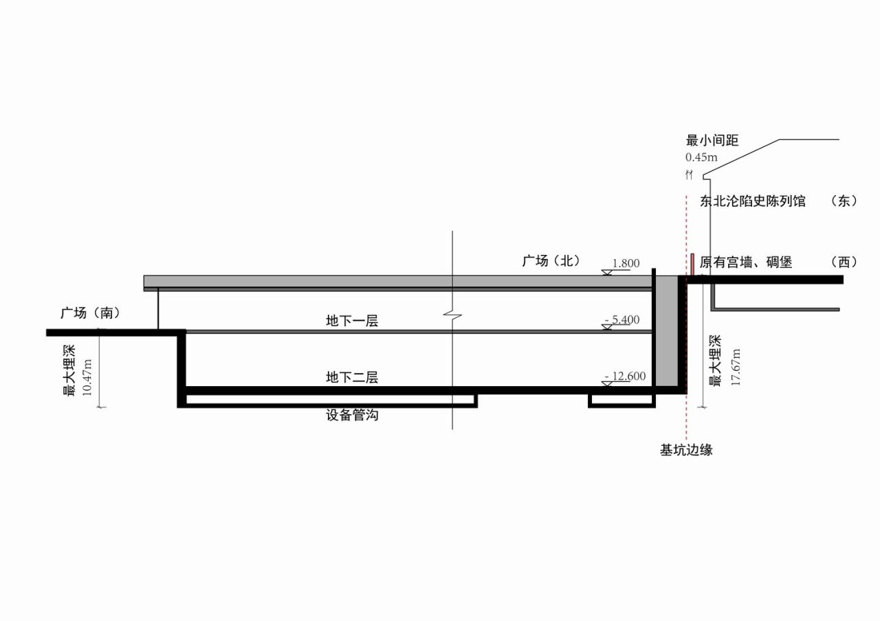
艺术宫选址在伪满皇宫建筑群和东北沦陷史陈列馆之间的刀把型基地上。南北高差7.2米。总建筑面积16650平米。艺术宫主体北侧最大埋深17.67m,南侧广场入口最大埋深10.47m。总计地下两层。建筑大开挖深基坑边缘距离原有宫墙及碉堡最近距离450mm,不仅需要加设支护桩和锚索,还要在陈列馆一侧地下新增锚杆静压桩保证两边平衡。此外还要加设新的地下通道和陈列馆地下室联通。
超过10000平米的高支模清水混凝土饰面就是最后完成面,博物馆要求的各种设备管线都要事先规划预埋好后,要满足恒温恒湿,防风抗灾,安保防盗,消防警示的要求。艺术宫的屋顶是个2000平米的活动广场,一个停车场和一个绿地。
△剖面分析图
△鸟瞰图(东侧视点)
△鸟瞰图(南侧视点)
我们在陈列馆正门前设计了一个插入地下的单层钢网壳覆曲面玻璃体,往下拾阶而下是艺术宫正厅,回头则在拱形框景里烘托了陈列馆。
整个连续的屋顶以剖面做立面在南广场戛然而止。在陈列馆门前,视线毫无阻碍。在南广场,大地似乎被掀开一条边。无论如何。第一次来的观众都不会知道大地之下,或者大地的罅隙里面有个深邃的宫殿,让人心驰神迷。
△通往东北沦陷史陈列馆的台阶
△通往东北沦陷史陈列馆的台阶
△通往东北沦陷史陈列馆的台阶
△剖面图
△南侧入口广场
△南侧入口广场
△“以剖面做立面”
△剖面图
△立面图
△入口大厅
△门廊
△地下二层通高展厅(南侧)
△展厅(施工记录照片)
The Deep time
博物馆让我着迷的是,它已经不局限于考据并展示人类历史成果。博物这个词都在新的学科发展中甚至显得不合时宜。现在,博物馆更应该在远远超过人类历史时间尺度上涵盖地球46亿年的总体历史中去更深刻思考研究生命这个主题以及时间的相对性。不同的时间尺度会带来不同的历史观。这就是Deep time。
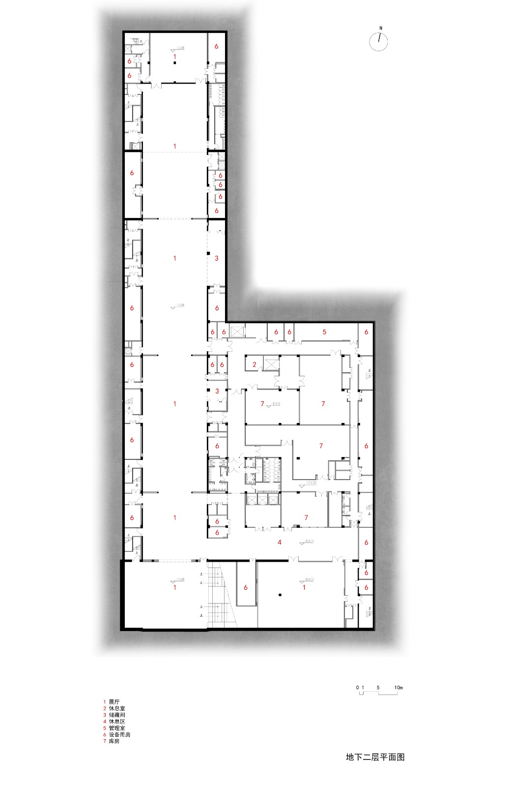
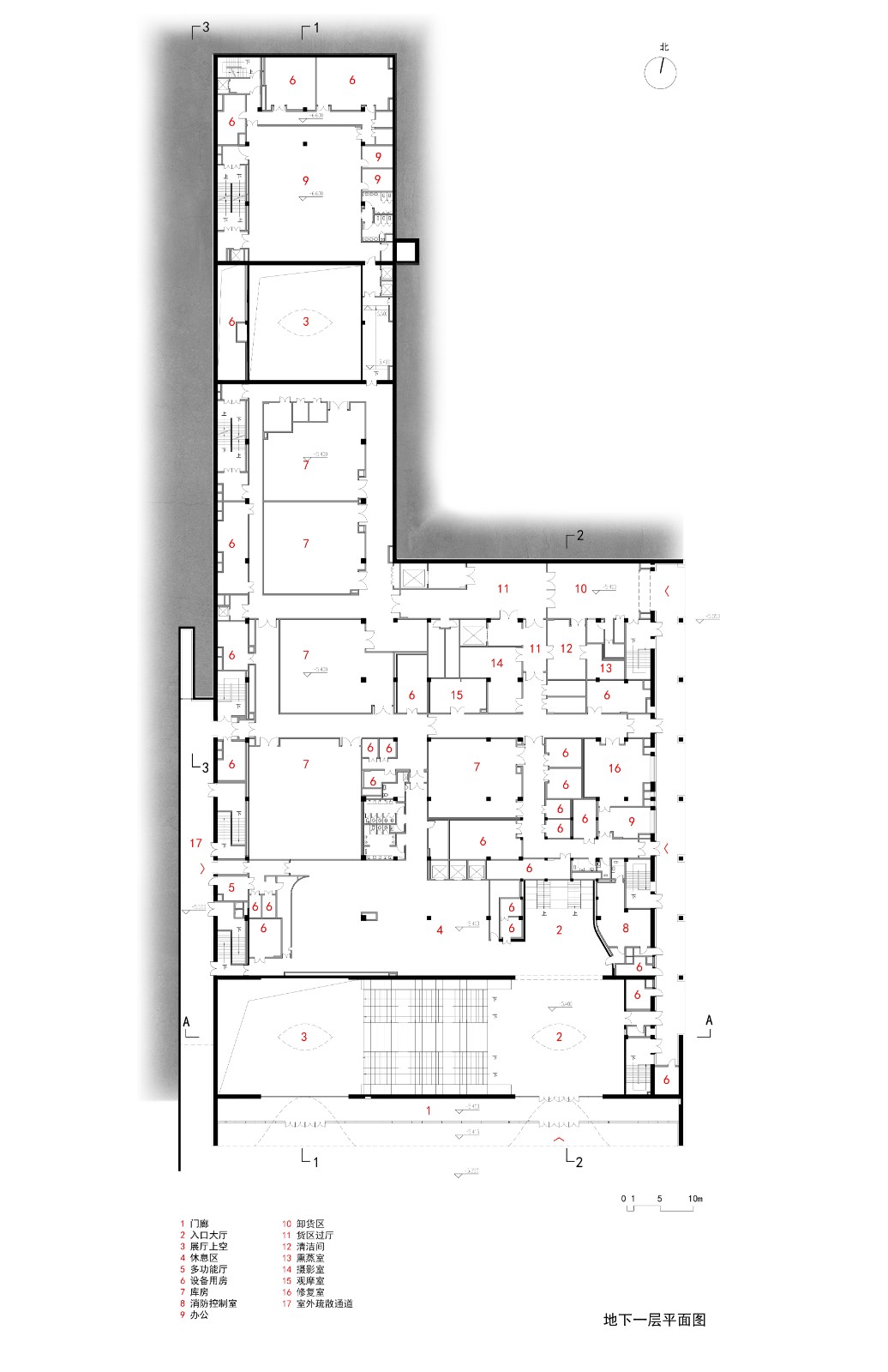
当我构想空间的时候,我想利用地下建筑这个切入点去表现“深”。也想用超大尺度让人失去方向感去改写我们习惯的直线的时间轴。最后我确立了中心是仿佛展翼的双曲面穹顶,18m×27.5m边长,16.5m为最高点的结构单元作为空间节点。整个艺术宫有三个彼此联系的空间节点,它们是我试图引导观众在Deep time作为背景引导下去理解生命,历史,环境和社会密切关系而得以审视自己未来的发展方向以及生存和生活方式的plot。
△轴测分析图
△剖透视图
△地下二层通高展厅(南侧)
△大台阶-连接入口大厅与地下二层通高展厅(南侧)
△展厅(地下二层)
△地下二层通高展厅(南侧)
审视这个词让我联想到了眼睛。我决定在突破地面的双曲面薄壳穹顶开设眼睛形状的天窗。把天光引导到地下来。眼睛有着显而易见的象征意义,更可以强化天光塑造观众体验和观念。它会帮助观众重新在人生很短的一个时间段里理解不同的时间观。
△天窗
△入口大厅
The sun beats on me
毫无疑问,天光塑造了艺术宫的灵魂。通常的地下建筑更多是庇护所,天光把艺术宫这个巨大殿堂背后的“深”给展现出来了,从而让艺术宫具有了精神性和神圣性。你站在这一组被天光所引导的空间里,会觉得似乎有无限的时间,或者只有时间。“深”让你失去方向感,那个我们一出生就无法拒绝的时间之矢似乎失去了方向感。天光在地面上的影子在漫长地变化,你一开始会焦急,然后有些无奈,你欣赏这美丽的光,熟悉也有些陌生,触摸不到天光却在它的投射中,你会想起一句话,在你存在的刹那前后,都是黑暗。你会痛苦,也感受到寂寞,更会感慨生命的奇妙,不由得想低低吟诵几句,或者跳舞。
△地下二层通高展厅(北侧)
△地下二层通高展厅(北侧)
△地下二层通高展厅(北侧)
这束光其实来自于20年前。2003年,我离开挤在少女泉的大部队,一个人赶到了万神殿。因为阴天,整个万神殿就是一个黑黑的BDO矗立在大理石建筑群中央。我站在这个BDO里面,在阴影中不明所以的我以至于失去了方向感。突然日头在穹顶出现,霎那,太阳穿透黑障,狠狠打在我头上。那个瞬间,我失魂落魄。
△入口大厅
△入口大厅
△入口大厅
大地之下,天空之上
我把博物馆复杂的各项功能隐藏在主空间的两侧,突出了主空间的纯粹,这很容易让人联系最常见的时间观—永恒。然而永恒又是我一直怀疑的概念。可能基于我们生命的短暂或者脆弱,人们会用巨大坚固的实体去表现永恒,这更多是我们的幻觉。在地下天光里的那个短暂的时间里,在追逐这三个联系而有距离并变化的天光里,个人各异的感悟或许也有永恒,但对具体的人而言也就是那么几分钟。无数人在不受场地束缚,不同时刻里的此起彼伏的相似相异的感悟则是永恒的。砼殿以一个庞大似乎静止的物质空间突然俘获了这短暂的永恒。
△休息厅(地下一层)
△休息厅(地下一层)
△休息厅(地下一层)
Everything causes scintillation.
开幕前,我穿过展厅走到博物馆最深处,躲在黑暗里,看着早上的阳光透过眼睛落下。过了一会,我似乎听到了呼吸声,曲面穹顶似乎变成了巨大的翅膀,在慢慢扇动,艺术宫被唤醒,仿佛要破土而出。人生总有那么几次,在一个平常的日子里,突然感受到强大的力量,地动山摇,那是幸运。
△地下二层通高展厅(北侧)
△入口大厅
△地下二层通高展厅(南侧)(施工记录照片)
△鸟瞰图夜景(西南侧视点)
“以深时尺度去思考问题,不是让我们逃避麻烦重重的当下,而是重新想象它,用那缓慢而古老的、关于创造与湮灭的故事,去抵抗现今急速运转的贪欲和骚动。它敦促我们思考:自己眼下的所作所为,会给我们身后的生命乃至后世留下什么?”——《大地之下》
彩蛋
5月18日一同揭幕的还有Wutopia Lab新成立的Wuto-Art以俞挺最擅长的穿孔铝板创作的博物馆之眼平面装置。未来,在所有Wutopia Lab的建筑里都可以看到Wuto-Art为该建筑量身定做的主题穿孔铝板装置以及数字衍生产品。因为建筑落成并不意味着落幕而是新的周期的开始。
△地下二层通高展厅(南侧)
△穿孔铝板平面装置细部(摄影:张雨城 ©Wuto-Art)
项目图纸
项目信息
设计公司: WutopiaLab
主持建筑师:俞挺
项目建筑师:黄河
项目经理:濮圣睿
设计团队:濮圣睿、潘大力、孙丽然(概念方案阶段),谢佳林(图纸整理阶段)
装置设计:况舟、黄河、谢佳林
业主单位:伪满皇宫博物院
建设委员会:王志强、胡海龙、周波、艾雪松、苏振达、刘永维、魏薇
代建单位:长春市政府投资建设项目管理中心
施工图设计:天津市建筑设计研究院有限公司
施工单位:中国建筑第八工程局有限公司华北公司
设计顾问:卫敏菲、缪滨海、张准、钱彦敏、林星春、张科杰
照明顾问:格锐照明设计张宸露、臧艳婷、邓晓旦
室内设计(非清水混凝土区域):吉林五一建设集团有限公司、上海黑泡泡建筑装饰设计工程有限公司(方案)
弱电设计:吉林省北华电力科技设计研究院
景观设计:长春市园林规划设计研究院有限公司
地点:长春市宽城区光复北路5号
总建筑面积:16650 m²平方米
设计时间:2017年5月–2018年7月
建成时间:2023年5月
主要材料:清水混凝土
摄影:CreatAR Images
视频:CreatAR Images

BIM建筑网






















































