华中电厂位于深圳南山区华侨城片区北部。1989年,时值深圳特区经济快速发展,为了缓解华侨城片区“停三开四”电力供应不足的局面,其以重油发电的方式为整个华侨城片区供电。2006年因城市发展及环境保护需要正式“退休”。作为一座见证深圳飞速发展历史的工业遗存点及城市时代印迹,华中电厂记载了许多老华侨城人的生活记忆与集体精神。华中电厂改造项目和以往改造项目的进程并不相同。在项目接触伊始,园区的景观母题以及色彩基调都已确定。因此,如何在现有基底之上挖掘和再造场所精神,如何平衡场地环境限制与现实功能需求,如何与景观元素相互协调整合始终贯穿在整个改造设计工作中。
城市、自然与社区的联结项目位于城市、自然与社区界面之间,是整个华侨城片区重要的北门户节点以及社区连接桥梁。基于此项目的历史和未来发展价值,设计将其定义为华侨城片区未来的艺术社区文化引领者,并打造为一处集文化、艺术、社区于一体的城市客厅和创意人文高地,让曾经的片区能量中心重新回归城市,成为社区精神能量之源。从旧电厂到社区场所,为周边居民构建积极的社区公共空间并激活城市片区艺文生态。
保留与介入从场地要素出发,整个地块按南北动静分区。南区是以室外运动、儿童友好以及休闲设施为主的游乐互动体验区。北区则以多功能戏剧、音乐会以及社区文化活动为主的演艺人文创意区域。原电厂拥有五栋独特的工业遗存,但由于各单体边界生硬,布置零乱,无法形成完整的空间故事线。设计以公共空间营造与建筑开放性为出发点,立足于建筑群原有空间布局、体量形制,通过柔化建筑边界,释放底部空间以及透明的玻璃圆场,外挂楼梯,灰空间等建筑手法的介入,在园区创造一种积极生动的“微观城市结构”。O•POWER文化艺术中心(#1)原为发电机组厂房,首层通过置入全玻璃圆场创造新的共享空间,避让保留树木构筑环绕式的沿街公共社区氛围,加强室内外的融合交流与视线通透性。由于原厂房室内光线不足,设计将南立面原有实墙打通,并改造为通透的玻璃及钢格栅,为室内注入更多光线的同时打造成为场所精神的展示窗口。改造后的建筑体量形制与原建筑比例基本一致,并最大程度的保留旧电厂的主体混凝土结构,是对旧电厂的记忆重塑与延续。
O•POWER文化艺术中心(#1)西侧二层屋面平台原为废弃平台,由于年久失修,设计通过对屋面平台进行修复重塑,并围绕原有烟囱形态植入不锈钢板雨棚形成独特的工业体验场所。保留的工业遗存痕迹和新构筑物形成连续生长的有机体,串联电厂过去,现在和未来,继而使新老构筑物在同一个秩序中进行迭代融合。
同构与共生受到电厂南区遗留的油罐形态启发,以此为母题在主厂房建筑中置入圆筒(O空间)作为新的精神及核心引领空间,与室外油罐展开“对话”。圆筒立面采用UHPC超高强混凝土,减少圆筒壁厚且消解加建构筑物对内部空间的影响。圆筒的植入将原有厂房通高空间划分形成多义使用的O空间与POWER剧场,未来可承载沉浸式演出、艺术展览等多种形态的功能,构建演展融合为核心的前沿剧场集群。
为满足展演空间的绝对纯净与物理性质要求,前厅两侧墙面采用吸音材料-泡沫铝,通过新材料在老墙体的“轻”附着方式,减少对原有结构和老墙体的破坏,同时也增强了圆筒前厅空间的多义使用性。原有的厂房吊车梁以及裸露的原始主体结构使整体空间呈现有趣的新旧碰撞与电厂记忆再现。POWER剧场,取自于旧电厂“电力”的核心物理属性,代表着从过去的“物理电力”到如今以演艺内容为核心的“艺术力量”的变迁。剧场为封闭式黑匣子空间,突破了传统镜框式的舞台设计,在剧场内的任意空间都可以成为表演舞台。内设活动伸缩座椅,能容纳约200个座位或约400人站立观演。以自由创新的实验剧场作为内核引擎,联合O空间及户外空间,辐射周边社区乃至城市片区。
文创后街(#4)作为城市界面和园区之间的过渡场所,改造前建筑为单一狭长的空间形制,且与北侧侨香路存在3米的高差。为防止小孩攀爬,设计在人行道一侧加设实墙,与新增的不锈钢构筑共同形成檐下灰空间。而后通过植入七个小尺度的水洗石及现浇混凝土盒子,增加原有建筑进深的同时两两盒子通过扭转和错动形成多义灰空间。北侧保留树木与文创后街共同形成有机围合,向内包裹园区,使后街社区与城市形成既开放又融合的空间关系。折线的坡道将侨香路一侧的人行道路和文化艺术中心(#1)相连,为通向POWER剧场的游客提供了更加便捷的到达方式,同时曲折的坡道造型也为游览者创造在林间漫游,俯瞰园中景色独特视角的场所感。
延续与衍变#2、#3和#5建筑原分别为电厂油泵房,消防泵房及圆形蓄水池,经更新改造后与“水之塔”(原冷却塔)围合而成酷乐园。改造后的戏剧酒吧(#2)主体梁柱结构及吊车设备均暴露在外,突显出原有工业遗存的力量和沧桑感,以结构界定来感知原始空间,同时进行适度退让形成室外灰空间,将人流注入“酷乐园”。立面采用“虚”且“新”的水纹气泡玻璃砖以及旧建筑材料-水洗石,展现保留和介入之间相互支撑,相互容纳的关系。
红砖工坊(#5)位于北区酷乐园的核心位置,原为圆形红砖蓄水池。通过加建一层入口弧墙及外部环形锈钢板楼梯,将一层室内、室外与屋顶重构为有机连续空间,创造独特的场所体验感。外立面采用多孔红色陶砖还原原始建筑形态,以“新“溯源,唤醒场所精神。艺术家工作室(#3)以“光”为设计主线,在原有形体基础上,植入南、北两道斜墙,南侧通过内凹及高侧窗,将光束引入内部的同时保证工作室的隐私性。
精神场从华中电厂到O•POWER文化艺术中心,是一段从“物质电厂”到“精神电场”的改造之旅。通过设计为空间赋形,为场所赋能。我们希望通过旧电厂改造将工业遗存建筑从城市发展的观察者和见证者转化成为积极的参与者和引领者。
△改造前
项目图纸
△模型图
△基地示意图
△功能分区图
△轴测图
△总平面图
△一层平面图
△二层平面图
△剖面图
△局部剖面图
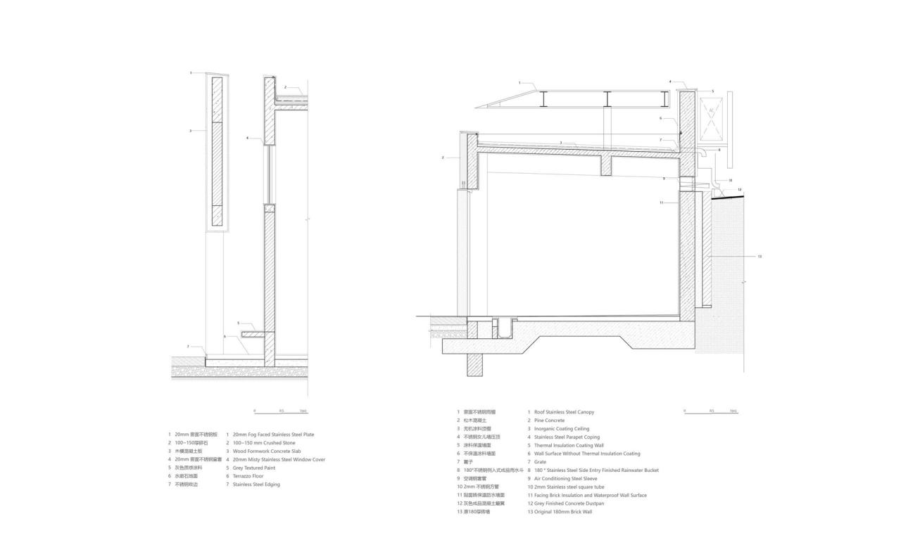
△细部结构大样图
△爆炸图
项目信息
建筑师: 深圳华汇设计
面积: 3670 m²
项目年份: 2022
摄影师:ZC Architectural Photography Studio
厂家: 上海益荣金属材料有限公司, 亚铝, 宜兴凯华陶瓷
主持建筑师: 肖诚
项目建筑师: 麦梓韵
设计团队: 傅艺玲,戴佳佳
结构设计: 徐牧,赵婷婷,黎昌发
景观设计: Lab D+H SH
室内方案设计: 深圳华汇设计 X+ STUDIO
室内设计深化: 文格空间设计(深圳)有限公司
结构&机电&施工图设计: 深圳宗建建筑设计有限公司
建筑及室内泛光设计: 北京远瞻照明设计有限公司
幕墙设计: 深圳市朋格幕墙设计咨询有限公司
建筑及室内标识设计: 本质设计
施工方: 深圳华侨城文化置业投资有限公司
委托方: 华侨城华南投资有限公司
地点: 深圳

BIM建筑网























































