每年四月初,日本蔚山市新佛山(Shinbulsan Mountain )山脚下的通往Jakcheonjeong山谷的道路都会铺满粉红色的樱花叶,带来与日常不一样的风景。沿着这条樱花路,有着简洁混凝土体量的Inalit咖啡馆就坐落于此。
建筑师花了许多心思构思如何使咖啡馆这种如今最常见的商业建筑成为当地的可持续发展空间。Inalit咖啡馆不只是一个人们临时光顾的空间,还是一个可以让居民建立亲密关系的地方。
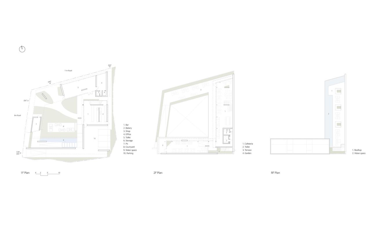
Inalit 建在具有典型郊区景观的位置,沿场地边界呈“U”形排列。该建筑主要由中心庭院、内部空间和连接它们的通道组成。主要入口位于公共马路前,穿过入口通道后就来到了庭院。由于中庭向外敞开,它不仅服务于咖啡厅的顾客,在Jakcheonjeong山谷散步的人也可以进来。从长廊延伸出来的小径和庭院将景观其引入室内,这就是建筑师想要的“景观扩展”。
室内借进了神佛山景观,重叠的外部空间逐渐显现,牢牢抓住人们的目光。从樱花路到樱花园的地方通向小径和庭院,是Inalit最重要的空间。它以引领的姿态拥抱着周围的环境,使建筑形成新商业空间模式,也作为当地居民的一个开放空间。
项目图纸
△总平面图
△平面图
△剖面图
△立面图
△分析图
△爆炸图
项目信息
建筑师:Atelier MODS,PLS Architects
面积:606m²
项目年份:2021
摄影师:Yoon Joonhwan
厂家:Adobe,American Standard,AutoDesk,Dong Myung,FILOBE,Material&Design,Noroo paint,Trimble Navigation,Yes lighting
主创建筑师:Park Kanghee, Lee Yeonjung, Shin Hyukhyu, Shin Namgyu
设计团队:Cho Seongwoo
委托方:The Build
建筑设计:PLS Architects, Atelier MODS
结构工程师:YOON Structure Engineers
机械工程师:Gwangmyeong Total Engineers
施工方:Daekyung Design Development
地点:韩国,Ulju-gun

BIM建筑网
























