设计概念游泳馆位于东南大学九龙湖校区的东门附近,在九龙湖体育馆的北侧,也是东南大学史上第一座室内游泳场馆。考虑到九龙湖校区比较空旷,体育建筑又往往体量和尺度巨大,所以设计采用连续的圆拱将本体化整为零,以此消解体量的疏离感。建筑的弧形像花朵一样,用7个重复的形式编织在一起,是它看起来很活泼。此外,这个建筑没有实质性的“屋顶”,它的屋面和墙面作为一个整体。
游泳馆的内部空间由多个曲面形成了空间的节奏感,流动的水、运动的人与静态的建筑,混凝土的灰色与水面的蓝色,百叶折射下的阳光与建筑几何形成的阴影,这些对比激发出一种强烈的场所感。混凝土浇筑的拱状结构符合力学上的需求,立面采用了大面积玻璃落地,建筑内外的人的行为和视线形成了交互。
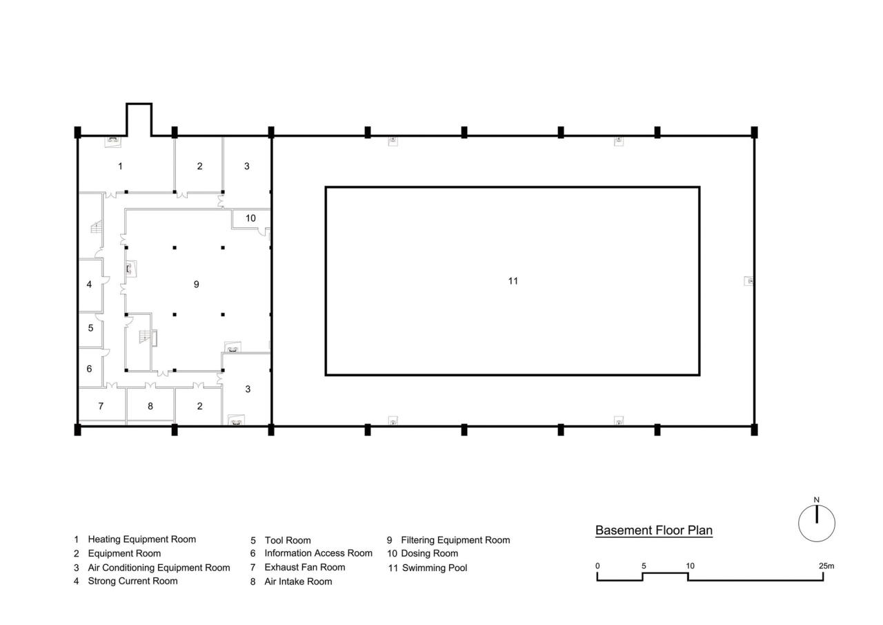
空间组织东南大学游泳馆的首要功能是为校园提供一个游泳和训练的健身场地,平面为长方形,泳池为20*50米的标准尺寸,水循环设备和机械间设置在地下。游泳馆内部空间的组织遵循了常规体育馆的方式,一层为更衣间和泳池,二层为健身房和教室。
困难在建造过程中,游泳馆采用了现浇混凝土方式,需要大量人工预制模板,然后脚手架搭满了整个场地,高度达十多米,占满了120*40米的场地范围。其实,在空中浇筑这样曲面的拱其实是反潮流、反工业化的建筑行为。每个混凝土的拱在落地的时候都会交于一点,多余的部分被“剪切”掉,形成了自然的拱底,这种做法是无法通过装配化完成的。
建造技术在这个采用了7个连续混凝土曲面拱形成的游泳馆设计中,主要解决两个问题:一个是跨度,另一个是湿度。设计如果采用钢结构,40米跨度需要2米高的梁。而用混凝土做曲面的拱,就能很好地满足自身的结构要求。另外,游泳池的湿气会长期腐蚀金属构件,但是混凝土不怕水。游泳馆的天花上没有设置灯具,它们全部安装在两侧,混凝土表面也没有涂料粉刷和其他装饰,为呈现结构和材料最真实的状态。
建筑表皮采用红色陶板瓦干挂,利用现代工艺在1200摄氏度的高温下烧制,这种陶瓦可以保证150年都不用更换,达到了可持续性。陶瓦的尺度和砖类似,采用错峰拼贴,这种手工艺的效果与混凝土的巨大尺寸形成对比。所有材料都保留了本色,没有人工增添的装饰,使结构就是建筑,建筑就是结构本身。因此,真实的建造会省去很多后期维护的费用。我们认为,好的建筑设计不一定创造出昂贵的建筑,也不一定是雄伟的建筑,它本应该是一种很朴实很真实的自然状态。
△效果图
△效果图
△效果图
项目图纸
△模型图
△模型图
△模型图
△模型图
△基地示意图
△总平面图
△一层平面图
△二层平面图
△地下一层平面图
△屋顶平面图
△立面图
△立面图
△剖面图
△剖面图
△爆炸图
△细部大样图
△细部大样图
△细部大样图
项目信息
建筑师: 周琦工作室
面积: 5650 m²
项目年份: 2022
厂家: 南京中联混凝土有限公司, 江苏苏博特新材料股份有限公司, 江苏金久科技新材料有限公司
主创建筑师: 周琦
设计团队: 杨俊,杨文俊,胡蝶,傅秀章(建筑声学),郭洋波(结构),李响(电气),张本林(暖通),马志虎(给排水),臧传国(智能化)
电气暖通: 东南大学建筑设计研究院有限公司
结构设计: 东南大学建筑设计研究院有限公司
施工方: 南京宏亚建设集团有限公司
地点: 南京

BIM建筑网









































