近年来,各类综合性、一站式的行政服务类建筑应运而生,其关注点由宏大叙事逐渐转向实现多元价值。作为这一理念的实践,磁器口服务中心既是磁器口管委会(街道)办公服务的重要场所,也是面向市民开放的“城市客厅”。
场地与构思用地是一处不规则的局促台地,南北高差达14m,周边环绕古镇、青山、溪流、厂区、住宅。设计师以显隐交织的手法将建筑分为三部分,下部毛石基座融入山体解构五层体量,是隐;上部几何形体静立市井间,为显;中间的单层玻璃体将上下拉结。显隐之间,建筑与山体交织,塑造出适宜的体量尺度,使建筑真正被锚固在环境中。
观游与路径山地环境为设计提供了线索,建筑形成逐级跌落的三层退台,与两侧的阶梯、平台串联起立体的观游路径,营造耐人寻味的空间意境。这一路径也将交通动线的合理性考虑其中,可引导人群直达四个不同的标高层次,形成流动贯通的公共空间。
开放与日常多重的室外空间表明建筑向公众开放的主旨,市民可在东端的台阶空间和屋顶平台、南侧的三层退台等空间散步、聚会、晨练……对于市民而言,磁器口服务中心的本质即是一处日常性的活动场所。
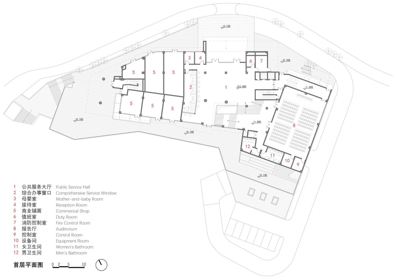
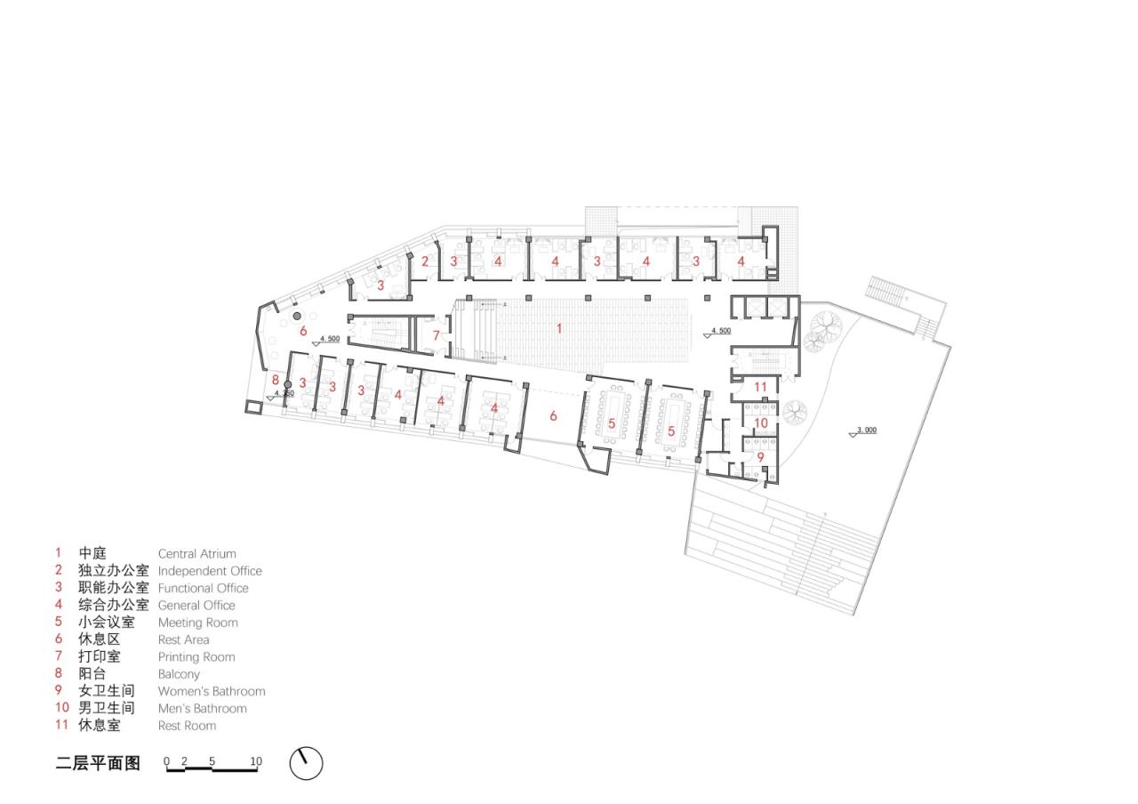
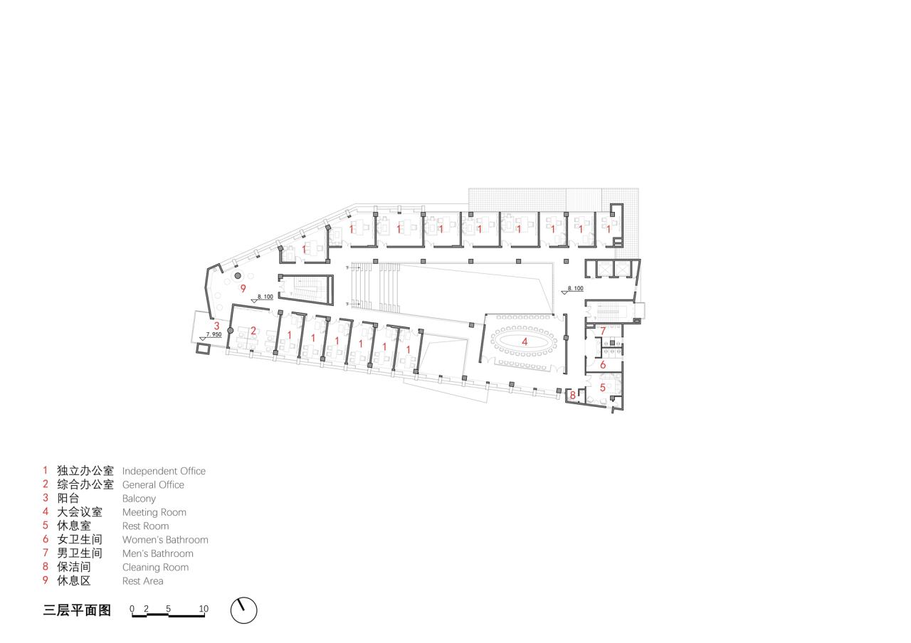
立体与叠置建筑主要功能依照公共属性的强弱分层排布,一至负二层为各类服务大厅、员工餐厅及附属用房,二、三层为办公空间。通过分层与叠置的处理手法,形成夹层报告厅、梯形中庭、大台阶、悬挑会议室等空间,以适应人群多种空间需求。
公共与公众磁器口服务中心是设计师突破传统政务建筑“原型”的一次尝试,它并非突出的地标式建筑,而是最常见的基层政务服务综合体,在不超过同类建筑单方造价的前提下,综合性、日常性等特点在这座面向所有市民开放的建筑中被充分展现。
项目图纸
△透视图
△总平面图
△剖透视
△爆炸图
项目信息
建筑师: 悦集建筑
面积: 10393 m²
项目年份: 2022
摄影师:常文雨, PrismImage, 田琦
主创设计师: 田琦、何飙、李骏
设计团队: 宛良清、李涛、但承虎、谢成平、胥向东、袁文光、吴猛、王月东、陈卫、翁钰展(实习)
施工方: 重庆市建工第七建筑工程有限责任公司
委托方: 重庆旭辰产业发展集团有限责任公司
地点: 重庆

BIM建筑网











































