尧珈·瀑布村精品酒店位于贵州省安顺市关岭布依族苗族自治县黄果树风景名胜区内,依山而建,建筑物分布错落有致,视野开阔,周围群山环绕,绿树成荫。原建筑为员工宿舍,基于原始的宅基地,进行重新规划设计,改造成一家以瀑布景观为主要元素的精品酒店,设计旨在让旅客们切身体验其中。
△瀑布村鸟瞰图
“院落·交错·延展”
原建筑位于黄果树风景名胜区内,毗邻黄果树大瀑布景点入口。因黄果树瀑布而得名为瀑布村。瀑布村原址是破败不堪的职工宿舍,因年久失修,存在安全、质量隐患,不宜长久居住而进行设计改造。
△改造前
建筑设计上最大限度保留瀑布村落的“原汁原味”,在原貌上加以修缮,保留瀑布村的特色地貌风格百年古植物群落,建筑用材上也尽量使用当地特色材料,将“修旧如旧”理念贯彻始终,墙面保留原始的特点。建筑结构也得以保存。
△改造后
设计利用建筑和廊道围合成一个四方院子,中间部分是活动场地。整个建筑群以围合空间院落式处理,依山而建,分散布局,完美地“嫁接”于自然中。两层楼,中间廊,两坡顶。站在二楼,周围是广阔的树林,层层叠叠,顺着坡势可以看到村落的轮廓;远处的山脉连绵不断,山峰高耸,形态壮丽。微风拂面,使人感到舒适惬意。
△区位鸟瞰图
设计顺应地形,自然呈现出贴合大地,水平延绵的感受。F楼为入口,G楼为大堂,E楼为公共区域,其余均为客房区间,中间院落顺依地形。大尺度的泳池的空间通过自然的高差,置于庭院中间,入口巧用一段瀑布将视线引入大堂,呼应黄果树瀑布的景观。接待空间与休闲空间向外部敞开,与停车场无缝连接。独立院落夹着巷道,屋顶尺度从水平长横向转化为村落的丰富与精巧。多层次院落的串联起空间的起承转合,巧妙借景令空间与周遭的景境交流对话。以水为媒,以院为框,四周的景致倒映水中,随四季摇曳变化。
△高空下的院落空间
建筑的建构逻辑结合了院落式建筑的特点,不同建构方式的组合也为建筑的使用带来不同的益处。建筑的墙体保留了原有的毛石墙面,在阻隔潮气和稳固基础外,也使建筑与场地环境有机融合,让建筑具有一种生长感。充分体现了有机建筑的理念。屋顶铲除了原有屋面面层,改用深灰色石板瓦屋面,用传统坡屋顶呼应传统的民居形态,显得整个酒店低调沉稳。窗户使用了铝合金中空玻璃,满足酒店采光及观景需求。
△绵延的屋顶
△由室内望庭院
△从庭院看立面
“和光同尘,与时舒卷”
整个酒店的室内空间是结合了庭院交通路径而建立关系,同时更多是基于室内角度的景观纳入关系来布局营造最佳体验感;例如通过前院瀑布主景观进入的接待大厅,可以透过中轴线的大玻璃景窗直接看到后院的景观泳池庭院,与不远的多功能会议室遥相呼应;再如自助餐厅的设计更多是将后山繁盛野趣的自然山景纳入到餐厅视野,甚至通过室外落台直接实现与自然亲密融入。
△接待大厅
△餐厅
△茶室
△酒吧
△包厢
客房的设计则根据不同的外部景观分别针对性做主题营造,例如南侧四合院豪华客房区可以通过大景窗近距离感受静谧粗旷的山体岩石景致。
△客房
北侧比邻柏联酒店的客房则拥有独立的温泉小院景观。
△温泉小院
室内设计的材质平和自然,沿用了天然岩板、水磨石等材质,尽量减少与整个建筑语言的反差,但是更多丰富元素来自于当地传统文化元素,例如布依族手工艺中的竹艺编制、染织、陶艺、铜器等等。
△水磨石地板
△地板中的编织纹理
“山间野趣,人间梦境”
瀑布村整个建筑群落形态保留了村落原有的生活“印迹”和自然风貌,景观的设计重点是按照度假酒店必要的功能需求原则,从景区大道开始逐步将瀑布村“山门“———人工瀑布景观前院——泳池休闲内院的三个递进序列逐步展开,为客人提供一种与酒店融合的完美过程。
△俯瞰山门前的夜景
△人工瀑布
△休闲内院
从高空视角看,覆盖建筑屋顶的当地天然石板与高大的原生树木成为酒店最具特色的风貌,地面景观延续了这种典型性元素,但是更侧重将室内功能向庭院延伸引导,综合运用水、花径、台地、灯光环境照明等元素把重要区域客人的体验感提升到完美和极致,也更加坚固不同季节植被变化的需求。
△高空下的瀑布村
△休闲庭院内的一角
△留存的古树
酒店部分豪华客房拥有独立的温泉景观内院以及空中花园,营造一种惬意而幽静的野奢度假品质。
△空中花园
△客房外的瀑布景观
△项目数字模型
项目图纸
△总平面图
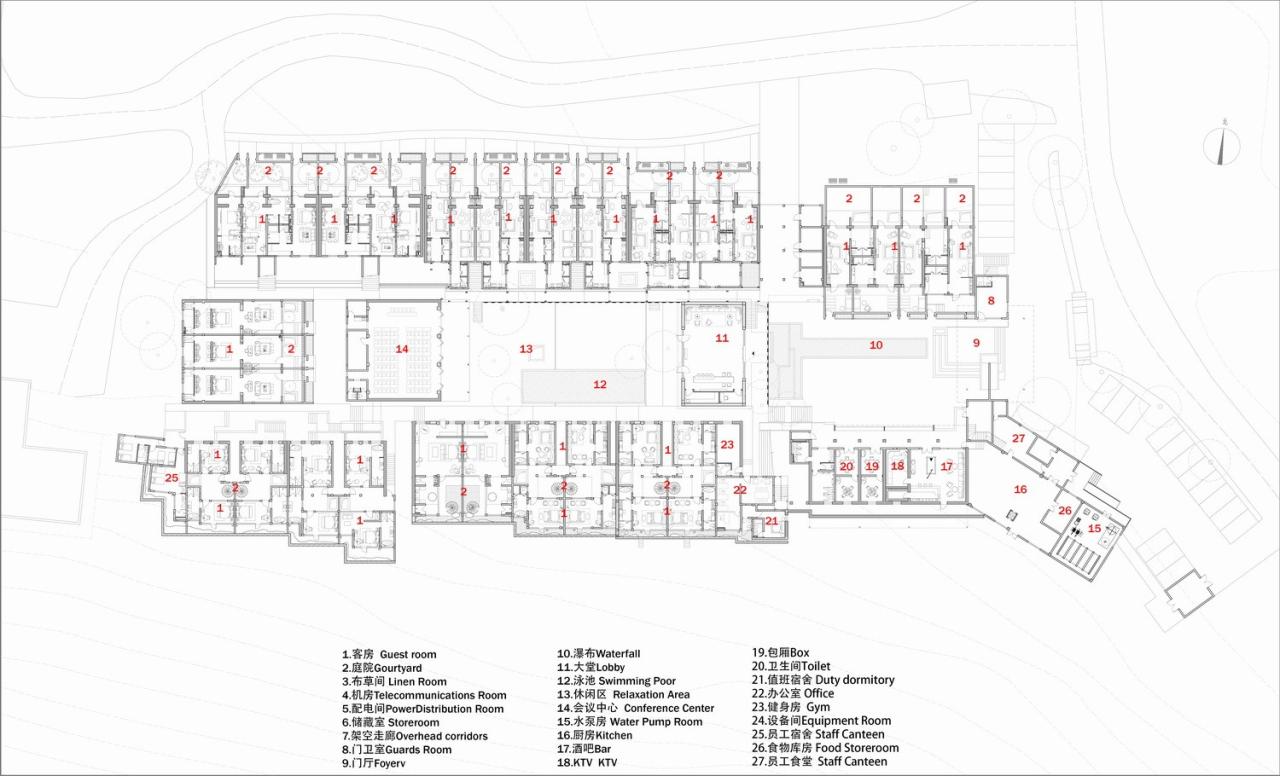
△一层组合平面图
△二层组合平面图
项目信息
项目名称:尧珈•瀑布村
项目地点:中国 贵州 安顺 黄果树瀑布景区内
阶段:已建成
功能:高端精品民宿酒店 露营基地 会议中心 温泉泡池 餐厅 茶室 泳池 酒吧
建筑面积:4992㎡
设计单位:上海尧舜建筑设计有限公司
建设单位:贵州黄果树旅游集团股份有限公司、贵州尧珈酒店管理有限公司
主持建筑师:郭水尧 刘杰
方案主创:刘洋
建筑:刘洋 王梅艳
结构:邵忠华
给排水:陈庆彪
电气:潘祥亮
暖通:潘杰
室内:史新华 周哲 张贤君
景观:史新华
摄影师:郭水尧 张琪

BIM建筑网



















































